Contact Agent
Contact Ulster Property Sales (UPS) Andersonstown
5 Bed Detached Bungalow
7 Barnfield Road
Hannahstown, Off Huntingdon Hill, BT28 3TQ
offers around
£365,000
Key Features & Description
A substantial red brick detached chalet bungalow approached by a private sweeping lane.
Five excellent well appointed double bedrooms.
Principle bedroom with ensuite bathroom and dressing room.
Luxury fitted kitchen / Dining area.
Large Utility room.
Upvc double glazing / eaves / fascia.
Oil fired central heating / feature ground floor under floor heating.
Private elevated site with further potential / Planning Permission granted for Garden Room & Double Garage.
Well worth a visit.
Chain Free / Immediate Possession.
Description
A substantial red brick detached chalet bungalow approached by a private sweeping lane that enjoys an elevated private position within this highly regarded residential area. Five excellent bright double bedrooms. Principle bedroom with ensuite shower suite. Further ground floor double bedroom with ensuite bathroom and dressing room. Two separate reception rooms, lounge with feature double patio doors. Luxury fitted kitchen / dining area / open to family room / separate utility room. Spacious white bathroom suite with feature shower cubicle. Upvc double glazed windows / doors / eaves and fascia also in white upvc. Oil fired central heating system / feature ground floor under floor heating. Feature staircase to a bright gallery landing. Good presentation throughout. Driveway with ample car parking. Separate access to further car parking area. Secluded, private site. Planning Permission Granted for double garage and garden room. Fantastic location between Belfast and Lisburn, enjoying easy access to lots of schools, shops, and transport links, including the Glider service on the Stewartstown Road. Excellent road and motorway network are all nearby. Well worth a visit. Chain free.
A substantial red brick detached chalet bungalow approached by a private sweeping lane that enjoys an elevated private position within this highly regarded residential area. Five excellent bright double bedrooms. Principle bedroom with ensuite shower suite. Further ground floor double bedroom with ensuite bathroom and dressing room. Two separate reception rooms, lounge with feature double patio doors. Luxury fitted kitchen / dining area / open to family room / separate utility room. Spacious white bathroom suite with feature shower cubicle. Upvc double glazed windows / doors / eaves and fascia also in white upvc. Oil fired central heating system / feature ground floor under floor heating. Feature staircase to a bright gallery landing. Good presentation throughout. Driveway with ample car parking. Separate access to further car parking area. Secluded, private site. Planning Permission Granted for double garage and garden room. Fantastic location between Belfast and Lisburn, enjoying easy access to lots of schools, shops, and transport links, including the Glider service on the Stewartstown Road. Excellent road and motorway network are all nearby. Well worth a visit. Chain free.
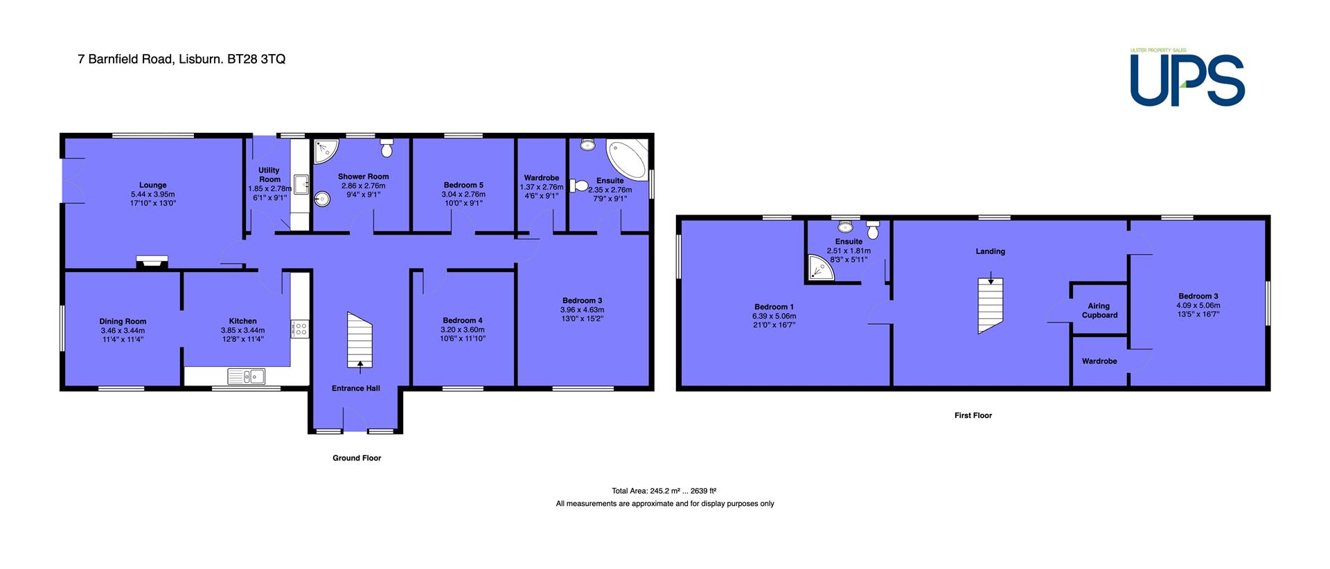
Rooms
GROUND FLOOR
Upvc double glazed entrance door to;
ENTRANCE HALL
Wooden effect strip floor, feature under floor heating, feature open tred staircase to gallery landing.
LOUNGE 19'0" X 13'5" (5.79m X 4.09m)
Feature brick fireplace with hearth and beamed mantel, wooden effect strip floor, Upvc double patio doors, deep moulded cornicing.
LUXURY FITTED KITCHEN / DINING AREA 13'0" X 12'7" (3.96m X 3.84m)
Range of high and low level units, formica work surfaces, single drainer stainless steel sink unit, 4 ring ceramic hob, built-in oven, overhead extractor hood, integrated dishwasher, fridge and freezer, feature archway to;
FAMILY ROOM 12'10" X 10'10" (3.91m X 3.30m)
Feature fireplace with inset and hearth.
UTILITY ROOM 8'8" X 7'6" (2.64m X 2.29m)
Range of units, Belfast sink.
PRINCIPLE BEDROOM 1 15'9" X 13'10" (4.80m X 4.22m)
ENSUITE BATHROOM
Corner jacuzzi bath, pedestal wash hand basin, low flush w.c, tiling.
DRESSING ROOM
Feature shevling.
BEDROOM 2 10'10" X 9'10" (3.30m X 3.00m)
BEDROOM 3 11'9" X 10'6" (3.58m X 3.20m)
WHITE SHOWER SUITE
Fully tiled shower cubicle, wash hand basin, vanity unit, low flush w.c.
FIRST FLOOR
GALLERY LANDING
Wood strip floor, velux window, walk-in hotpress.
BEDROOM 4 17'0" X 22'2" (5.18m X 6.76m)
Velux window.
ENSUITE SHOWER ROOM
Shower cubicle, pedestal wash hand basin, low flush w.c, storage into eaves.
BEDROOM 5 12'1" X 14'3" (3.68m X 4.34m)
Walk-in robe.
OUTSIDE
Drive way to ample car parking, separate access to further car parking area.
Property Location
Mortgage Calculator
Contact Agent
Contact Ulster Property Sales (UPS) Andersonstown
Request More Information
Requesting Info about...
7 Barnfield Road, Hannahstown, Off Huntingdon Hill, BT28 3TQ
By registering your interest, you acknowledge our Privacy Policy
By registering your interest, you acknowledge our Privacy Policy