Contact Agent

Contact Burns & Co (Maghera)

Contact Burns & Co (Maghera)

5 Bed Site with FPP

Building Site Adjacent To 102 Mayogall Road

Gulladuff, BT45 8PJ

Price on Application
  • Status For Sale
  • Property Type Site with FPP
  • Bedrooms 5
  • Receptions 3
  • Interior Area 2500
  • Typical Mortgage
    Click price to use our mortgage calculator

Key Features

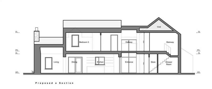
Superb Building Site with Full Planning Permission for Two Storey Dwelling and Detached Double Garage, Extending to 0.55 Acres.
Option to Purchase Remainder of Field (Additional Land Extends to 0.82 Acres).
Full Planning Permission (Ref: LA09/2023/0621/F).
Approved House Size approximately 2,500 sq. ft.
All Services Located Close to the Site.
Site is Cleared and Ready for Development.
Direct Access Onto the A42 Road, Which Connects Maghera to Ballymena.
Conveniently Located to Gulladuff (1.7 Miles), with Maghera, Magherafelt, Portglenone and Ballymena all Within Easy Driving Distance.
Belfast and Derry are Approximately 35 Miles Distant Via a Good Quality Road Network.
Prominent Site on Laneway off the Mayogall Road.
Potential for Self-Contained and Part-Private Access Laneway.

Property Location

Show Map

Directions

Gulladuff

Contact Agent

Contact Burns & Co (Maghera)

Contact Burns & Co (Maghera)

Request More Information
Requesting Info about...
Building Site Adjacent To 102 Mayogall Road, Gulladuff, BT45 8PJ Building Site Adjacent To 102 Mayogall Road, Gulladuff, BT45 8PJ

By registering your interest, you acknowledge our Privacy Policy
Ask Holmes
Ask Holmes
Let's find your next home

Are you sure you want to reset the chat?

Checking API...