Contact Agent

Contact Simon Brien (East Belfast)

Contact Simon Brien (East Belfast)

2 Bed Terrace House

Corn Cottage, 8C Ballybryan Road

Greyabbey, Newtownards, BT22 2RB

price £139,950
  • Status For Sale
  • Property Type Terrace
  • Bedrooms 2
  • EPC Rating D66 / C72
  • Stamp Duty
    Higher amount applies when purchasing as buy to let or as an additional property
    £299 / £7,297*
  • Typical Mortgage
    Click price to use our mortgage calculator
EPC Rating

Description

A superb opportunity to purchase a charming cottage within this sought-after rural development near Greyabbey.

The accommodation comprises two bedrooms and a bright open-plan living, kitchen and dining space, offering comfortable, low-maintenance living. The property is offered fully furnished, enhancing its appeal as a turnkey investment.

Ideal for owner-occupiers and investors alike, with easy access to coastal walks and local attractions.

Rooms

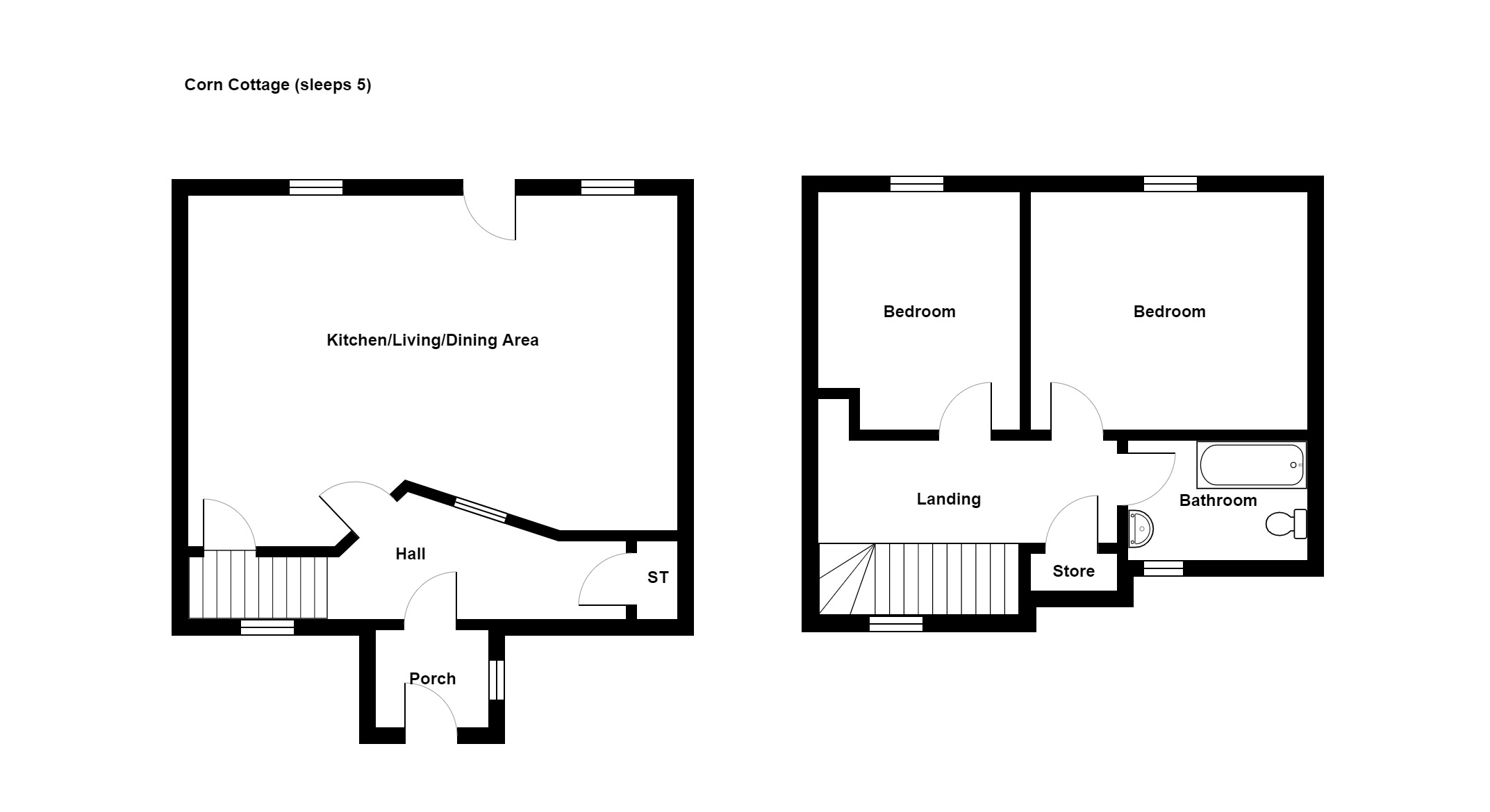
Ground Floor
Enclosed Entrance Porch Ceramic tiled floor.
Entrance Hall Ceramic tiled floor.
Cloakroom
Living/Kitchen/Dining Area 21'5" X 13'1" (6.53m X 4.00m) In the living area - `Morso´ wood-burning stove. In the kitchen area - full range of high and low level maple units. Stainless steel single drainer sink unit with mixer taps. 4 ring hob with under oven. Freezer. Dishwasher. Partially tiled walls. Ceramic tiled floor.

Storage understairs. Rear door leading to terrace.
First Floor
Bedroom 1 11'10" X 10'7" (3.60m X 3.23m) Laminate wooden floor.
Bedroom 2 11'3" X 9'6" (3.43m X 2.90m) Laminate wooden floor.
Bathroom White suite comprising panelled bath with thermostatic shower. Low flush WC. Pedestal wash hand basin. White towel radiator. Partially tiled walls. Ceramic tiled floor.
Landing Access to shelved hotpress.
Outside To the front is a South facing patio terrace. Communal parking. Storage area.

Broadband Speed Availability

Ultrafast

Potential Speeds for 8C Ballybryan Road

Max Download
1800
Mbps
Max Upload
220
Mbps
The speeds indicated represent the maximum estimated fixed-line speeds as predicted by Ofcom. Please note that these are estimates, and actual service availability and speeds may differ.

Property Location

Show Map

Mortgage Calculator

Disclaimer: The following calculations act as a guide only, and are based on a typical repayment mortgage model. Financial decisions should not be made based on these calculations and accuracy is not guaranteed. Always seek professional advice before making any financial decisions.

Contact Agent

Contact Simon Brien (East Belfast)

Contact Simon Brien (East Belfast)

Request More Information
Requesting Info about...
Corn Cottage, 8C Ballybryan Road, Greyabbey, Newtownards, BT22 2RB Corn Cottage, 8C Ballybryan Road, Greyabbey, Newtownards, BT22 2RB

By registering your interest, you acknowledge our Privacy Policy
Ask Holmes
Ask Holmes
Let's find your next home

Are you sure you want to reset the chat?

Checking API...