Detached Bungalow
Barnwell Farm Cottages, 8 Ballybryan Road
Greyabbey, Newtownards, BT22 2RB
asking price
£795,000
Key Features & Description
8 Self-Contained Holiday Cottages
Stable Block
Car Park
Two Laundry Rooms
Function Room / Games Room
Oil Fired Central Heating To All Cottage
Super Presentation Throughout With Furnishings Included
All Double Glazed
4-Star Rating
Superfast Broadband Installed
Description
Sitting within 1.2 acres Barnwell Farm Cottages is situated off a quiet country road, in the heart of the Ards Peninsula, 1 mile from Strangford Lough and 2 miles from the Irish Sea coast. The location is protected from noise and bustle of everyday life. It is tranquil and relaxing, surrounded by farmland and unspoilt countryside.
The farmhouse and courtyard has been sympathetically restored into 8 self-catering cottages. The use of traditional materials and clever design have captured the true atmosphere of a rural country cottage. This, coupled with a quality interior finish, reflects their 4-Star Rating.
The cottages are served by two Laundry buildings with a Separate Stable block with two loose boxes and a large Function Room or Games Room. A dedicated car park and stable yard caters for all guests as well as some cottages having terraces and three with garden access.
Rarely does an opportunity like this presents to the market with a fully restored farm dwelling and outbuildings into a fully functioning holiday let environment in the heart of the countryside yet enjoying easy access to a range of local amenities.
Local attractions include; Mount Stewart House & Gardens, Local Sandy Beaches, Exploris Aquarium, Ballycopeland Windmill, Castle Ward (via the Ferry), and Greyabbey Ancient Monument to name but a few.
The cottages have been awarded Gold by Green Tourism based on their ethos of using sustainable materials and recycling making this a must see destination for staycations and those from further afield.
Sitting within 1.2 acres Barnwell Farm Cottages is situated off a quiet country road, in the heart of the Ards Peninsula, 1 mile from Strangford Lough and 2 miles from the Irish Sea coast. The location is protected from noise and bustle of everyday life. It is tranquil and relaxing, surrounded by farmland and unspoilt countryside.
The farmhouse and courtyard has been sympathetically restored into 8 self-catering cottages. The use of traditional materials and clever design have captured the true atmosphere of a rural country cottage. This, coupled with a quality interior finish, reflects their 4-Star Rating.
The cottages are served by two Laundry buildings with a Separate Stable block with two loose boxes and a large Function Room or Games Room. A dedicated car park and stable yard caters for all guests as well as some cottages having terraces and three with garden access.
Rarely does an opportunity like this presents to the market with a fully restored farm dwelling and outbuildings into a fully functioning holiday let environment in the heart of the countryside yet enjoying easy access to a range of local amenities.
Local attractions include; Mount Stewart House & Gardens, Local Sandy Beaches, Exploris Aquarium, Ballycopeland Windmill, Castle Ward (via the Ferry), and Greyabbey Ancient Monument to name but a few.
The cottages have been awarded Gold by Green Tourism based on their ethos of using sustainable materials and recycling making this a must see destination for staycations and those from further afield.
Rooms
FUNCTION ROOM / GAMES ROOM: 50' 0" X 15' 6" (15.24m X 4.72m)
Power and light.
KITCHEN AREA:
Fitted with a range of units. Stainless steel sink drainer sink unit with mixer taps. 4 ring hob with under oven.
STAFF ROOM: 16' 1" X 10' 8" (4.90m X 3.25m)
Power and light.
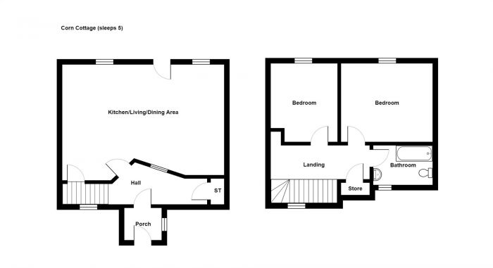
LIVING / KITCHEN AREA: 16' 4" X 16' 4" (4.98m X 4.98m)
In the living area - cast iron wood-burning stove. In the kitchen area - full range of high and low level maple units. Stainless steel single drainer sink unit with mixer taps. 4 ring hob with under oven. Freezer. Dishwasher. Partially tiled walls. Ceramic tiled floor.
Storage cupboard.
BEDROOM (1): 10' 9" X 10' 7" (3.28m X 3.23m)
Laminate wooden floor.
BEDROOM (2): 9' 10" X 6' 0" (3.00m X 1.83m)
Laminate wooden floor.
BATHROOM:
White suite comprising panel bath with thermostatic shower. Low flush WC. Pedestal wash hand basin. Partially tiled walls. Ceramic tiled floor.
LANDING:
Access to shelved hotpress.
ENCLOSED ENTRANCE PORCH:
Ceramic tiled floor.
ENTRANCE HALL:
Ceramic tiled floor.
CLOAKROOM:
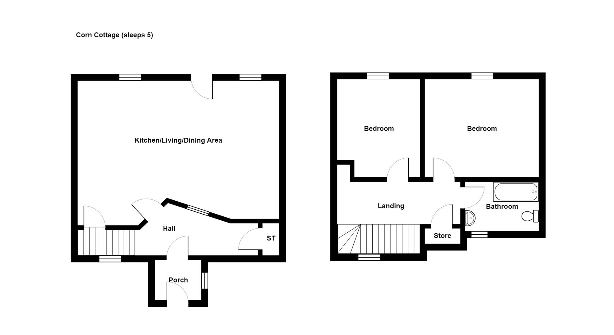
LIVING / KITCHEN AREA: 20' 9" X 13' 0" (6.32m X 3.96m)
In the living area - 'Morso' wood-burning stove. Ceramic tiled floor. In the kitchen area - full range of high and low level maple units. Stainless steel single drainer sink unit with mixer taps. 4 ring hob with under oven. Freezer. Dishwasher. Partially tiled walls. Ceramic tiled floor.
Storage understairs.
Rear door leading to terrace.
BEDROOM (1): 11' 10" X 10' 4" (3.61m X 3.15m)
Laminate wooden floor.
BEDROOM (2): 10' 4" X 9' 3" (3.15m X 2.82m)
Laminate wooden floor.
BATHROOM:
White suite comprising panel bath with thermostatic shower. Low flush WC. Pedestal wash hand basin. Chrome towel radiator. Partially tiled walls. Ceramic tiled floor.
LANDING:
Access to shelved hotpress.
ENCLOSED ENTRANCE PORCH:
Ceramic tiled floor.
ENTRANCE HALL:
Ceramic tiled floor.
CLOAKROOM:
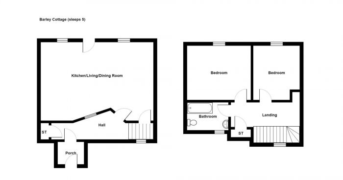
LIVING / KITCHEN / DINING AREA: 21' 5" X 13' 1" (6.53m X 3.99m)
In the living area - 'Morso' wood-burning stove. In the kitchen area - full range of high and low level maple units. Stainless steel single drainer sink unit with mixer taps. 4 ring hob with under oven. Freezer. Dishwasher. Partially tiled walls. Ceramic tiled floor.
Storage understairs.
Rear door leading to terrace.
BEDROOM (1): 11' 10" X 10' 7" (3.61m X 3.23m)
Laminate wooden floor.
BEDROOM (2): 11' 3" X 9' 6" (3.43m X 2.90m)
Laminate wooden floor.
BATHROOM:
White suite comprising panelled bath with thermostatic shower. Low flush WC. Pedestal wash hand basin. White towel radiator. Partially tiled walls. Ceramic tiled floor.
LANDING:
Access to shelved hotpress.
LIVING / KITCHEN AREA: 16' 3" X 16' 3" (4.95m X 4.95m)
In the living area - 'Morso' wood-burning stove. In the kitchen area - full range of high and low level maple units. Stainless steel single drainer sink unit with mixer taps. 4 ring hob with under oven. Freezer. Dishwasher. Partially tiled walls. Ceramic tiled floor. Patio doors leading to large garden and paved patio area.
Understairs storage.
BEDROOM (1): 9' 4" X 8' 4" (2.84m X 2.54m)
Laminate wooden floor.
BEDROOM (2): 9' 7" X 8' 1" (2.92m X 2.46m)
Laminate wooden floor.
BATHROOM:
White suite comprising panel bath with thermostatic shower. Low flush WC. Pedestal wash hand basin. White towel radiator. Partially tiled walls. Ceramic tiled floor.
LANDING:
Access to shelved hotpress and storage cupboard.
LIVING / KITCHEN AREA: 16' 3" X 16' 3" (4.95m X 4.95m)
In the living area - 'Morso' wood-burning stove. In the kitchen area - full range of high and low level maple units. Stainless steel single drainer sink unit with mixer taps. 4 ring hob with under oven. Freezer. Dishwasher. Partially tiled walls. Ceramic tiled floor.
Understairs storage.
BEDROOM (1): 9' 4" X 8' 4" (2.84m X 2.54m)
Laminate wooden floor.
BEDROOM (2): 9' 7" X 8' 1" (2.92m X 2.46m)
Laminate wooden floor.
BATHROOM:
White suite comprising panel bath with thermostatic shower. Low flush WC. Pedestal wash hand basin. White towel radiator. Partially tiled walls. Ceramic tiled floor.
LANDING:
Access to shelved hotpress and storage cupboard.
LIVING / KITCHEN / DINING AREA: 15' 2" X 14' 1" (4.62m X 4.29m)
In the living area - 'Morso' wood-burning stove. In the kitchen area - full range of high and low level maple units. Stainless steel single drainer sink unit with mixer taps. 4 ring hob with under oven. Freezer. Dishwasher. Partially tiled walls. Ceramic tiled floor.
INNER HALLWAY:
With separate access. Cloakroom and understairs storage.
BEDROOM (1): 15' 4" X 13' 5" (4.67m X 4.09m)
ENSUITE BATHROOM:
White suite comprising panel bath with thermostatic shower. Low flush WC. Pedestal wash hand basin. Chrome towel radiator. Ceramic tiled floor.
BEDROOM (2): 14' 2" X 9' 0" (4.32m X 2.74m)
Laminate wooden floor. Built-in wardrobes.
BEDROOM (3): 11' 6" X 9' 9" (3.51m X 2.97m)
Laminate wooden floor.
BATHROOM:
White suite comprising panel bath with thermostatic shower. Low flush WC. Pedestal wash hand basin. Chrome towel radiator. Ceramic tiled floor. Access to shelved hotpress.
ENTRANCE HALL:
Ceramic tiled floor.
LIVING / KITCHEN / DINING AREA: 17' 10" X 11' 10" (5.44m X 3.61m)
In the living area - electric fire. In the kitchen area - full range of high and low level maple units. Stainless steel single drainer sink unit with mixer taps. 4 ring hob with under oven. Freezer. Dishwasher. Partially tiled walls. Ceramic tiled floor.
SHOWER ROOM:
Wet room with thermostatic shower. Low flush WC. Pedestal wash hand basin. Fully tiled walls. Ceramic tiled floor. Chrome towel radiator.
BEDROOM (1): 13' 2" X 12' 8" (4.01m X 3.86m)
French double door to rear.
BEDROOM (2): 10' 3" X 8' 5" (3.12m X 2.57m)
LAUNDRY AREA: 10' 9" X 9' 9" (3.28m X 2.97m)
Oil fired boiler for Whin, Elm and Keepers Cottages. PV panels for hot water in Whin and Laundry area.
ENTRANCE HALL:
Ceramic tiled floor.
KITCHEN / DINING AREA: 15' 1" X 12' 2" (4.60m X 3.71m)
Full range of high and low level units. Range cooker. Stainless steel single drainer sink unit with mixer taps.Freezer. Dishwasher. Partially tiled walls. Ceramic tiled floor.
LIVING ROOM: 16' 10" X 15' 1" (5.13m X 4.60m)
Cast iron wood-burning stove. Ceramic tiled floor.
REAR HALLWAY:
Ceramic tiled floor. Separate access for understairs storage.
BEDROOM (1): 12' 3" X 8' 0" (3.73m X 2.44m)
Laminate wooden floor.
BEDROOM (2): 11' 8" X 8' 2" (3.56m X 2.49m)
Laminate wooden floor.
BEDROOM (3): 11' 8" X 8' 5" (3.56m X 2.57m)
Laminate wooden floor. Built-in wardrobes.
BATHROOM:
White suite comprising panel bath with thermostatic shower. Low flush WC. Pedestal wash hand basin. Chrome towel radiator.
INNER COURTYARD:
Separate low flush WC and wash hand basin.
COMMUNAL LAUNDRY ROOM: 16' 9" X 9' 0" (5.11m X 2.74m)
Plumbed for washing machine. Oil fired boiler for Games Room. Oil fired boiler for Brooks Cottage.
LOOSE BOX (1): 13' 2" X 12' 2" (4.01m X 3.71m)
LOOSE BOX (2): 17' 3" X 11' 2" (5.26m X 3.40m)
OIL TANK STORAGE: 13' 0" X 10' 0" (3.96m X 3.05m)
METER CUPBOARD: 9' 0" X 6' 5" (2.74m X 1.96m)
CAR PARKING:
Broadband Speed Availability
Potential Speeds for 8 Ballybryan Road
Max Download
1800
Mbps
Max Upload
220
MbpsThe speeds indicated represent the maximum estimated fixed-line speeds as predicted by Ofcom. Please note that these are estimates, and actual service availability and speeds may differ.
Property Location
Mortgage Calculator
Directions
1 mile out of Greyabbey taken the first road on the right into the Ballybryan Road, the Cottages are only a further quarter mile on your left hand side.
Contact Agent
Contact Simon Brien (East Belfast)
Request More Information
Requesting Info about...
Barnwell Farm Cottages, 8 Ballybryan Road, Greyabbey, Newtownards, BT22 2RB
By registering your interest, you acknowledge our Privacy Policy
By registering your interest, you acknowledge our Privacy Policy