Contact Agent

Contact Simon Brien (South Belfast)

Contact Simon Brien (South Belfast)

3 Bed Semi-Detached House

22 Bates Park

Greenisland, Carrickfergus, BT38 8LG

offers over £215,000
  • Status For Sale
  • Property Type Semi-Detached
  • Bedrooms 3
  • Receptions 1
  • Bathrooms 2
  • EPC Rating D65 / C71
  • Stamp Duty
    Higher amount applies when purchasing as buy to let or as an additional property
    £1,800 / £12,550*
  • Typical Mortgage
    Click price to use our mortgage calculator
EPC Rating

Key Features & Description

  • Fantastic semi-detached family home in area of consistently high demand
  • Bright living room with solid wood fireplace
  • Modern Fitted Kitchen Open To Dining Area
  • first floor family bathroom
  • Three excellent bedrooms, master with an en suite shower room
  • Mains gas heating,
  • uPVC double glazing
  • Suitable to a broad range of purchasers
  • Enclosed Rear Garden
  • Driveway Parking
  • Description
    Just outside Whiteabbey Village in Greenisland this fabulous semi detached home therefore enjoys proximity to a host of amenities including public transport links, village-type shops, excellent schooling, public parks, the coastal path and multiple beaches. Tastefully presented the accommodation briefly comprises a generous living room, contemporary kitchen open plan dining area. On the first floor there are three bedrooms including a master with en suite and bathroom.

    We recommend an internal appraisal at your earliest convenience.

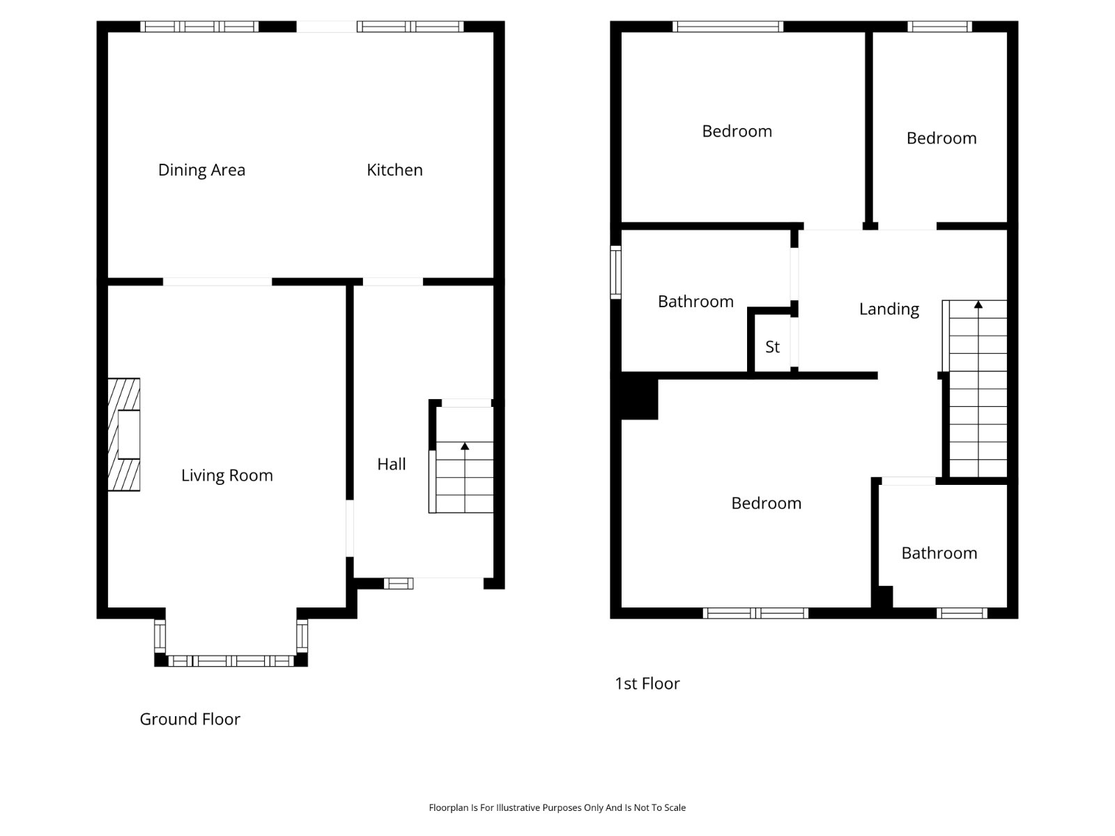
    Rooms

    Solid wood and glass front door to
    Reception Hall Laminate wood floor
    Living Room 17'7" X 11'1" (5.36m X 3.38m) Laminate wood floor, bay window, solid wood fireplace and granite hearth, double doors to
    Kitchen/Dining Area 17'7" X 11'3" (5.36m X 3.43m) Ceramic tiled floor, range of high and low level units, stainless steel sink unit, 'Belling' double electric oven, 4 ring ceramic hob, part tiled walls, plumbed for washing machine, Worchester gas boiler, space for fridge, glazed door to outside
    First Floor Landing Shelved hotpress with access to
    Main Bedroom 14'1" X 16'3" (4.30m X 4.95m)
    Ensuite Tiled floor, low flush WC, pedestal wash hand basin with single tap, corner shower cubicle with Mira Sport electric shower, extractor fan
    Bedroom 2 10'9" X 8'6" (3.28m X 2.60m)
    Bedroom 3 8'6" X 6'4" (2.60m X 1.93m)
    Bathroom Ceramic tiled floor, half tiled wall, low flush WC, pedestal wash hand basin, bath with telephone hand shower above
    Outside Front garden in lawn

    Broadband Speed Availability

    Ultrafast

    Potential Speeds for 22 Bates Park

    Max Download
    1800
    Mbps
    Max Upload
    220
    Mbps
    The speeds indicated represent the maximum estimated fixed-line speeds as predicted by Ofcom. Please note that these are estimates, and actual service availability and speeds may differ.

    Property Location

    Show Map

    Mortgage Calculator

    Disclaimer: The following calculations act as a guide only, and are based on a typical repayment mortgage model. Financial decisions should not be made based on these calculations and accuracy is not guaranteed. Always seek professional advice before making any financial decisions.

    Contact Agent

    Contact Simon Brien (South Belfast)

    Contact Simon Brien (South Belfast)

    Request More Information
    Requesting Info about...
    22 Bates Park, Greenisland, Carrickfergus, BT38 8LG 22 Bates Park, Greenisland, Carrickfergus, BT38 8LG

    By registering your interest, you acknowledge our Privacy Policy