Contact Agent
Contact Ulster Property Sales (UPS) Andersonstown
5 Bed Detached Bungalow
Detached Family Home With Annex 47A Chapel Road
Glenavy, BT29 4LY
offers around
£385,000
Key Features & Description
A unique opportunity to acquire a magnificent extended detached family home that enjoys a peaceful countryside landscaped setting.
Five excellent bright double bedrooms / Four separate reception rooms to include a self contained Annex with independent access offering multi generational living.
Principle Bedroom with Ensuite shower room.
Luxury fitted kitchen / dining area / Extended Sunroom.
White bathroom suite.
Upvc Double glazed windows / doors / Eaves and fascia also in Upvc.
Oil fired central heating.
Large Detached double garage / Workshop.
Mature landscaped freehold site with feature gravel driveway and ample car parking to rear.
Excellent fresh presentation throughout / Well worth a visit.
Description
A unique opportunity to acquire a magnificent extended detached family home that enjoys a peaceful countryside landscaped setting surrounded by open countryside and mature greenery and all the joy that a bright South facing freehold spacious site can bring. With convenience to all of the amenities on Glenavy's Main Street which includes Shops, chemist and a bar /restaurant, the property is within easy reach of surrounding villages, arterial routes and the wider motorway network, making a commute easy, to Belfast, Lisburn and Antrim with Belfast International Airport only 10 minutes away.
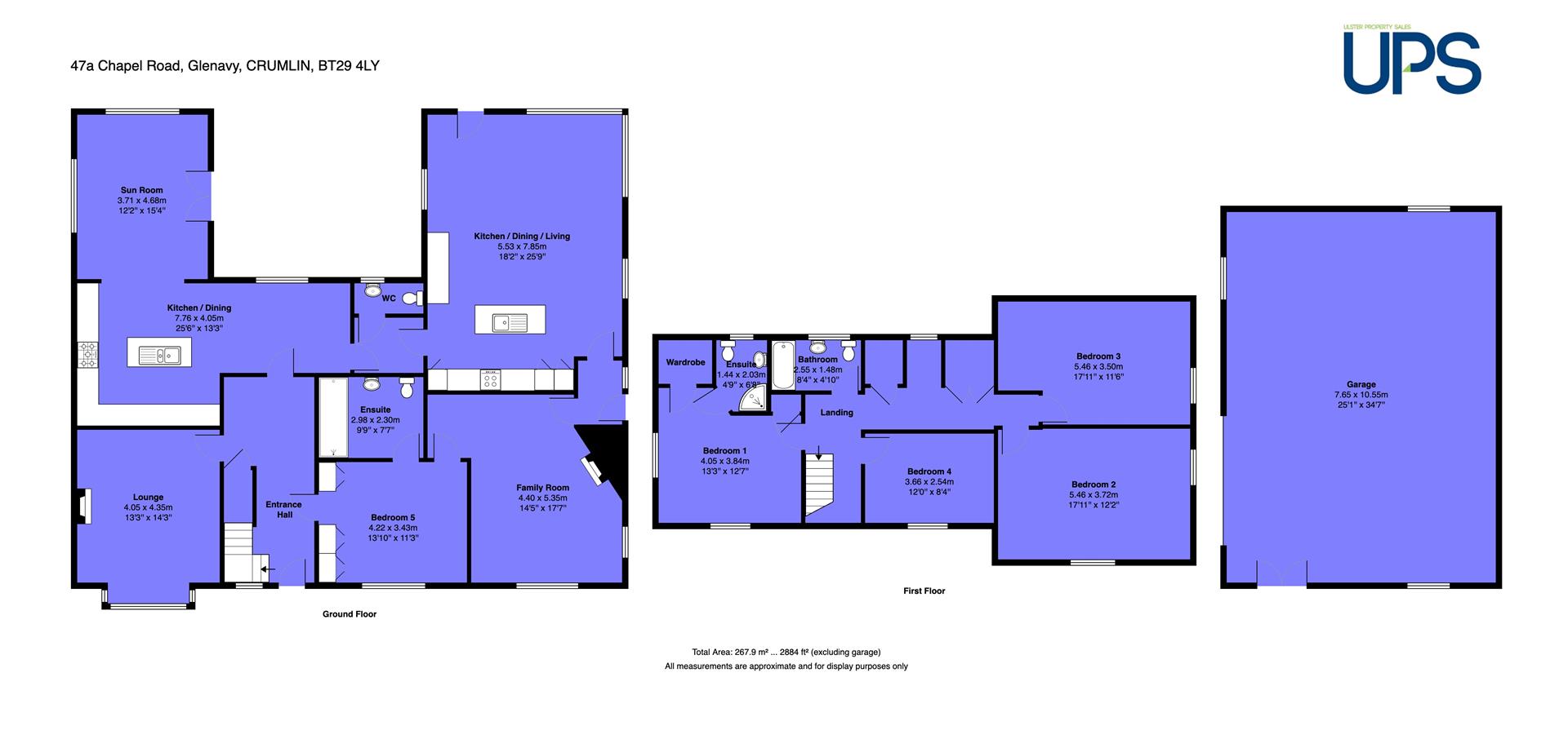
The property offers exceptional space, flexible and versatile accommodation across 2884 Sq / ft to incorporate a Self contained Annex with independent access that offers multi generational living. Five comfortable double bedrooms. Principle bedroom with ensuite shower room and walk-in dressing wardrobe. Four separate reception rooms to include an extended Sun room with double patio doors. Upvc double glazed windows / Doors / Eaves and fascia also in Upvc. Oil fired central heating system. Feature floor coverings and internal doors. Downstairs W.c. Luxury fitted kitchen with casual dining area and separate Utility room linking to ( Annex Accommodation ) living /dining / kitchen / living space. Bedroom 5 with ensuite shower room. Luxury white shower suite. Upvc double glazed windows, oil fired central heating system. Downstairs W.c. Large detached double garage / Workshop with Pvc Roller door. Mature landscaped gardens with feature gravel driveway and ample car parking.
Only upon viewing can this substantial well appointed extended family home and surrounding landscaped site be fully appreciated, well worth a visit. A home that will not disappoint!
A unique opportunity to acquire a magnificent extended detached family home that enjoys a peaceful countryside landscaped setting surrounded by open countryside and mature greenery and all the joy that a bright South facing freehold spacious site can bring. With convenience to all of the amenities on Glenavy's Main Street which includes Shops, chemist and a bar /restaurant, the property is within easy reach of surrounding villages, arterial routes and the wider motorway network, making a commute easy, to Belfast, Lisburn and Antrim with Belfast International Airport only 10 minutes away.
The property offers exceptional space, flexible and versatile accommodation across 2884 Sq / ft to incorporate a Self contained Annex with independent access that offers multi generational living. Five comfortable double bedrooms. Principle bedroom with ensuite shower room and walk-in dressing wardrobe. Four separate reception rooms to include an extended Sun room with double patio doors. Upvc double glazed windows / Doors / Eaves and fascia also in Upvc. Oil fired central heating system. Feature floor coverings and internal doors. Downstairs W.c. Luxury fitted kitchen with casual dining area and separate Utility room linking to ( Annex Accommodation ) living /dining / kitchen / living space. Bedroom 5 with ensuite shower room. Luxury white shower suite. Upvc double glazed windows, oil fired central heating system. Downstairs W.c. Large detached double garage / Workshop with Pvc Roller door. Mature landscaped gardens with feature gravel driveway and ample car parking.
Only upon viewing can this substantial well appointed extended family home and surrounding landscaped site be fully appreciated, well worth a visit. A home that will not disappoint!
Rooms
GROUND FLOOR
Feature Upvc double glazed entrance door.
ENTRANCE HALL
Feature wooden stripped floor, storage under stairs.
LOUNGE 16'7" X 14'3 (5.05m X 4.34m)
Feature fireplace with inset and hearth, cast iron wood burner.
LUXURY FITTED KITCHEN / DINING AREA 25'8 X 14'4 (7.82m X 4.37m)
Excellent range of high and low level high gloss units, feature granite work tops, feature Island with sink unit, 5 ring gas hob, overhead extractor hood, tiling, built-in electric oven and further built-in gas oven, dishwasher, feature down lighters, casual dining area, feature porcelain tiled flooring extending to, archway open to
EXTENDED SUNROOM 18'6 X 15'8 (5.64m X 4.78m)
Feature flooring, downlighters, double patio doors / garden access
UTILITY ROOM
Separate w.c, low flush wc, wash hand basin.
FIRST FLOOR
Hotpress on landing / double built-robe.
PRINCIPLE BEDROOM 1 14'4 X 13'4 (4.37m X 4.06m)
ENSUITE SHOWER ROOM
Fully tiled shower cubicle, shower unit, wash hand basin, vanity unit, heated towel rail, low flush w.c, tiling, tiled flooring,velux window.
WALKIN DOUBLE WARDROBE
BEDROOM 2 12'9 X 10'2 (3.89m X 3.10m)
BEDROOM 3 18'6 X 9'7 (5.64m X 2.92m)
Storage into eaves.
BERROOM 4 14'9 X 8'4 (4.50m X 2.54m)
Storage into eaves.
WHITE BATHROOM SUITE
Feature tiled paneled bath, shower unit / screen, semi pedestal wash hand basin, low flush wc, tiling, tiled flooring.
ANNEX ACCOMMODATION / GROUND FLOOR
Upvc double glazed entrance door / entrance hall
ENTRANCE PORCH / HALL
Upvc double glazed entrance door to:
LOUNGE 17'7 X 14'5 (5.36m X 4.39m)
Feature fire place inset and hearth, wooden stripped flooring.
LUXURY KITCHEN / DINING / LIVING 25'9 X 18'2 (7.85m X 5.54m)
Range of high and low level units, feature Island with contemporary sink unit and work tops, 4 ring ceramic hob, built-in hob, overhead extractor hood, feature porcelain tiled flooring, downlighters, feature corner window, Upvc double glazed door / garden access.
BEDROOM 5 13'1 X 11'3 (3.99m X 3.43m)
Feature built-in robe, (access to main house)
ENSUITE SHOWER ROOM
Feature Shower enclosure, semi pedestal wash hand basin, low flush wc, tiling, tiled flooring.
OUTSIDE
Landscaped neatly maintained mature gardens in lawns front and rear with ranch styled fencing, mature planting with trees and hedging, feature paving, gravel driveway to front and side with ample car parking to rear leading to;
LARGE DEATCHED DOUBLE GARAGE / WORKSHOP 36 X 35 (10.97m X 10.67m)
Feature pvc roller door, light and power.
Property Location
Mortgage Calculator
Contact Agent
Contact Ulster Property Sales (UPS) Andersonstown
Request More Information
Requesting Info about...
Detached Family Home With Annex 47A Chapel Road, Glenavy, BT29 4LY
By registering your interest, you acknowledge our Privacy Policy
By registering your interest, you acknowledge our Privacy Policy