Contact Agent

Contact Armstrong Gordon & Co

Contact Armstrong Gordon & Co

Site

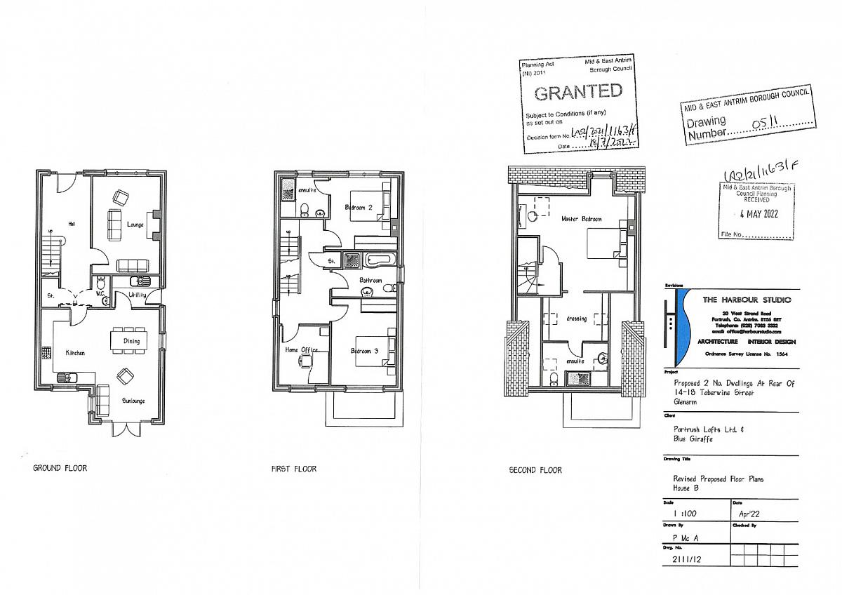
Two Detached Building Plots To Rear Of 14-18 Toberwine Street

Glenarm, BT44 0AA

offers over £99,500
  • Status For Sale
  • Property Type Site
  • Stamp Duty
    Higher amount applies when purchasing as buy to let or as an additional property
    £0 / £4,975*
  • Tenure Freehold
  • Typical Mortgage
    Click price to use our mortgage calculator

Key Features & Description

Planning Permission Valid To 18th July 2027 (Ref: LA02/2021/1163/F)
Superb Contemporary Design Passed With Dressing Room, Office, Bedrooms & Sun Room Area
Full Plans Available From Agent
Situated Within Short Walk Of Glenarm Castle, Marina & Glenarm Forest Park
300 Acre Glenarm Forest Park
Description
Armstrong Gordon are delighted to present for sale two exceptional detached building sites, ideally situated within close proximity to Glenarm Marina, the seafront and the renowned Glenarm Castle and forest. Each site boasts full planning permission, together with the benefit of private parking and landscaped garden areas, offering an excellent opportunity to create a bespoke home in this historic coastal setting.
A share in the ownership of this property is owned by a relative of an employee of Armstrong Gordon.

Property Location

Show Map

Mortgage Calculator

Disclaimer: The following calculations act as a guide only, and are based on a typical repayment mortgage model. Financial decisions should not be made based on these calculations and accuracy is not guaranteed. Always seek professional advice before making any financial decisions.

Directions

Glenarm is a charming village in County Antrim, located along the scenic A2 coastal route which stretches from Ballycastle in the north to Larne in the south. On entering the village, cross the Glenarm River Bridge and take the first exit at the roundabout onto Toberwine Street. The sites are immediately on the left, positioned behind the Moonwater Crystal Shop. Alternatively, they can be accessed from the coast road via Castleview, turning right into Altmore Walk.

Contact Agent

Contact Armstrong Gordon & Co

Contact Armstrong Gordon & Co

Request More Information
Requesting Info about...
Two Detached Building Plots To Rear Of 14-18 Toberwine Street, Glenarm, BT44 0AA Two Detached Building Plots To Rear Of 14-18 Toberwine Street, Glenarm, BT44 0AA

By registering your interest, you acknowledge our Privacy Policy
Ask Holmes
Ask Holmes
Let's find your next home

Are you sure you want to reset the chat?

Checking API...