Contact Agent
Contact John Minnis Estate Agents (Greater Belfast)
3 Bed Detached Bungalow
34 Gortland Park
Gilnahirk, Belfast, BT5 7NU
offers over
£330,000
Key Features & Description
Spacious Three Bedroom Detached Bungalow situated in the Highly Regarded Gortland Park area
Bright and Welcoming Entrance Hall Leading to Generous Reception Rooms
Large Lounge Featuring a Bow Window and Stone Fireplace, Flooded with Natural Light
Second Room with French Doors Opening Onto and Overlooking the Rear Garden
Fitted Kitchen with Good Storage, Integrated Appliances, and Tiled Flooring
Versatile Sunroom Providing Additional Living Space with Stunning Garden Views
Contemporary Shower Room with Wood-Effect Flooring
Three Well-Proportioned Bedrooms Offering Comfortable Accommodation Throughout
Mature Private Rear Garden with Expansive Lawns, Patio Area, and Beautiful Planting
Driveway Parking Leading to an Attached Garage Providing Ample Storage and Convenience
PVC Double Glazing and Gas Heating
Fully Floored and Sheeted Roofspace Providing Excellent Storage
Peaceful Residential Location Close to Leading Schools, Shops, and Transport Links
Perfect Opportunity to Acquire a Charming Home Offering Excellent Potential in a Prime Location
Description
Nestled in the highly sought-after Gortland Park area, this delightful three-bedroom detached bungalow offers spacious, light-filled accommodation and beautifully maintained gardens in a peaceful residential setting.
The property welcomes you with a private driveway, attached garage, and a neatly landscaped front garden. Inside, the generous living room features a large bay window that floods the space with natural light and provides views across the quiet cul-de-sac. A second room with patio doors, opens onto the superb rear garden - the perfect spot to enjoy the surrounding greenery.
The fitted kitchen offers excellent storage and workspace, with direct access to the sunroom and rear patio. Three well-proportioned bedrooms and a modern family shower room complete the internal accommodation, providing comfortable and versatile living.
Outside, the mature rear garden is a real highlight - expansive, private, and gently elevated, offering views over the surrounding area. The patio area provides an ideal space for outdoor dining and entertaining, while the lawn and established planting offer year-round appeal.
Located in a quiet, well-regarded area close to local shops, schools, and public transport links, this superb home combines convenience with tranquillity - ideal for those seeking single-level living without compromise.
Nestled in the highly sought-after Gortland Park area, this delightful three-bedroom detached bungalow offers spacious, light-filled accommodation and beautifully maintained gardens in a peaceful residential setting.
The property welcomes you with a private driveway, attached garage, and a neatly landscaped front garden. Inside, the generous living room features a large bay window that floods the space with natural light and provides views across the quiet cul-de-sac. A second room with patio doors, opens onto the superb rear garden - the perfect spot to enjoy the surrounding greenery.
The fitted kitchen offers excellent storage and workspace, with direct access to the sunroom and rear patio. Three well-proportioned bedrooms and a modern family shower room complete the internal accommodation, providing comfortable and versatile living.
Outside, the mature rear garden is a real highlight - expansive, private, and gently elevated, offering views over the surrounding area. The patio area provides an ideal space for outdoor dining and entertaining, while the lawn and established planting offer year-round appeal.
Located in a quiet, well-regarded area close to local shops, schools, and public transport links, this superb home combines convenience with tranquillity - ideal for those seeking single-level living without compromise.
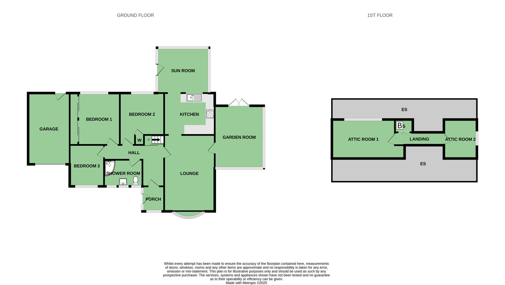
Rooms
ENTRANCE
Wooden front door with glazed side lights, top light, and insets into entrance porch.
Entrance Porch:
With tiled flooring, wooden glazed inner door into entrance hall.
GROUND FLOOR
Entrance Hall:
Access to roofspace.
Lounge: 17'10" X 11'10" (5.44m X 3.61m)
With outlook to front and views over Belfast, cornice ceiling, stone fireplace with built-in shelf and tiled hearth.
Garden Room: 14'7" X 11'5" (4.45m X 3.48m)
With double glazed French doors leading to rear garden, recessed spotlights.
Fitted Kitchen: 11'10" X 9'9" (3.61m X 2.97m)
With range of beech effect high- and low-level units, laminate worktop, stainless steel sink unit, chrome mixer tap, integrated hob and extractor fan with canopy, integrated dishwasher, integrated double oven, fridge freezer space, glass display cabinet, integrated wine rack, plumbed for washing machine, open to sunroom.
Sun Room: 12'2" X 10'7" (3.71m X 3.23m)
With pine tongue and groove ceiling, PVC double glazed back door to rear garden, tiled floor.
Bedroom One: 12'1" X 11'9" (3.68m X 3.58m)
Range of built-in mirrored slide robes.
Bedroom Two: 12'1" X 10'4" (3.68m X 3.15m)
Outlook to rear, built in storage.
Bedroom Three: 9'8" X 8'0" (2.95m X 2.44m)
Outlook to front.
Shower Room:
Modern white suite comprising corner shower cubicle with thermostatic shower, vanity unit with drawers and chrome mixer tap, low flush WC, fully tiled walls, tongue and groove ceiling.
ROOFSPACE
Landing with gas boiler.
Attic Room One: 17'0" X 9'1" (5.18m X 2.77m)
With eaves storage.
Attic Room Two: 9'1" X 7'9" (2.77m X 2.36m)
With eaves storage.
OUTSIDE
Attached Garage: 16'8" X 9'9" (5.08m X 2.97m)
With up and over door, light, and power.
Outside:
Tarmac driveway to front leading to attached garage, gardens to front in lawn with mature shrubs, excellent garden to rear in lawns with paved patio areas, mature shrubs, trees, bushes, plants, excellent views across Belfast and surrounding countryside.
East Belfast is a dynamic part of the city, full of beautiful residential areas and a wide variety of amenities that make it a wonderful place to live. Bustling villages, beautiful parks, and fantastic local schools are just a few of the reasons why so many wish to call it home
Broadband Speed Availability
Potential Speeds for 34 Gortland Park
Max Download
1800
Mbps
Max Upload
220
MbpsThe speeds indicated represent the maximum estimated fixed-line speeds as predicted by Ofcom. Please note that these are estimates, and actual service availability and speeds may differ.
Property Location
Mortgage Calculator
Contact Agent
Contact John Minnis Estate Agents (Greater Belfast)
Request More Information
Requesting Info about...
34 Gortland Park, Gilnahirk, Belfast, BT5 7NU
By registering your interest, you acknowledge our Privacy Policy
By registering your interest, you acknowledge our Privacy Policy