Contact Agent

Contact H A McIlrath & Sons Ltd

Contact H A McIlrath & Sons Ltd

4 Bed Detached House

Adj. 34 Brone Road

Garvagh, BT51 4EQ

asking price £300,000
  • Status Sale Agreed
  • Property Type Detached
  • Bedrooms 4
  • Receptions 2
  • Heating Oil
  • Stamp Duty
    Higher amount applies when purchasing as buy to let or as an additional property
    £5,000 / £20,000*
  • Typical Mortgage
    Click price to use our mortgage calculator

Key Features & Description

EXCITING RURAL NEW BUILD
Description

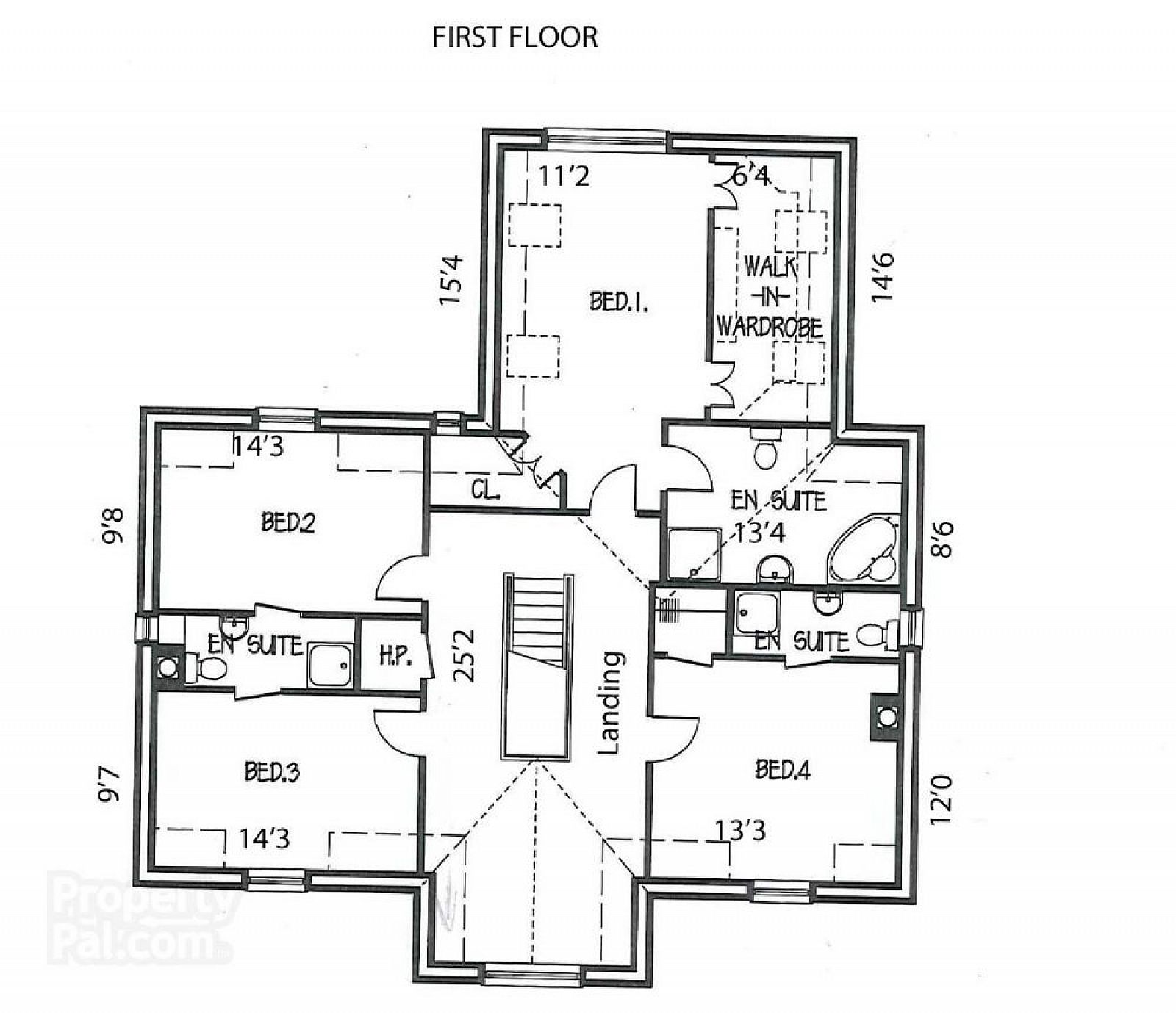
    • 4 Bedrooms (3 En-Suite) High Specification. Turnkey Finish
    •  
    • O.F.C.H. Ground floor underfloor Heating.  First Floor Radiators. PVC Double Glazing. 2700 Sq. Ft. Double Garage. 


 




    • Handy location on a minor road close to Aghadowey and approximately 3 miles Garvagh and 10 miles Coleraine


 




    • Generous PC Sum £30,000 ~ Kitchens / Bathrooms Tiling Etc.


 




    • Traditionally constructed Walls in a range of Brick, Concrete and Render.


 




    • Generous Site in the heart of open countryside with pleasant views.


 




    • A Short distance from the Agivey River well known for its excellent Trout and Salmon Fishing.


 




    • Local builder who takes pride in his work and has an eye for detail.

Broadband Speed Availability

Basic

Potential Speeds for Adj. 34 BRONE ROAD

Max Download
12
Mbps
Max Upload
1
Mbps
The speeds indicated represent the maximum estimated fixed-line speeds as predicted by Ofcom. Please note that these are estimates, and actual service availability and speeds may differ.

Property Location

Show Map

Mortgage Calculator

Disclaimer: The following calculations act as a guide only, and are based on a typical repayment mortgage model. Financial decisions should not be made based on these calculations and accuracy is not guaranteed. Always seek professional advice before making any financial decisions.

Directions

From Garvagh take the Coleraine Road. Before you go out of the 30 mph Zone turn right into the Moneycarrie Road. Go 1 mile and take the first on the right Brone Road. Go over the Bridge and first Lane on the left.

Contact Agent

Contact H A McIlrath & Sons Ltd

Contact H A McIlrath & Sons Ltd

Request More Information
Requesting Info about...
Adj. 34 Brone Road, Garvagh, BT51 4EQ Adj. 34 Brone Road, Garvagh, BT51 4EQ

By registering your interest, you acknowledge our Privacy Policy