Contact Agent

Contact Michael Chandler Estate Agents

Contact Michael Chandler Estate Agents

3 Bed

15 Glenholm Crescent

Four Winds, Belfast, BT8 6LT

asking price £235,000
  • Status For Sale
  • Bedrooms 3
  • Receptions 1
  • Bathrooms 1
  • Interior Area 1077 sqft
  • Heating Gas
  • EPC Rating D55 / D61 -
  • Stamp Duty
    Higher amount applies when purchasing as buy to let or as an additional property
    £2,200 / £13,950*
  • Typical Mortgage
    Click price to use our mortgage calculator
EPC Rating

Key Features & Description

  • A charming three bedroom semi-detached property located in the Four Winds Area
  • Welcoming entrance hall with convenient under stair storage
  • Dual aspect living & dining area with beautiful feature fireplace & double doors to the rear garden
  • Spacious kitchen with a number of high and low units and plumbed for white goods
  • Two well proportioned double bedrooms - one with built in storage
  • A versatile third bedroom complete with built in storage - perfect as a guest room or home office
  • Modern family bathroom benefitting from a stylish white four piece suite
  • Gas fired central heating and double glazed throughout
  • Spacious detached garage with light and power - offering excellent additional storage
  • Front garden laid in lawn boarded with mature shrubs
  • Tarmac driveway providing excellent off street parking
  • South facing rear garden laid in lawn with patio area - perfect for enjoying BBQ's with family
  • Within catchment to a fantastic range of primary and secondary schools in the area
  • Excellent range of local amenities including Forestside & Tesco N'breda just a short drive away
  • Excellent transport links to and from Belfast city centre and surrounding towns a short walk away
  • Description
    This charming three-bedroom semi-detached home is ideally located in the ever-popular Four Winds area, offering comfortable family living in a highly convenient location.

    As you enter the home you are greeted with a bright entrance hall complete with practical under-stair storage. A spacious dual-aspect living and dining area provides an excellent space for both relaxing and entertaining, featuring a beautiful fireplace as a focal point and double doors opening directly onto the rear garden. The kitchen is generously sized and fitted with a range of high and low level units, with plumbing in place for white goods and ample space for everyday family needs.

    Upstairs, there are two well-proportioned double bedrooms, one of which benefits from built-in storage. A versatile third bedroom, also with built-in storage, is ideal for use as a guest room, nursery, or home office. Upstairs is completed by a modern family bathroom fitted with a stylish white four-piece suite.

    Outside, the property enjoys a front garden laid in lawn and bordered by mature shrubs, along with a tarmac driveway providing excellent off-street parking. A spacious detached garage with light and power offers superb additional storage or workshop potential. The fully enclosed south facing rear garden is laid in lawn with a patio area, making it perfect for outdoor dining, entertaining, and family BBQs.

    The location is second to none, falling within the catchment area for a range of highly regarded primary and secondary schools. A fantastic range of local amenities, including Forestside Shopping Centre and Tesco Newtownbreda, are just a short drive away, while excellent transport links to Belfast city centre and surrounding towns are within easy walking distance.

    Your Next Move...

    Thinking of selling, it would be a pleasure to offer you a FREE VALUATION of your property.

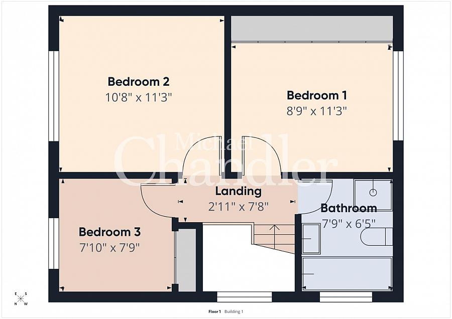
    Rooms

    Entrance Porch 6'1 X 2'3 (1.85m X 0.69m)
    Hallway 7'0 X 13'9 (2.13m X 4.19m)
    Living & Dining Room 10'6 X 22'9 (3.20m X 6.93m)
    Kitchen 7'9 X 12'1 (2.36m X 3.68m)
    Landing 2'11 X 7'8 (0.89m X 2.34m)
    Bedroom 1 8'9 X 11'3 (2.67m X 3.43m)
    Bedroom 2 10'8 X 11'3 (3.25m X 3.43m)
    Bedroom 3 7'`10 X 7'9 (2.13m`3.05 X 2.36m)
    Bathroom 7'9 X 6'5 (2.36m X 1.96m)
    Detached Garage 11'3 X 22'5 (3.43m X 6.83m)
    Michael Chandler Estate Agents have endeavoured to prepare these sales particulars as accurately and reliably as possible for the guidance of intending purchasers or lessees. These particulars are given for general guidance only and do not constitute any part of an offer or contract. The seller and agents do not give any warranty in relation to the property/ site. We would recommend that all information contained in this brochure is verified by yourself or your professional advisors. Services, fittings and equipment referred to in the sales details have not been tested and no warranty is given to their condition. All measurements contained within this brochure are approximate. Site sizes are approximate and have not been verified.
    As an estate agency, we are required to verify the identity of both the vendor and the purchaser in accordance with Money Laundering Regulations 2017. In order to purchase a property in the United Kingdom, all agents have a legal obligation to conduct identity checks on all customers involved in the transaction to comply with Anti-Money Laundering regulations.
    We outsource these checks to a third-party provider and a charge of £20 + VAT per person will apply for this service.

    Virtual Tour

    Broadband Speed Availability

    Ultrafast

    Potential Speeds for 15 Glenholm Crescent

    Max Download
    1800
    Mbps
    Max Upload
    220
    Mbps
    The speeds indicated represent the maximum estimated fixed-line speeds as predicted by Ofcom. Please note that these are estimates, and actual service availability and speeds may differ.

    Property Location

    Show Map

    Mortgage Calculator

    Disclaimer: The following calculations act as a guide only, and are based on a typical repayment mortgage model. Financial decisions should not be made based on these calculations and accuracy is not guaranteed. Always seek professional advice before making any financial decisions.

    Contact Agent

    Contact Michael Chandler Estate Agents

    Contact Michael Chandler Estate Agents

    Request More Information
    Requesting Info about...
    15 Glenholm Crescent, Four Winds, Belfast, BT8 6LT 15 Glenholm Crescent, Four Winds, Belfast, BT8 6LT

    By registering your interest, you acknowledge our Privacy Policy
    Ask Holmes
    Ask Holmes
    Let's find your next home

    Are you sure you want to reset the chat?

    Checking API...