Contact Agent

Contact Simon Brien (South Belfast)

Contact Simon Brien (South Belfast)

3 Bed Semi-Detached House

4 The Pines

Newton Park, Belfast, BT8 6UH

price £230,000
  • Status Sale Agreed
  • Property Type Semi-Detached
  • Bedrooms 3
  • Receptions 1
  • Bathrooms 1
  • EPC Rating E46 / C77
  • Stamp Duty
    Higher amount applies when purchasing as buy to let or as an additional property
    £2,100 / £13,600*
  • Typical Mortgage
    Click price to use our mortgage calculator
EPC Rating

Key Features & Description

  • Fabulous family home in most convenient and desirable location
  • Spacious living room with solid wooden flooring and attractive fireplace
  • Contemporary fitted kitchen with excellent range of integrated appliances and breakfast bar
  • Open plan dining room with herring bone wood effect flooring and access to rear
  • Three bright, well-proportioned bedrooms
  • Modern white bathroom suite and feature tiling
  • Driveway parking for multiple vehicles leading to an attached garage
  • Front and enclosed rear garden with decking and patio area
  • Oil fired central heating, uPVC double glazing
  • Description
    Just off Newton Park in the ever-popular area of Four Winds in South Belfast this charming family home is therefore most convenient to a broad range of amenities including excellent schooling, village-type shops, recreational facilities and transport links.

    The accommodation has been well presented throughout and features a spacious living room with feature fireplace, modern fitted kitchen with integrated appliances and a breakfast bar, open-plan family/dining room leading to the rear garden, three excellent bedrooms and a family bathroom. Externally there is good driveway parking, an attached garage and enclosed rear gardens ideal for relaxing and unwinding.

    A fabulous home in a consistently popular location we recommend an internal viewing at your convenience.

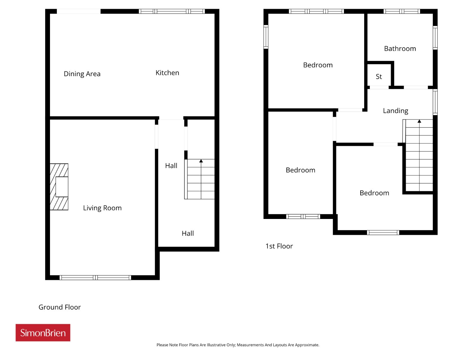
    Rooms

    Composite door to
    Reception Hall Wood strip flooring, storage understairs
    Living Room 14'6" X 12'5" (4.42m X 3.78m) Matching flooring, marble fireplace
    Kitchen 11'0" X 9'0" (3.35m X 2.74m) Contemporary kitchen with excellent range of units, integrated appliances and breakfast bar.  Open to
    Dining Room 11'0" X 9'6" (3.35m X 2.90m) Patio door to rear garden
    First Floor Landing Shelved hotpress with copper cylinder
    Bedroom 1 12'1" X 11'1" (3.68m X 3.38m)
    Bedroom 2 13'10" X 8'9" (4.22m X 2.67m)
    Bedroom 3 10'2" X 9'10" (3.10m X 3.00m) L-Shaped
    Bathroom 7'11" X 6'8" (2.41m X 2.03m) Modern white suite comprising WC, wash hand basin, p-shaped bath with electric shower
    Outside Driveway parking for multiple vehicles, front and enclosed rear garden providing a delightful spot for relaxing and unwinding.
    Garage Light and power, plumbed for washing machine

    Broadband Speed Availability

    Ultrafast

    Potential Speeds for 4 The Pines

    Max Download
    1800
    Mbps
    Max Upload
    220
    Mbps
    The speeds indicated represent the maximum estimated fixed-line speeds as predicted by Ofcom. Please note that these are estimates, and actual service availability and speeds may differ.

    Property Location

    Show Map

    Mortgage Calculator

    Disclaimer: The following calculations act as a guide only, and are based on a typical repayment mortgage model. Financial decisions should not be made based on these calculations and accuracy is not guaranteed. Always seek professional advice before making any financial decisions.

    Contact Agent

    Contact Simon Brien (South Belfast)

    Contact Simon Brien (South Belfast)

    Request More Information
    Requesting Info about...
    4 The Pines, Newton Park, Belfast, BT8 6UH 4 The Pines, Newton Park, Belfast, BT8 6UH

    By registering your interest, you acknowledge our Privacy Policy
    Ask Holmes
    Ask Holmes
    Let's find your next home

    Are you sure you want to reset the chat?

    Checking API...