Contact Agent

Contact Simon Brien (South Belfast)

Contact Simon Brien (South Belfast)

3 Bed Semi-Detached House

52 Beechgrove Gardens

Belfast, County Antrim, BT6 0NP

offers over £250,000
  • Status Sale Agreed
  • Property Type Semi-Detached
  • Bedrooms 3
  • Bathrooms 1
  • EPC Rating C76 / C74
  • Stamp Duty
    Higher amount applies when purchasing as buy to let or as an additional property
    £2,500 / £15,000*
  • Typical Mortgage
    Click price to use our mortgage calculator
EPC Rating

Key Features & Description

  • Attractive Red Brick Semi-Detached Family Home
  • Superb Elevated Position With Views Over Belfast City Centre from First Floor
  • Three Generous Bedrooms
  • Spacious Living Room With Remote Controlled Gas Stove
  • Modern Fully Fitted Kitchen open to Dining Area
  • Bathroom In White Suite
  • Gas Fired Central Heating
  • PVC Double Glazing
  • Detached Garage
  • Tiered Garden With Paved & Raised Decked Sitting Area
  • Concrete Driveway parking
  • Popular And Convenient Residential Location Close To All Local Amenities, Schooling, Transport Routes, Belfast City Centre And Forestside Shopping Centre
  • Viewing by Private Appointment
  • Description
    The Beechgrove area has consistently proved one of the most sought after locations ideally situated off the Upper Knockbreda Road and close to all local amenities within the area including excellent schooling, transport routes and Forestside Shopping Centre, with Belfast city centre a short drive away.

    This particular property benefits from its elevated position and has well presented accommodation providing a three bedroom layout, living room, open plan kitchen /dining and bathroom in white suite. Externally the property is positioned on an elevated site with pleasant views over Belfast with gardens to the rear and detached garage

    Likely to be of interest to the young professional, first time buyer or family in today´s market viewing of this excellent semi-detached home is by private appointment through our Lisburn Road office on 028 9066 8888.

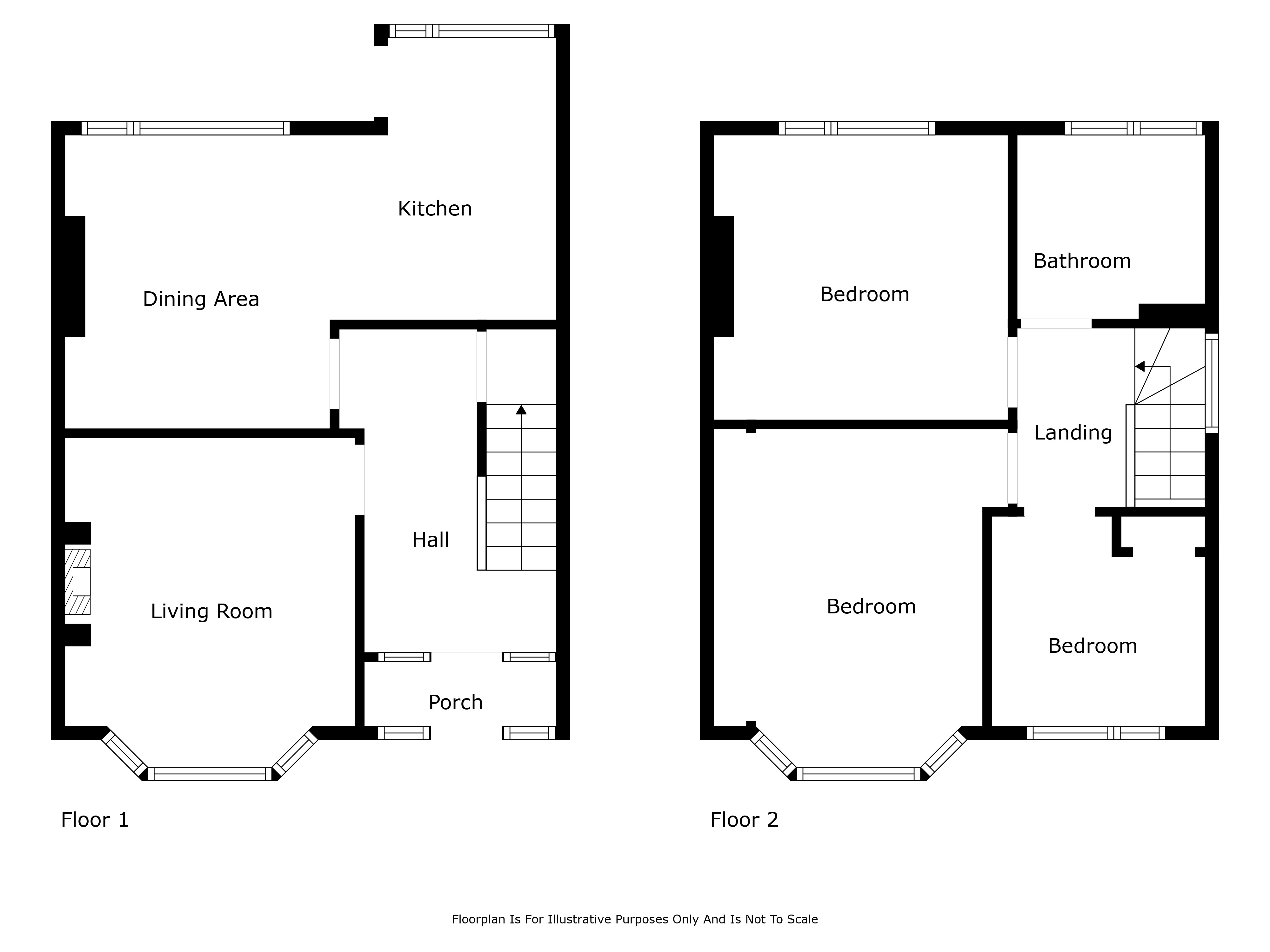
    Rooms

    Composite front door to
    Entrance Porch Tiled floor, uPVC double glazed front door to
    Reception Hall Solid wood parquet floor, understairs storage cupboard
    Living Room 14'7" X 12'10" (4.45m X 3.90m) Solid wood parquet floor, remote controlled gas stove with slate hearth and solid wood beam
    Kitchen / Dining 25'9" X 18'1" (7.85m X 5.50m) Tiled floor, range of high and low level units, eye-level electric oven, 4 ring ceramic hob, stainless steel extractor fan, integrated dishwasher, stainless steel sink unit, plumbed for washing machine, part tiled walls, uPVC double glazed door leading outside
    First Floor Landing Access to partly floored roofspace
    Bedroom 1 14'9" X 14'0" (4.50m X 4.27m) Laminate wood floor, mirror slide robes
    Bedroom 2 13'5" X 18'0" (4.10m X 5.49m)
    Bedroom 3 15'7" X 13'0" (4.75m X 3.96m)
    Bathroom Tiled floor, bath with tiled surround, pedestal wash hand basin with vanity unit, fully tiled shower cubicle with rainhead shower
    Outside Concrete driveway to the side of the house. Front garden in lawn. Enclosed paved rear garden with steps to decked sitting area
    Detached Garage 23'4" X 15'8" (7.10m X 4.78m) Up and over door, power and light, plumbed for washing machine

    Broadband Speed Availability

    Ultrafast

    Potential Speeds for 52 Beechgrove Gardens

    Max Download
    1800
    Mbps
    Max Upload
    220
    Mbps
    The speeds indicated represent the maximum estimated fixed-line speeds as predicted by Ofcom. Please note that these are estimates, and actual service availability and speeds may differ.

    Property Location

    Show Map

    Mortgage Calculator

    Disclaimer: The following calculations act as a guide only, and are based on a typical repayment mortgage model. Financial decisions should not be made based on these calculations and accuracy is not guaranteed. Always seek professional advice before making any financial decisions.

    Contact Agent

    Contact Simon Brien (South Belfast)

    Contact Simon Brien (South Belfast)

    Request More Information
    Requesting Info about...
    52 Beechgrove Gardens, Belfast, County Antrim, BT6 0NP 52 Beechgrove Gardens, Belfast, County Antrim, BT6 0NP

    By registering your interest, you acknowledge our Privacy Policy