Contact Agent
Contact Templeton Robinson (Lisburn Road)
4 Bed Detached House
7 Bracken Hill Terrace
Four Winds, Belfast, BT8 6ZT
offers over
£375,000
Key Features & Description
Beautifully presented link-detached property
Property extending to approximately 2,200 sqft
4 double bedrooms, principal with ensuite shower room & walk-in wardrobe/dressing room
Large living room with feature gas fire
Bright & spacious open plan kitchen, living, dining with French doors to rear garden
Separate family room
Utility room & downstairs wc
Family bathroom with white suite
Landscaped enclosed rear garden with artificial grass & raised patio area ideal for barbecuing & outdoor entertaining / Off street parking
Gas fired central heating / Double glazed throughout
Popular development close to local amenities & transport networks including the Outer Ring
Description
This beautifully presented, extended, link-detached home is situated in the sought after Four Winds area of south Belfast making it an ideal choice for both young professionals and growing families.
Finished to a high standard throughout, this property is sure to attract a wide range of buyers, boasting spacious accommodation, the property features four double bedrooms with the principal bedroom benefitting from an ensuite shower room and walk-in wardrobe/dressing room on the first floor. The ground floor offers a generous lounge with feature gas fireplace, a separate family room with French doors to rear garden and a bright open plan kitchen, dining and living area, complemented by a separate utility room.
Outside the property includes landscaped, south facing garden with artificial grass and a raised patio area for outdoor entertaining, there is also off street parking. Conveniently located near Forestside shopping centre, top rated primary and secondary schools, public transport links and the Outer Ring, this home offers an exceptional setting for modern living.
This beautifully presented, extended, link-detached home is situated in the sought after Four Winds area of south Belfast making it an ideal choice for both young professionals and growing families.
Finished to a high standard throughout, this property is sure to attract a wide range of buyers, boasting spacious accommodation, the property features four double bedrooms with the principal bedroom benefitting from an ensuite shower room and walk-in wardrobe/dressing room on the first floor. The ground floor offers a generous lounge with feature gas fireplace, a separate family room with French doors to rear garden and a bright open plan kitchen, dining and living area, complemented by a separate utility room.
Outside the property includes landscaped, south facing garden with artificial grass and a raised patio area for outdoor entertaining, there is also off street parking. Conveniently located near Forestside shopping centre, top rated primary and secondary schools, public transport links and the Outer Ring, this home offers an exceptional setting for modern living.
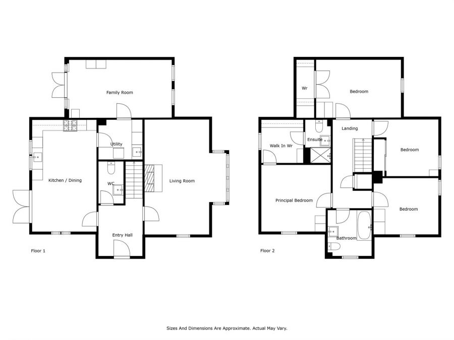
Rooms
Composite front door to . . .
RECEPTION HALL:
Ceramic tiled floor, low voltage spotlights.
DOWNSTAIRS W.C.:
White suite comprising low flush wc, floating wash hand basin with chrome mixer tap and tiled splashback, low voltage spotlights, extractor fan.
LIVING ROOM: 28' 0" X 15' 5" (8.53m X 4.70m)
(measurements into square bay). Dual aspect windows, oak laminate wooden floor, composite surround fireplace with granite inset and hearth, gas coal fire, low voltage spotlights.
KITCHEN: 27' 0" X 12' 3" (8.23m X 3.73m)
Modern fully fitted kitchen with excellent range of high and low level units with granite worktops, built-in oven, four ring gas hob with extractor fan and stainless steel splashback, single drainer sink unit with mixer tap, integrated dishwasher, fridge and freezer, ceramic tiled floor. Open to ample dining area with uPVC double glazed French doors to rear garden, dual aspect windows, low voltage spotlights, Ideal concealed gas fired boiler.
UTILITY ROOM:
Range of high and low level units, laminate work surfaces, stainless steel single drainer sink unit with mixer tap, ceramic tiled floor, cloaks area, extractor fan, plumbed for washing machine, vented for tumble dryer.
FAMILY ROOM: 19' 6" X 10' 0" (5.94m X 3.05m)
Oak laminate wood floor, low voltage spotlights, uPV C double glazed French doors to rear garden.
LANDING:
Airing cupboard with built-in shelving.
PRINCIPAL BEDROOM: 13' 4" X 12' 9" (4.06m X 3.89m)
Carpeted floor. Access to . . .
ENSUITE SHOWER ROOM & DRESSING ROOM:
White suite comprising low flush wc, wash hand basin with chrome mixer tap, built-in shower cubicle with shower unit, splashback with mosaic inset detail, ceramic tiled floor, part tiled walls, low voltage spotlights, extractor fan.
BEDROOM (2): 15' 7" X 10' 4" (4.75m X 3.15m)
Double doors to walk-in storage area.
BEDROOM (3): 11' 9" X 10' 2" (3.58m X 3.10m)
Laminate wooden floor.
BEDROOM (4): 12' 1" X 10' 2" (3.68m X 3.10m)
Laminate wooden floor, dual aspect windows, hatch to roofspace.
BATHROOM:
White suite comprising low flush wc, floating wash hand basin with chrome mixer tap, tiled panelled bath with chrome mixer tap, shower unit, shower screen, part tiled walls with mosaic detail, ceramic tiled floor, low voltage spotlights, extractor fan.
Driveway with off street parking. Enclosed, landscaped rear garden laid in artificial lawn, paved patio area, southerly aspect, outside tap, raised timber decked area with glass balustrade, excellent area for outdoor entertaining, garden shed.
Broadband Speed Availability
Potential Speeds for 7 Bracken Hill Terrace
Max Download
1800
Mbps
Max Upload
220
MbpsThe speeds indicated represent the maximum estimated fixed-line speeds as predicted by Ofcom. Please note that these are estimates, and actual service availability and speeds may differ.
Property Location
Mortgage Calculator
Directions
From the Ballymaconaghy Road turn onto Laurel Grove Avenue, continue on Laurel Grove Avenue and Bracken Hill Terrace is located on the left hand side.
Contact Agent
Contact Templeton Robinson (Lisburn Road)
Request More Information
Requesting Info about...
7 Bracken Hill Terrace, Four Winds, Belfast, BT8 6ZT
By registering your interest, you acknowledge our Privacy Policy
By registering your interest, you acknowledge our Privacy Policy