Land
Building Site At Moybrone Road
Letterbreen, Enniskillen, BT74 9EP
offers over
£80,000
- Status For Sale
- Property Type Land
- Receptions 1
- Heating Not Specified
-
Stamp Duty
Higher amount applies when purchasing as buy to let or as an additional property£0 / £4,000*
Key Features & Description
LA10/2016/0849/RM
Opportunity For A Detached Country Residence
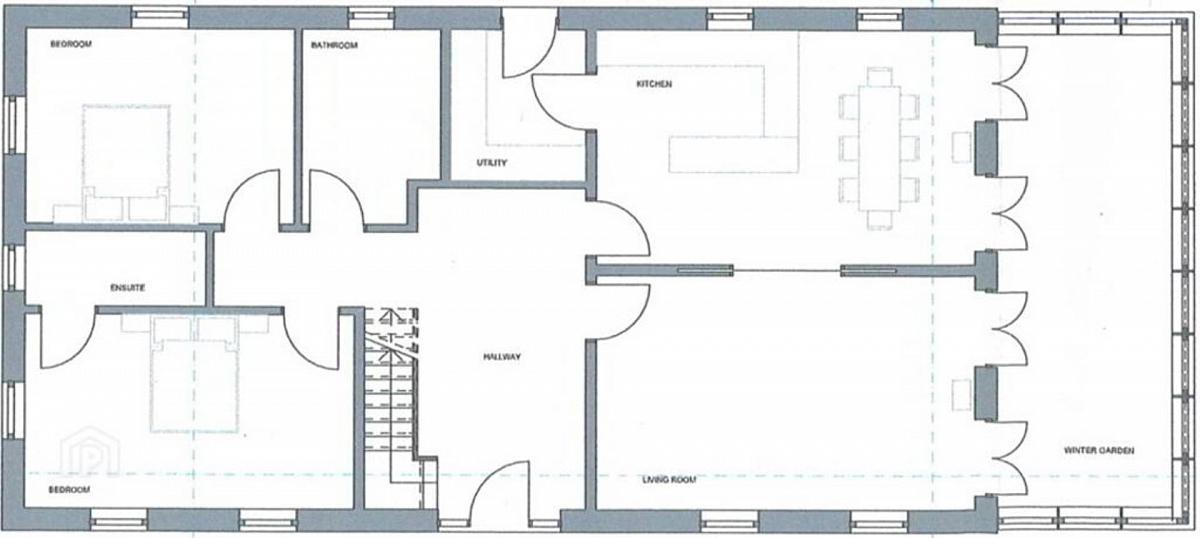
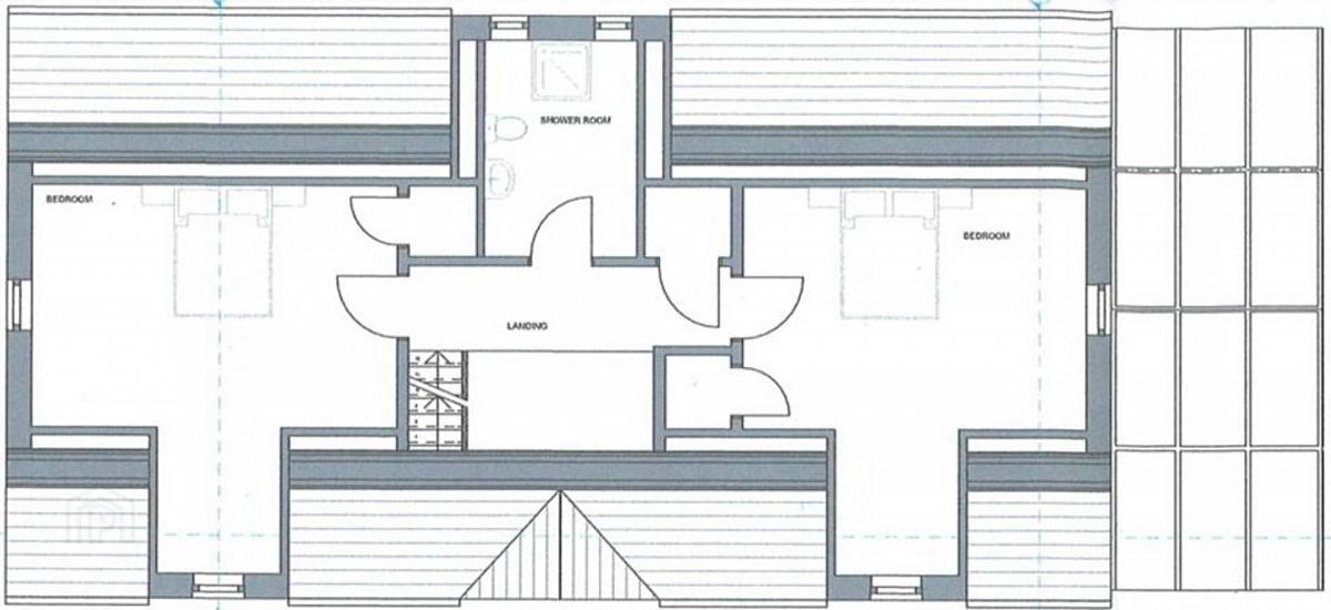
Full Planning Available For A 4 Bedroom Residence
10 Minutes To Enniskillen, Convenient To The Main Sligo Road
Description
A Building Site Opportunity For A Detached Residence Set Within A Tranquil Country Setting Affording Picturesque Views Of Belmore Mountain.
A lovely opportunity to acquire a prime building site with planning approval for the construction of a detached residence set within a stunning and tranquil countryside location, just 10 minutes from Enniskillen and a convenient drive to the main Sligo Road.
The site offers an ideal setting to create an individual home surrounded by natural beauty, with beautiful views and a palace full rural atmosphere. It provides a rare opportunity to allow you to construct your own home with the charm of country living with convenient access to Enniskillen.
FOR FURTHER DETAILS PLEASE CONTACT THE SELLING AGENTS ON (028) 66320456.
Notice
Please note we have not tested any apparatus, fixtures, fittings, or services. Interested parties must undertake their own investigation into the working order of these items. All measurements are approximate and photographs provided for guidance only.
Utilities
Electric: Unknown
Gas: Unknown
Water: Unknown
Sewerage: Unknown
Broadband: Unknown
Telephone: Unknown
Other Items
Heating: Not Specified
Garden/Outside Space: No
Parking: No
Garage: No
A Building Site Opportunity For A Detached Residence Set Within A Tranquil Country Setting Affording Picturesque Views Of Belmore Mountain.
A lovely opportunity to acquire a prime building site with planning approval for the construction of a detached residence set within a stunning and tranquil countryside location, just 10 minutes from Enniskillen and a convenient drive to the main Sligo Road.
The site offers an ideal setting to create an individual home surrounded by natural beauty, with beautiful views and a palace full rural atmosphere. It provides a rare opportunity to allow you to construct your own home with the charm of country living with convenient access to Enniskillen.
FOR FURTHER DETAILS PLEASE CONTACT THE SELLING AGENTS ON (028) 66320456.
Notice
Please note we have not tested any apparatus, fixtures, fittings, or services. Interested parties must undertake their own investigation into the working order of these items. All measurements are approximate and photographs provided for guidance only.
Utilities
Electric: Unknown
Gas: Unknown
Water: Unknown
Sewerage: Unknown
Broadband: Unknown
Telephone: Unknown
Other Items
Heating: Not Specified
Garden/Outside Space: No
Parking: No
Garage: No
Property Location
Mortgage Calculator
Contact Agent
Contact Smyth Leslie & Co
Request More Information
Requesting Info about...
Building Site At Moybrone Road, Letterbreen, Enniskillen, BT74 9EP
By registering your interest, you acknowledge our Privacy Policy
By registering your interest, you acknowledge our Privacy Policy