Land
Drumary
Derrygonnelly, Enniskillen, BT93 6GA
Price on Application
- Status For Sale
- Property Type Land
- Receptions 1
- Heating Not Specified
Key Features & Description
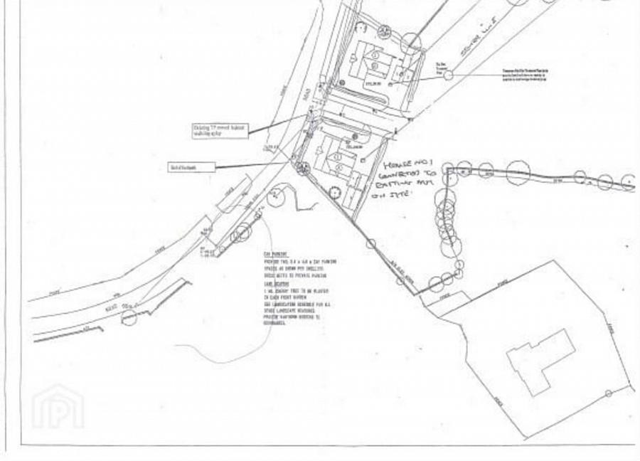
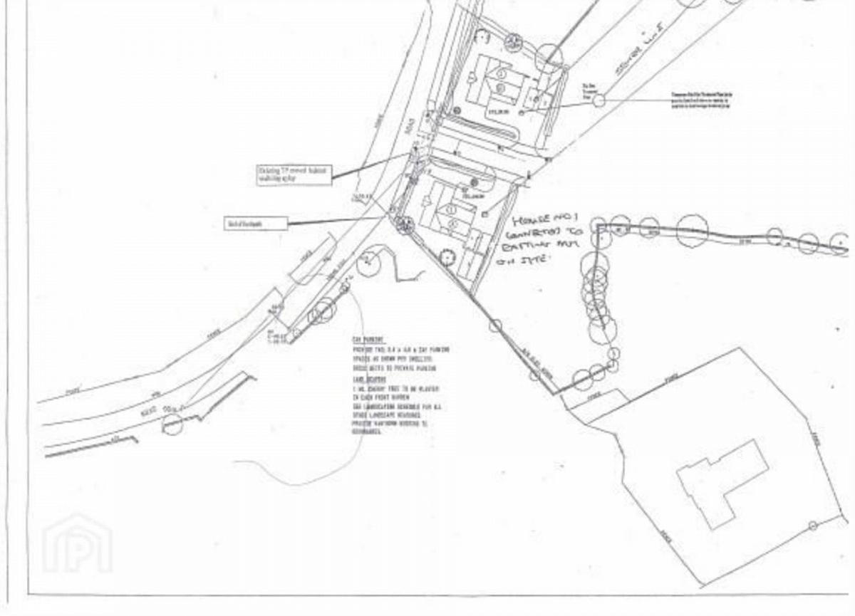
C. 4 Acres
Dual Access Position
Edge of Village Point
Set Within The Local Limits
Currently Used for Agricultural Purposes
Planning Potential (Subject to Approval)
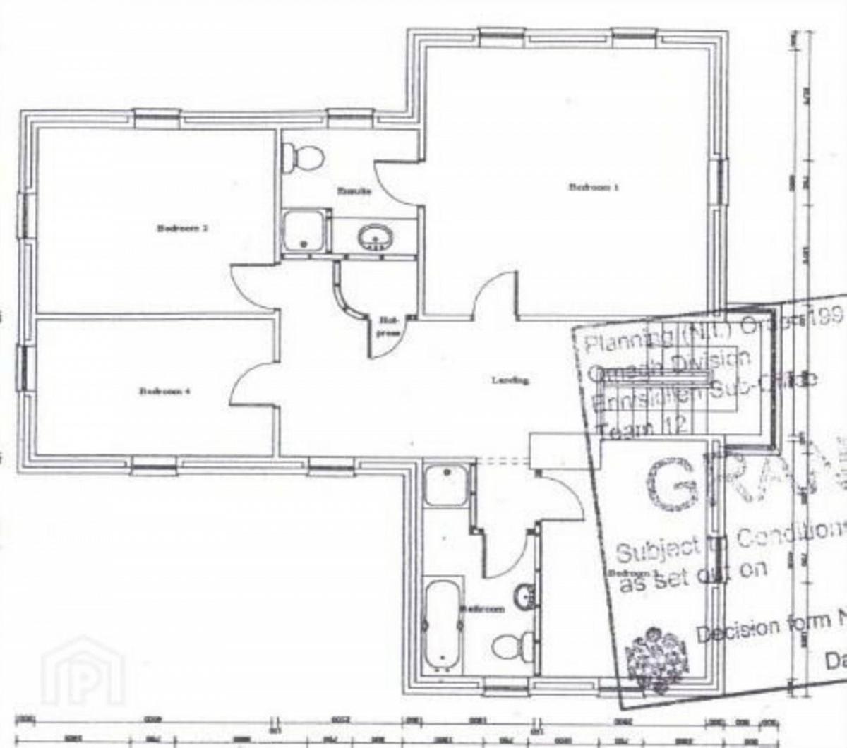
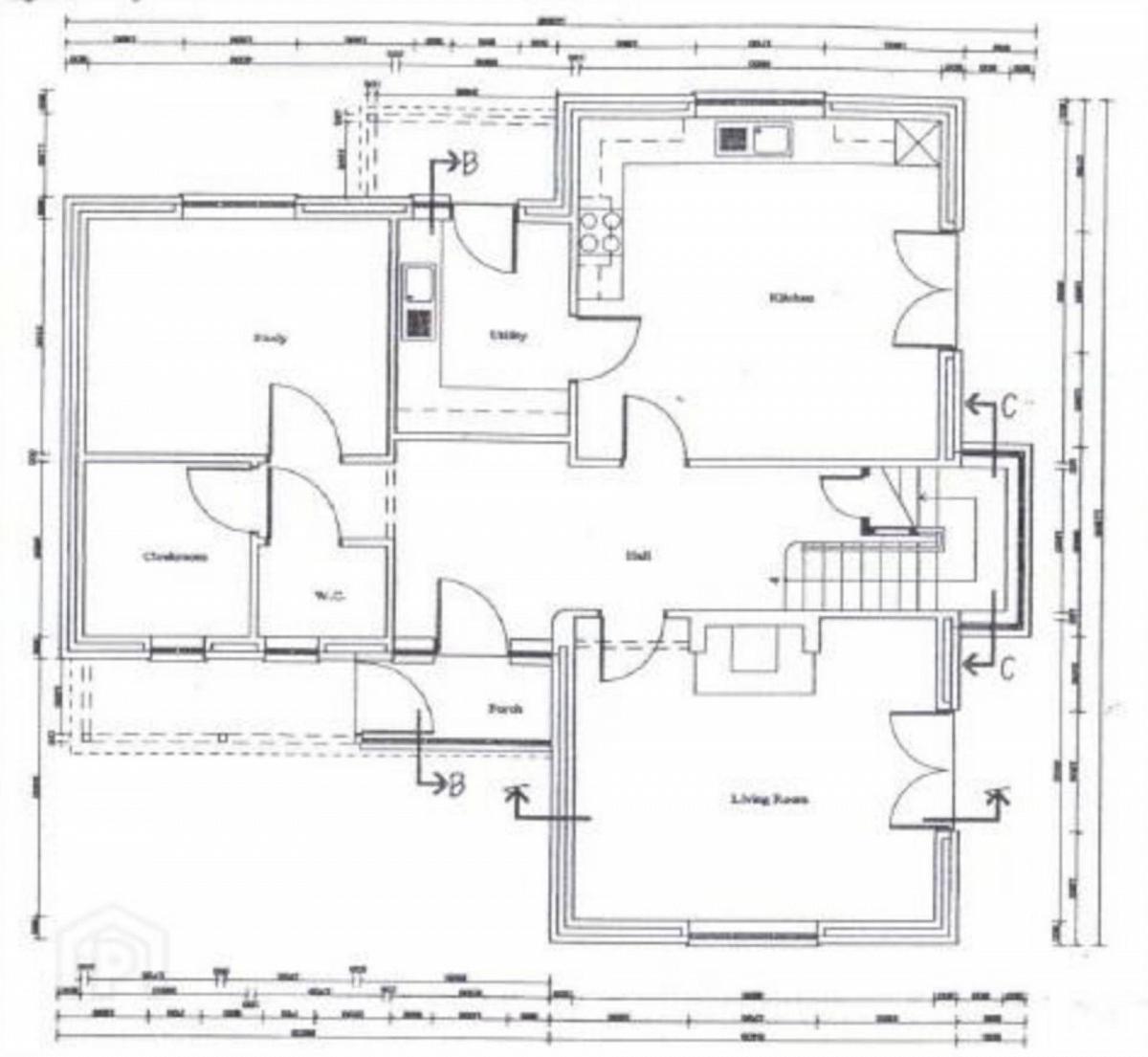
FPP In Place For Detached 4 Bedroom Residence
Foundations Have Been Constructed
Connection To Public Sewer
All Mains Services Close By
Description
Situated on the edge of Derrygonnelly Village, this eye catching building site offers Full Planning Permission for a detached 4 bedrooms residence, providing an excellent opportunity to construct a family home in an attractive village location, adjacent to many local amenities and attractions, combining family life and all that village living has to offer.
Notice
Please note we have not tested any apparatus, fixtures, fittings, or services. Interested parties must undertake their own investigation into the working order of these items. All measurements are approximate and photographs provided for guidance only.
Utilities
Electric: Unknown
Gas: Unknown
Water: Unknown
Sewerage: Unknown
Broadband: Unknown
Telephone: Unknown
Other Items
Heating: Not Specified
Garden/Outside Space: No
Parking: No
Garage: No
Situated on the edge of Derrygonnelly Village, this eye catching building site offers Full Planning Permission for a detached 4 bedrooms residence, providing an excellent opportunity to construct a family home in an attractive village location, adjacent to many local amenities and attractions, combining family life and all that village living has to offer.
Notice
Please note we have not tested any apparatus, fixtures, fittings, or services. Interested parties must undertake their own investigation into the working order of these items. All measurements are approximate and photographs provided for guidance only.
Utilities
Electric: Unknown
Gas: Unknown
Water: Unknown
Sewerage: Unknown
Broadband: Unknown
Telephone: Unknown
Other Items
Heating: Not Specified
Garden/Outside Space: No
Parking: No
Garage: No
Property Location
Contact Agent
Contact Smyth Leslie & Co
Request More Information
Requesting Info about...
Drumary, Derrygonnelly, Enniskillen, BT93 6GA
By registering your interest, you acknowledge our Privacy Policy
By registering your interest, you acknowledge our Privacy Policy