Land (Single Dwelling)
Druminiskill Road
Enniskillen, BT92 3AT
guide price
£75,000
- Status Sale Agreed
- Property Type Land (Single Dwelling)
- Receptions 1
- Heating Not Specified
-
Stamp Duty
Higher amount applies when purchasing as buy to let or as an additional property£0 / £3,750*
Description
Building Site Within The Wonderful Back Drop Of Fermanagh's Breathtaking Countryside, set on 3 Acres & With FPP For An Architecturally Designed Home That Reflects Its Beautiful Setting.
·
FPP For A Significant Residence (LA10/2022/0551/F)
·
Set On 3 Acres Including Natural Woodland
·
Designed To Reflect Its Country Location With Beautiful Views
·
Views Towards Cuilcagh Mountain
·
Located A Short Distance From The A509 Derrylin Road
·
A Convenient Drive To Florencecourt & Bellanaleck
·
8 Miles To Enniskillen
·
A Perfect Opportunity Within Such A Perfect Country Location
Positioned a short distance from the main A509 Derrylin Road, a convenient drive to Florencecourt and the main Swalinbar Road, close to Bellanaleck village, 8 miles from Enniskillen, this unique building site has the perfect balance of wonderful countryside and the convenience of a central location.
Set on some 3 acres that includes natural woodland, the site offers full planning approval for an Architecturally designed residence, designed to reflect its unique surroundings, taking advantage of its views towards the Cuilcagh Mountain Range.
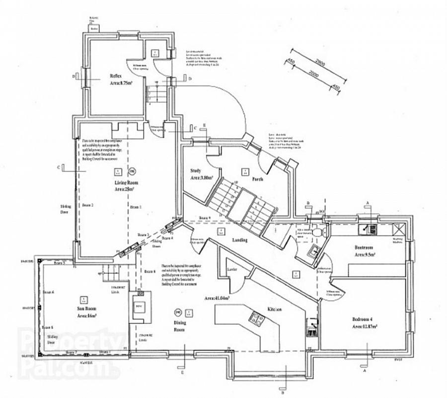
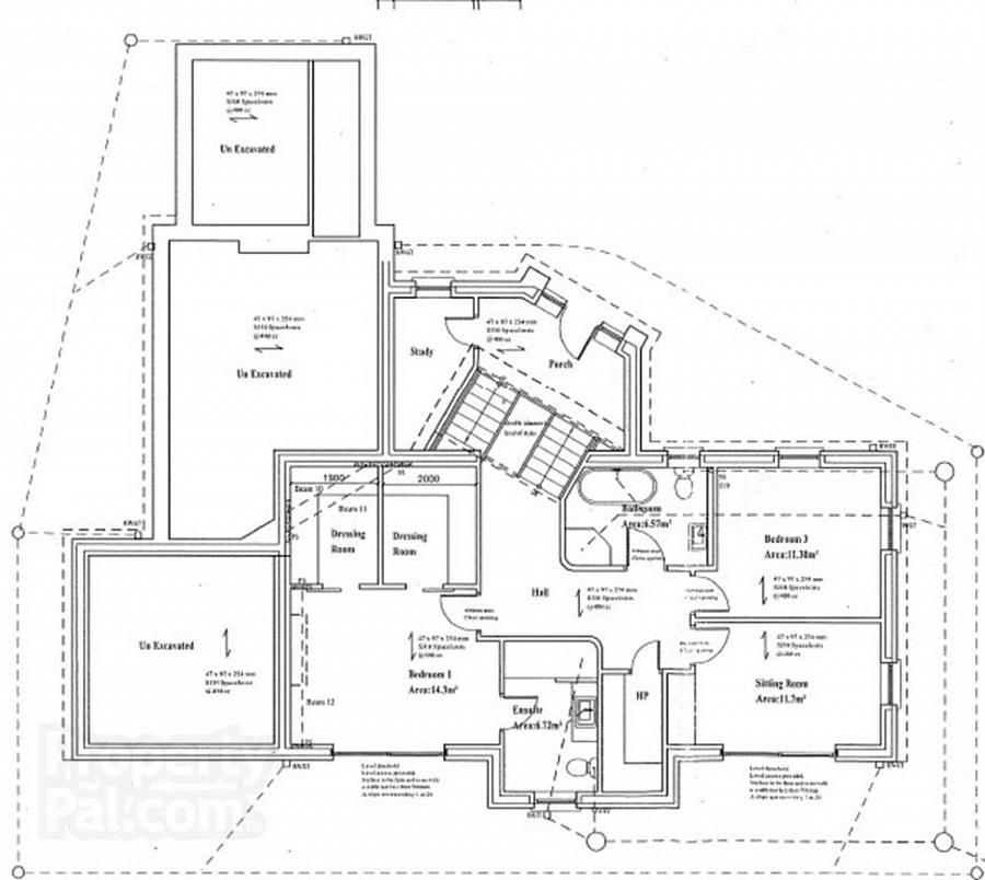
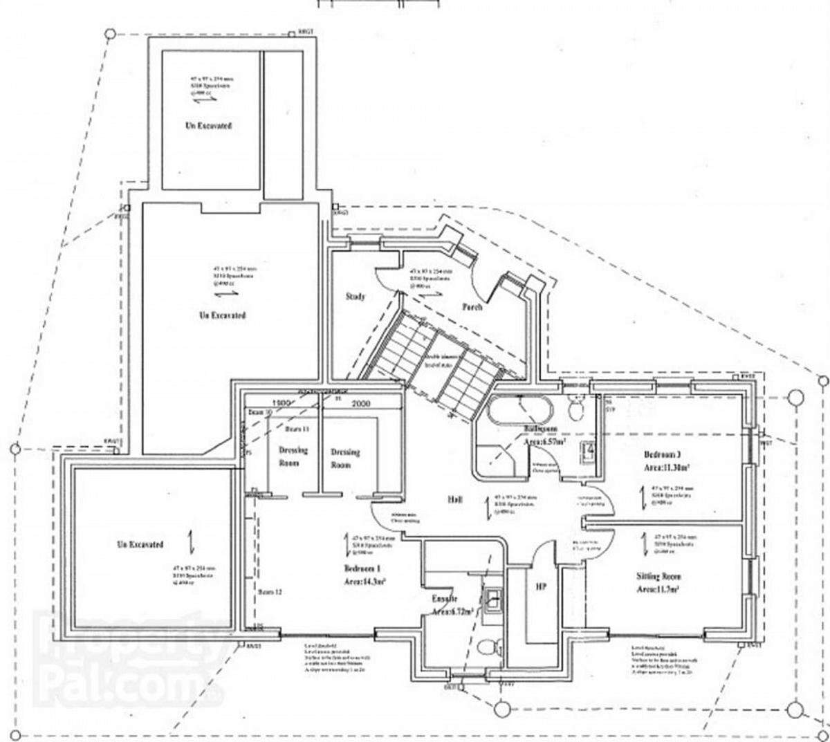
ACCOMMODATION COMPRISES
The internal Layout affords excellent open plan living and entertainment space as well as 4 individual bedrooms, the key room affords wonderful views.
Ground Floor:-
Entrance Porch, Study, Open Kitchen, Dining and Family Room, Sun Room, Living Room, Boot Room, Toilet, Bedroom, Snug.
Lower Ground Floor:
Landing, Principal Bedroom with Extensive Dressing Room \& Bathroom Ensuite, 2 Bedrooms, Bathroom
Notice
Please note we have not tested any apparatus, fixtures, fittings, or services. Interested parties must undertake their own investigation into the working order of these items. All measurements are approximate and photographs provided for guidance only.
Utilities
Electric: Unknown
Gas: Unknown
Water: Unknown
Sewerage: Unknown
Broadband: Unknown
Telephone: Unknown
Other Items
Heating: Not Specified
Garden/Outside Space: No
Parking: No
Garage: No
·
FPP For A Significant Residence (LA10/2022/0551/F)
·
Set On 3 Acres Including Natural Woodland
·
Designed To Reflect Its Country Location With Beautiful Views
·
Views Towards Cuilcagh Mountain
·
Located A Short Distance From The A509 Derrylin Road
·
A Convenient Drive To Florencecourt & Bellanaleck
·
8 Miles To Enniskillen
·
A Perfect Opportunity Within Such A Perfect Country Location
Positioned a short distance from the main A509 Derrylin Road, a convenient drive to Florencecourt and the main Swalinbar Road, close to Bellanaleck village, 8 miles from Enniskillen, this unique building site has the perfect balance of wonderful countryside and the convenience of a central location.
Set on some 3 acres that includes natural woodland, the site offers full planning approval for an Architecturally designed residence, designed to reflect its unique surroundings, taking advantage of its views towards the Cuilcagh Mountain Range.
ACCOMMODATION COMPRISES
The internal Layout affords excellent open plan living and entertainment space as well as 4 individual bedrooms, the key room affords wonderful views.
Ground Floor:-
Entrance Porch, Study, Open Kitchen, Dining and Family Room, Sun Room, Living Room, Boot Room, Toilet, Bedroom, Snug.
Lower Ground Floor:
Landing, Principal Bedroom with Extensive Dressing Room \& Bathroom Ensuite, 2 Bedrooms, Bathroom
Notice
Please note we have not tested any apparatus, fixtures, fittings, or services. Interested parties must undertake their own investigation into the working order of these items. All measurements are approximate and photographs provided for guidance only.
Utilities
Electric: Unknown
Gas: Unknown
Water: Unknown
Sewerage: Unknown
Broadband: Unknown
Telephone: Unknown
Other Items
Heating: Not Specified
Garden/Outside Space: No
Parking: No
Garage: No
Property Location
Mortgage Calculator
Contact Agent
Contact Smyth Leslie & Co
Request More Information
Requesting Info about...
Druminiskill Road, Enniskillen, BT92 3AT
By registering your interest, you acknowledge our Privacy Policy
By registering your interest, you acknowledge our Privacy Policy