Pub
16 Forthill Street
Enniskillen, BT74 6AJ
Price on Application
- Status For Sale
- Property Type Pub
- Receptions 2
- Bathrooms 6
- Heating Not Specified
Description
A prominent and well known licensed premises in a prime, established position within Enniskillen town centre. Formerly Willie Ramblers and now The Oak, the property comprises a substantial two storey building of approx. 7,400 sq.ft., with strong street presence, excellent visibility and steady footfall from both locals and visitors.
The ground floor is home to a well established, traditional bar with multiple seating areas, including an elevated seating section, along with a range of toilets to suit customer needs. The layout flows well and is practical for day to night trade, with a centrally positioned bar and a fully fitted kitchen.
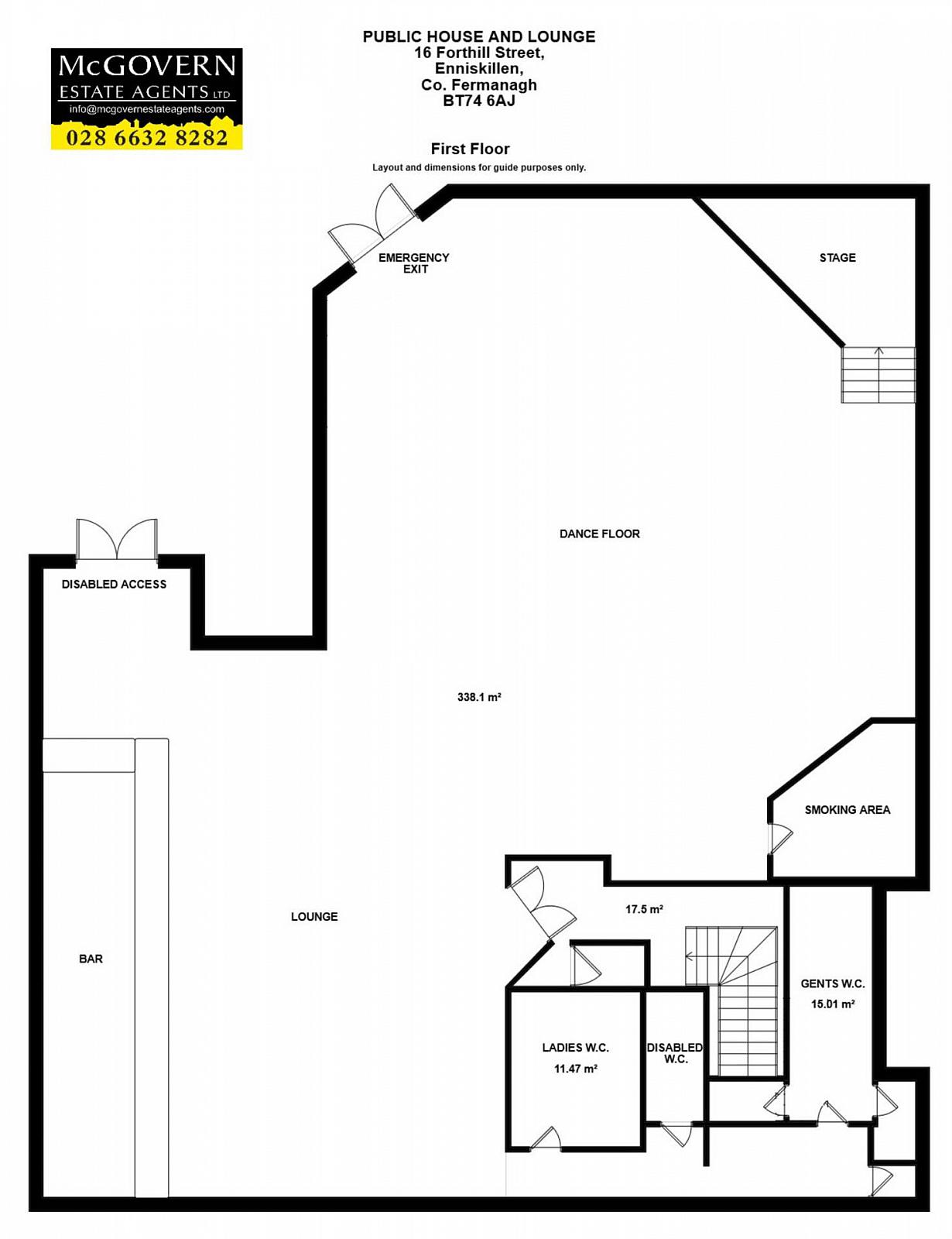
The first floor is a large, open plan club/function space offering significant additional trading potential. It is ideal for evening entertainment, private hire, live events or late night use, providing clear separation from the main bar and enhancing the overall commercial appeal.
Externally, the property benefits from an attractive frontage in a busy commercial and hospitality area. To the rear are emergency exits and disabled access to the first floor. The building is fully fire compliant and disability compliant.
This sale presents a rare opportunity to acquire a substantial, established licensed premises in one of County Fermanagh's most popular towns, with strong potential for continued operation or further development (subject to consents).
Viewing strictly by appointment only.
Contact:
028 6632 8282
info@mcgovernestateagents.com
Notice
Please note we have not tested any apparatus, fixtures, fittings, or services. Interested parties must undertake their own investigation into the working order of these items. All measurements are approximate and photographs provided for guidance only.
Rates Payable
Fermanagh and Omagh District Council, For Period April 2025 To March 2026 £4,513.67
Utilities
Electric: Mains Supply
Gas: None
Water: Mains Supply
Sewerage: Mains Supply
Broadband: FTTP
Telephone: Landline
Other Items
Heating: Not Specified
Garden/Outside Space: No
Parking: No
Garage: No
The ground floor is home to a well established, traditional bar with multiple seating areas, including an elevated seating section, along with a range of toilets to suit customer needs. The layout flows well and is practical for day to night trade, with a centrally positioned bar and a fully fitted kitchen.
The first floor is a large, open plan club/function space offering significant additional trading potential. It is ideal for evening entertainment, private hire, live events or late night use, providing clear separation from the main bar and enhancing the overall commercial appeal.
Externally, the property benefits from an attractive frontage in a busy commercial and hospitality area. To the rear are emergency exits and disabled access to the first floor. The building is fully fire compliant and disability compliant.
This sale presents a rare opportunity to acquire a substantial, established licensed premises in one of County Fermanagh's most popular towns, with strong potential for continued operation or further development (subject to consents).
Viewing strictly by appointment only.
Contact:
028 6632 8282
info@mcgovernestateagents.com
Notice
Please note we have not tested any apparatus, fixtures, fittings, or services. Interested parties must undertake their own investigation into the working order of these items. All measurements are approximate and photographs provided for guidance only.
Rates Payable
Fermanagh and Omagh District Council, For Period April 2025 To March 2026 £4,513.67
Utilities
Electric: Mains Supply
Gas: None
Water: Mains Supply
Sewerage: Mains Supply
Broadband: FTTP
Telephone: Landline
Other Items
Heating: Not Specified
Garden/Outside Space: No
Parking: No
Garage: No
Broadband Speed Availability
Potential Speeds for 16 Forthill Street
Max Download
1800
Mbps
Max Upload
300
MbpsThe speeds indicated represent the maximum estimated fixed-line speeds as predicted by Ofcom. Please note that these are estimates, and actual service availability and speeds may differ.
Property Location
Contact Agent
Contact McGovern Estate Agents
Request More Information
Requesting Info about...
16 Forthill Street, Enniskillen, BT74 6AJ
By registering your interest, you acknowledge our Privacy Policy
By registering your interest, you acknowledge our Privacy Policy