Contact Agent
Contact Watters Property Sales
4 Bed End Terrace
55 Drumcor Hill
Enniskillen, BT74 6BH
offers over
£175,000
Key Features & Description
Four bed home circa 1600 sq ft set in popular residential area in Enniskillen
Fully renovated 9 years ago - rewired & replumbed
Comfortable living room featuring an open fire with a backboiler
Ground floor bedroom & wetroom style bathroom
Open plan kitchen & dining area leading to the back garden - separate utility room
A further three bedrooms upstairs (the third offering flexible use as home office/study)
Fully paved patio area, enclosed with a private high fence
Rates circa £1100 per year / House Built Circa 1955
Walking distance to Schools, South West College, Cinema, Shops, Bars, Restaurants
Description
Four-Bedroom End Terrace Home in a Prime Location
Situated in a popular residential area within walking distance of Enniskillen Town Centre, this well-maintained, move in ready four-bedroom home offers excellent convenience to schools, shops, cafes, bars, restaurants, public transport links, and many local amenities.
Generous Living Space Well-proportioned rooms throughout
Comfortable Living Room Featuring an open fire with a back boiler
Modern Open-Plan Kitchen/Dining Fully equipped with integrated appliances and a granite worktop
Four Bedrooms Includes a ground-floor bedroom with a wet room and a flexible-use bedroom upstairs (ideal as a home office/study)
Family Bathroom A modern finish and generously sized space located on the first floor
Separate Utility Room Conveniently located off the kitchen
Outdoor Space:
Front Garden Low maintenance and welcoming
Back Garden Area Fully paved, enclosed with a private high fence, and includes a shed for additional storage
A fantastic home offering comfortable living in a superb location perfect for families, first-time buyers, or investors!
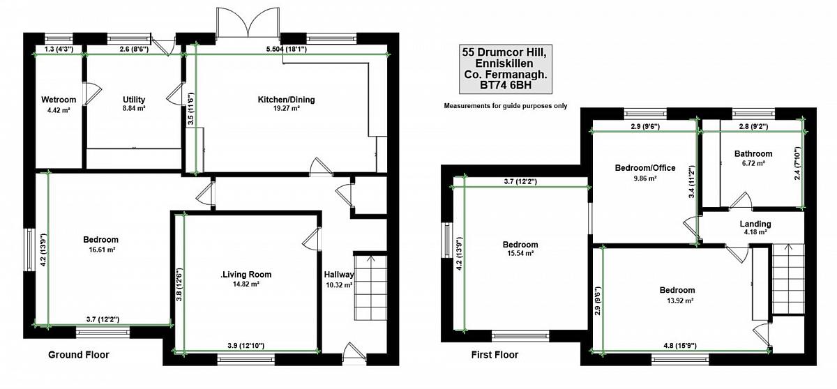
Dimensions:-
Living room - 12'10" x 12'6"
Kitchen/dining room - 18'1" x 11'6"
Utility - 11'6" x 8'6"
Wetroorm - 11'6" x 8'6"
Bedroom one - 13'9" x 12'2"
Bedroom two - 15'9" x 9'6"
Bedroom three - 13'9" x 12'2"
Bedroom four/office - 11'2" x 9'6"
Family bathroom - 7'10" x 9'2"
Get in touch for more information and to arrange your viewing!
Tel: 028 66 022200
Email: info@watterspropertysales.co.uk
For the exact location copy the below three words into www.what3words.com
what3words /// inefficient.unfolds.beams
Notice
Please note we have not tested any apparatus, fixtures, fittings, or services. Interested parties must undertake their own investigation into the working order of these items. All measurements are approximate and photographs provided for guidance only.
Utilities
Electric: Unknown
Gas: Unknown
Water: Unknown
Sewerage: Unknown
Broadband: Unknown
Telephone: Unknown
Other Items
Heating: Oil Central Heating
Garden/Outside Space: No
Parking: No
Garage: No
Four-Bedroom End Terrace Home in a Prime Location
Situated in a popular residential area within walking distance of Enniskillen Town Centre, this well-maintained, move in ready four-bedroom home offers excellent convenience to schools, shops, cafes, bars, restaurants, public transport links, and many local amenities.
Generous Living Space Well-proportioned rooms throughout
Comfortable Living Room Featuring an open fire with a back boiler
Modern Open-Plan Kitchen/Dining Fully equipped with integrated appliances and a granite worktop
Four Bedrooms Includes a ground-floor bedroom with a wet room and a flexible-use bedroom upstairs (ideal as a home office/study)
Family Bathroom A modern finish and generously sized space located on the first floor
Separate Utility Room Conveniently located off the kitchen
Outdoor Space:
Front Garden Low maintenance and welcoming
Back Garden Area Fully paved, enclosed with a private high fence, and includes a shed for additional storage
A fantastic home offering comfortable living in a superb location perfect for families, first-time buyers, or investors!
Dimensions:-
Living room - 12'10" x 12'6"
Kitchen/dining room - 18'1" x 11'6"
Utility - 11'6" x 8'6"
Wetroorm - 11'6" x 8'6"
Bedroom one - 13'9" x 12'2"
Bedroom two - 15'9" x 9'6"
Bedroom three - 13'9" x 12'2"
Bedroom four/office - 11'2" x 9'6"
Family bathroom - 7'10" x 9'2"
Get in touch for more information and to arrange your viewing!
Tel: 028 66 022200
Email: info@watterspropertysales.co.uk
For the exact location copy the below three words into www.what3words.com
what3words /// inefficient.unfolds.beams
Notice
Please note we have not tested any apparatus, fixtures, fittings, or services. Interested parties must undertake their own investigation into the working order of these items. All measurements are approximate and photographs provided for guidance only.
Utilities
Electric: Unknown
Gas: Unknown
Water: Unknown
Sewerage: Unknown
Broadband: Unknown
Telephone: Unknown
Other Items
Heating: Oil Central Heating
Garden/Outside Space: No
Parking: No
Garage: No
Broadband Speed Availability
Potential Speeds for 55 Drumcor Hill
Max Download
2000
Mbps
Max Upload
2000
MbpsThe speeds indicated represent the maximum estimated fixed-line speeds as predicted by Ofcom. Please note that these are estimates, and actual service availability and speeds may differ.
Property Location
Mortgage Calculator
Contact Agent
Contact Watters Property Sales
Request More Information
Requesting Info about...
55 Drumcor Hill, Enniskillen, BT74 6BH
By registering your interest, you acknowledge our Privacy Policy
By registering your interest, you acknowledge our Privacy Policy