Contact Agent
Contact Watters Property Sales
3 Bed Detached House
49 Tanyard Lane
Brookeborough, Enniskillen, BT94 4DF
guide price
£239,000
Key Features & Description
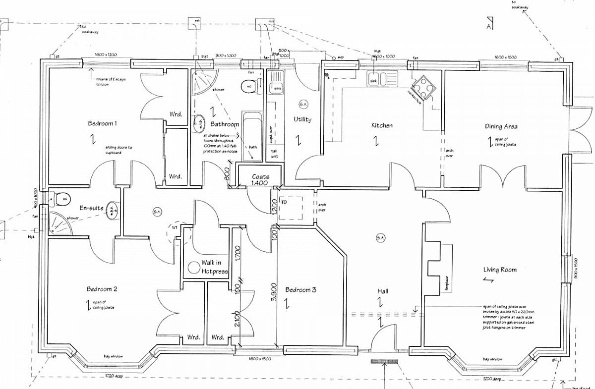
Three bed bungalow set on circa 0.7 acres surrounded by countryside
Convenient to Brookeborough Village - with shops, Schools, Public transport links & other amenities
Family living room features a cosy open fire & a bay window
Three well proportioned bedrooms (two have built in wardrobes plus access to a Jack & Jill ensuite)
Second reception room currently being used a dining/snug area - featuring patio doors
Fully equipped kitchen - central island with informal seating
Attic is left to convert (subject to planning)
Generous outdoor space - stunning views of the surrounding countryside
House built circa 2004 / rates £1300
Description
Charming 3-Bedroom Bungalow in a Tranquil Rural Setting
This three bed bungalow circa 1580 sq. ft is the ideal combination of countryside charm and modern comfort , set on a private 0.7-acre site, surrounded by rolling hills in a peaceful rural setting, yet just minutes from Brookeborough Village, this home provides the perfect balance of tranquillity and convenience.
-Spacious Living Areas Bright and welcoming hallway leading to a cosy family living room with an open fire and a charming bay window with double glass doors leading into the dining room
-Modern Kitchen Ample cupboard space, a central island for casual dining, and eye-level oven & microwave, with the dining room next door
Flexible Second Reception Room Currently used as a dining/seating area, featuring patio doors that open to the outside ideal for warm summer days or as a study/snug
-Three Well-Proportioned Bedrooms Two of the bedrooms include double built-in wardrobes & access to a Jack and Jill shower room
-Generous Family Bathroom Designed with wet-room style shower and separate bath
-Utility room - offering extra cupboard space and plumbed for added convenience
- Expansive Outdoor Space Set on approximately 0.7 acres, with plenty of parking, potential for a beautiful garden, and the perfect spot to relax and take in the breathtaking countryside views.
Convenient Location Enjoy the serenity of rural living while being just 0.5 miles from Brookeborough, providing access to shops, schools, and local amenities, with close links to surrounding towns via the Main A4 Belfast Road.
This home is perfect for families, those looking to downsize, or anyone seeking a peaceful retreat with modern comforts.
Dimensions;-
Entrance hall - 17'3" x 8'2" + 32'6" x 3'9"
Living room - 17'2" x 15'1"
Dining room - 12'7" x 12'8"
Kitchen - 12'8" x 12'7"
Bedroom one - 14'8" x 12'8"
Bedroom two - 15'2" x 11'6" (buil in wardrobe - Jack & Jill ensuite 7'8" x 5'1")
Bedroom three - 15'8" x 12'7" (built in wardrobe - shared bathroom with bed two)
Bathroom - 13'1" x 8'1"
Hotpress - 7'8" x 5'1"
Total - circa 1580 sq ft
Get in touch for more information and to arrange your viewing!
Tel: 028 66 022200
Email: info@watterspropertysales.co.uk
For the exact location copy the below three words into www.what3words.com
what3words /// raft.fires.corrode
Notice
Please note we have not tested any apparatus, fixtures, fittings, or services. Interested parties must undertake their own investigation into the working order of these items. All measurements are approximate and photographs provided for guidance only.
Utilities
Electric: Unknown
Gas: Unknown
Water: Unknown
Sewerage: Unknown
Broadband: Unknown
Telephone: Unknown
Other Items
Heating: Oil Central Heating
Garden/Outside Space: Yes
Parking: Yes
Garage: No
Charming 3-Bedroom Bungalow in a Tranquil Rural Setting
This three bed bungalow circa 1580 sq. ft is the ideal combination of countryside charm and modern comfort , set on a private 0.7-acre site, surrounded by rolling hills in a peaceful rural setting, yet just minutes from Brookeborough Village, this home provides the perfect balance of tranquillity and convenience.
-Spacious Living Areas Bright and welcoming hallway leading to a cosy family living room with an open fire and a charming bay window with double glass doors leading into the dining room
-Modern Kitchen Ample cupboard space, a central island for casual dining, and eye-level oven & microwave, with the dining room next door
Flexible Second Reception Room Currently used as a dining/seating area, featuring patio doors that open to the outside ideal for warm summer days or as a study/snug
-Three Well-Proportioned Bedrooms Two of the bedrooms include double built-in wardrobes & access to a Jack and Jill shower room
-Generous Family Bathroom Designed with wet-room style shower and separate bath
-Utility room - offering extra cupboard space and plumbed for added convenience
- Expansive Outdoor Space Set on approximately 0.7 acres, with plenty of parking, potential for a beautiful garden, and the perfect spot to relax and take in the breathtaking countryside views.
Convenient Location Enjoy the serenity of rural living while being just 0.5 miles from Brookeborough, providing access to shops, schools, and local amenities, with close links to surrounding towns via the Main A4 Belfast Road.
This home is perfect for families, those looking to downsize, or anyone seeking a peaceful retreat with modern comforts.
Dimensions;-
Entrance hall - 17'3" x 8'2" + 32'6" x 3'9"
Living room - 17'2" x 15'1"
Dining room - 12'7" x 12'8"
Kitchen - 12'8" x 12'7"
Bedroom one - 14'8" x 12'8"
Bedroom two - 15'2" x 11'6" (buil in wardrobe - Jack & Jill ensuite 7'8" x 5'1")
Bedroom three - 15'8" x 12'7" (built in wardrobe - shared bathroom with bed two)
Bathroom - 13'1" x 8'1"
Hotpress - 7'8" x 5'1"
Total - circa 1580 sq ft
Get in touch for more information and to arrange your viewing!
Tel: 028 66 022200
Email: info@watterspropertysales.co.uk
For the exact location copy the below three words into www.what3words.com
what3words /// raft.fires.corrode
Notice
Please note we have not tested any apparatus, fixtures, fittings, or services. Interested parties must undertake their own investigation into the working order of these items. All measurements are approximate and photographs provided for guidance only.
Utilities
Electric: Unknown
Gas: Unknown
Water: Unknown
Sewerage: Unknown
Broadband: Unknown
Telephone: Unknown
Other Items
Heating: Oil Central Heating
Garden/Outside Space: Yes
Parking: Yes
Garage: No
Broadband Speed Availability
Potential Speeds for 49 Tanyard Lane
Max Download
1800
Mbps
Max Upload
220
MbpsThe speeds indicated represent the maximum estimated fixed-line speeds as predicted by Ofcom. Please note that these are estimates, and actual service availability and speeds may differ.
Property Location
Mortgage Calculator
Contact Agent
Contact Watters Property Sales
Request More Information
Requesting Info about...
49 Tanyard Lane, Brookeborough, Enniskillen, BT94 4DF
By registering your interest, you acknowledge our Privacy Policy
By registering your interest, you acknowledge our Privacy Policy