Contact Agent
Contact Watters Property Sales
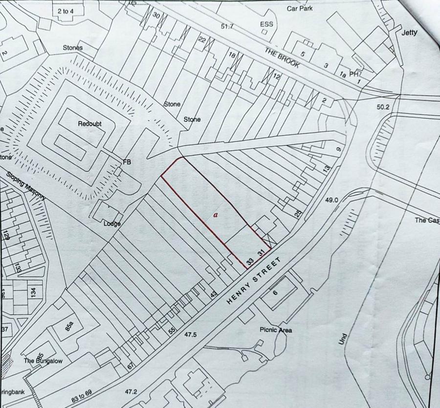
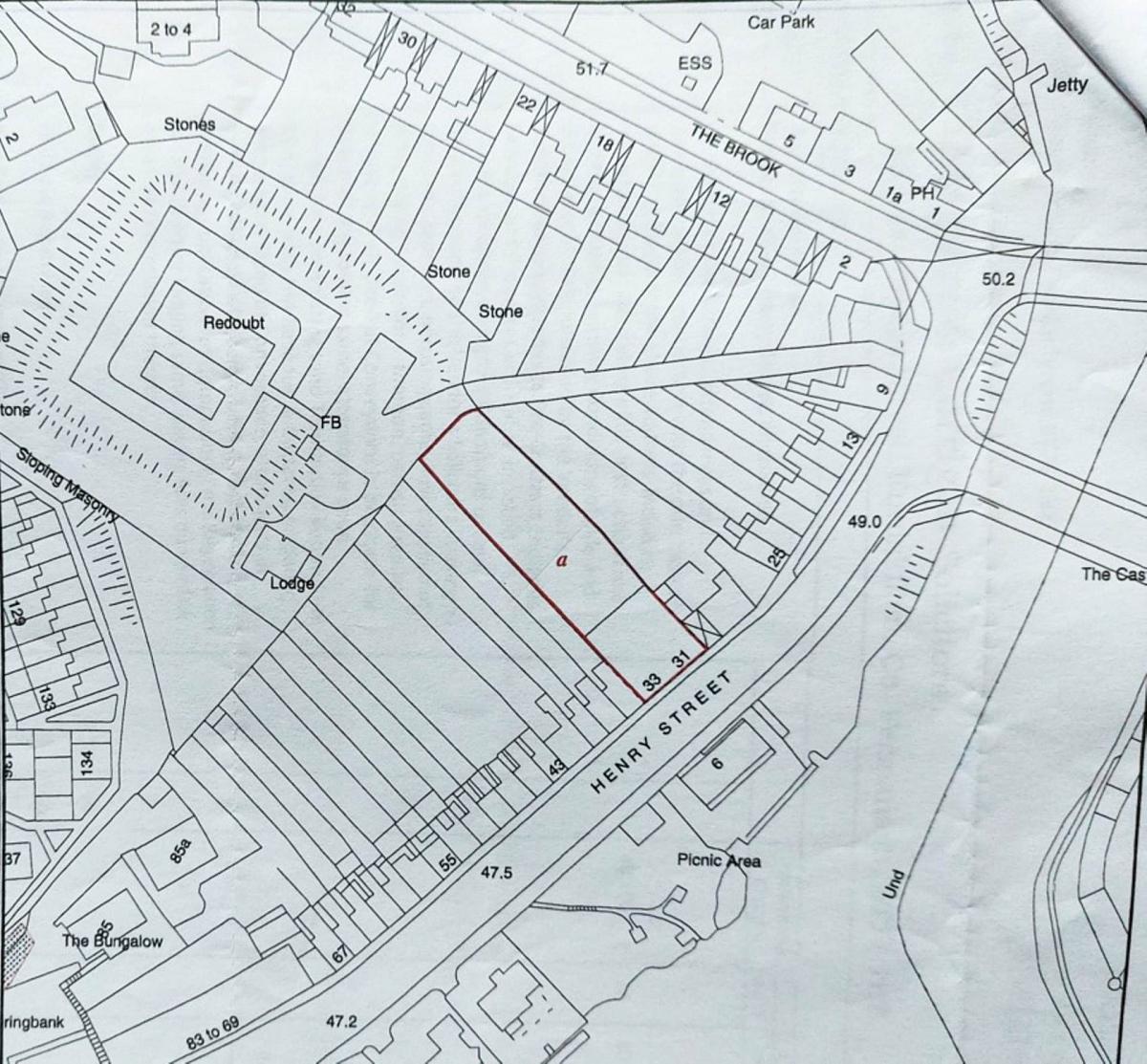
Land
31-33 Henry Street
Enniskillen, BT74 7JT
guide price
£180,000
- Status Sale Agreed
- Property Type Land
- Receptions 1
- Bathrooms 1
- Heating Not Specified
-
Stamp Duty
Higher amount applies when purchasing as buy to let or as an additional property£1,100 / £10,100*
Key Features & Description
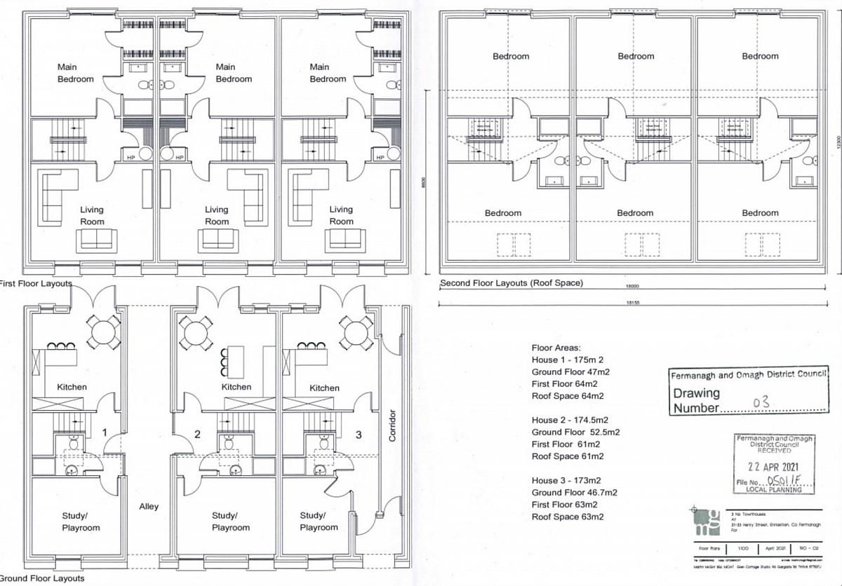
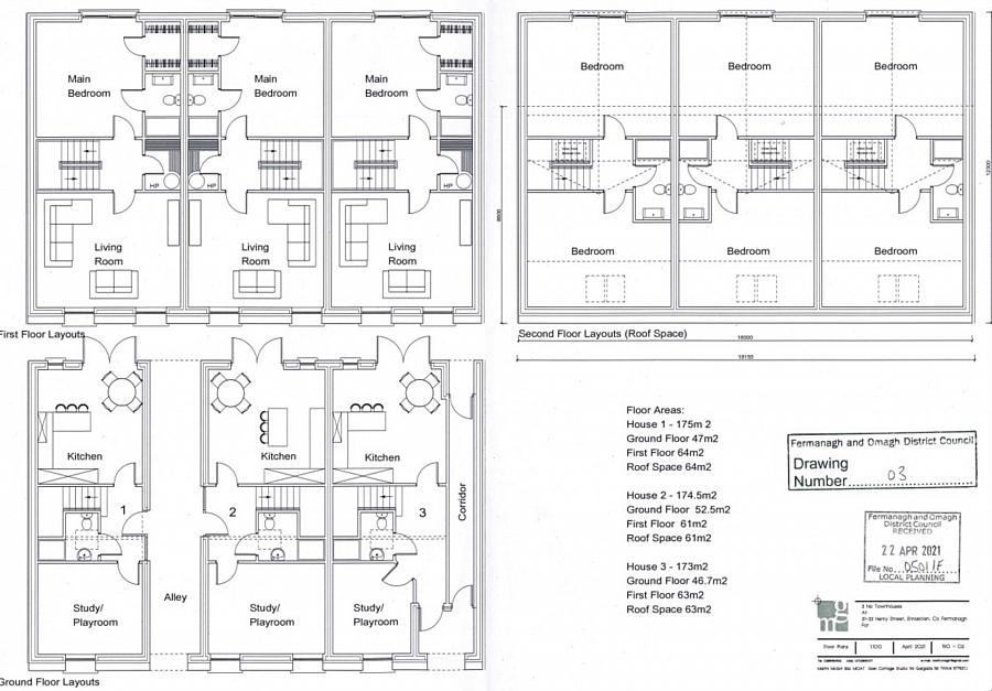
Development opportunity in the heart of Enniskillen
Full planning passed for three two 1/2 storey townhouses
Prime location with views over Lough Erne & Enniskillen Castle
Planning ref - LA10/2021/0501/F
Easy access to the Main Sligo Road & to the A46 connecting to Donegal
Walking distance to shops, restaurants, cafes & boutiques in Town
Public transport links nearby
Walking distance to Schools
Ideal for Airbnb or long term rental properties
Circa 3400 sq ft
Description
For sale by Watters Property Sales via the iamsold Bidding Platform
Please note this property will be offered by online auction (unless sold prior). For auction date and time please visit iamsoldni.com. Vendors may decide to accept pre-auction bids so please register your interest with us to avoid disappointment.
A prime development opportunity in the heart of Enniskillen, with full planning permission for three 2 ½ storey townhouses. Situated in a desirable location with stunning views of Lough Erne and Enniskillen Castle, this site offers immense potential!
Full planning permission has been granted for the development of three townhouses in a sought-after residential area, just a short walk from schools, shops, and all town centre amenities. Once completed, these properties would be ideal for Airbnb or long-term rentals, offering an excellent investment opportunity!
The property also offers easy access to the Main Sligo Road and the A46, forming part of the key Dublin to Ballyshannon route.
Planning ref LA10/2021/0501/F
**Please note images with the red line are for guidance purposes only**
Auctioneers Comments:
This property is for sale under Traditional Auction terms. Should you view, offer or bid on the property, your information will be shared with the Auctioneer, iamsold.
With this auction method, an immediate exchange of contracts takes place with completion of the purchase required to take place within 28 days from the date of exchange of contracts.
The buyer is also required to make a payment of a non-refundable, part payment 10% Contract Deposit to a minimum of £6,000.00.
In addition to their Contract Deposit, the Buyer must pay an Administration Fee to the Auctioneer of 1.80% of the final agreed sale price including VAT, subject to a minimum of £2,400.00 including VAT for conducting the auction.
Buyers will be required to go through an identification verification process with iamsold and provide proof of how the purchase would be funded.
Terms and conditions apply to the traditional auction method and you are required to check the Buyer Information Pack for any special terms and conditions associated with this lot.
The property is subject to an undisclosed Reserve Price with both the Reserve Price and Starting Bid being subject to change.
To book your site meeting or for further information please contact the office.
Tel: 028 6602 2200
Email: info@watterspropertysales.co.uk
For the exact location copy the three words below to www.what3words.com
what3words /// slower.oppose.commutes
Notice
Please note we have not tested any apparatus, fixtures, fittings, or services. Interested parties must undertake their own investigation into the working order of these items. All measurements are approximate and photographs provided for guidance only.
Utilities
Electric: Unknown
Gas: Unknown
Water: Unknown
Sewerage: Unknown
Broadband: Unknown
Telephone: Unknown
Other Items
Heating: Not Specified
Garden/Outside Space: No
Parking: No
Garage: No
For sale by Watters Property Sales via the iamsold Bidding Platform
Please note this property will be offered by online auction (unless sold prior). For auction date and time please visit iamsoldni.com. Vendors may decide to accept pre-auction bids so please register your interest with us to avoid disappointment.
A prime development opportunity in the heart of Enniskillen, with full planning permission for three 2 ½ storey townhouses. Situated in a desirable location with stunning views of Lough Erne and Enniskillen Castle, this site offers immense potential!
Full planning permission has been granted for the development of three townhouses in a sought-after residential area, just a short walk from schools, shops, and all town centre amenities. Once completed, these properties would be ideal for Airbnb or long-term rentals, offering an excellent investment opportunity!
The property also offers easy access to the Main Sligo Road and the A46, forming part of the key Dublin to Ballyshannon route.
Planning ref LA10/2021/0501/F
**Please note images with the red line are for guidance purposes only**
Auctioneers Comments:
This property is for sale under Traditional Auction terms. Should you view, offer or bid on the property, your information will be shared with the Auctioneer, iamsold.
With this auction method, an immediate exchange of contracts takes place with completion of the purchase required to take place within 28 days from the date of exchange of contracts.
The buyer is also required to make a payment of a non-refundable, part payment 10% Contract Deposit to a minimum of £6,000.00.
In addition to their Contract Deposit, the Buyer must pay an Administration Fee to the Auctioneer of 1.80% of the final agreed sale price including VAT, subject to a minimum of £2,400.00 including VAT for conducting the auction.
Buyers will be required to go through an identification verification process with iamsold and provide proof of how the purchase would be funded.
Terms and conditions apply to the traditional auction method and you are required to check the Buyer Information Pack for any special terms and conditions associated with this lot.
The property is subject to an undisclosed Reserve Price with both the Reserve Price and Starting Bid being subject to change.
To book your site meeting or for further information please contact the office.
Tel: 028 6602 2200
Email: info@watterspropertysales.co.uk
For the exact location copy the three words below to www.what3words.com
what3words /// slower.oppose.commutes
Notice
Please note we have not tested any apparatus, fixtures, fittings, or services. Interested parties must undertake their own investigation into the working order of these items. All measurements are approximate and photographs provided for guidance only.
Utilities
Electric: Unknown
Gas: Unknown
Water: Unknown
Sewerage: Unknown
Broadband: Unknown
Telephone: Unknown
Other Items
Heating: Not Specified
Garden/Outside Space: No
Parking: No
Garage: No
Property Location
Mortgage Calculator
Contact Agent
Contact Watters Property Sales
Request More Information
Requesting Info about...
31-33 Henry Street, Enniskillen, BT74 7JT
By registering your interest, you acknowledge our Privacy Policy
By registering your interest, you acknowledge our Privacy Policy