Land
Building Site With Fpp Lebally Road
Maguiresbridge, Enniskillen, BT94 4LX
from
£79,000
- Status For Sale
- Property Type Land
- Receptions 1
- Bathrooms 1
- Heating Not Specified
-
Stamp Duty
Higher amount applies when purchasing as buy to let or as an additional property£0 / £3,950*
Key Features & Description
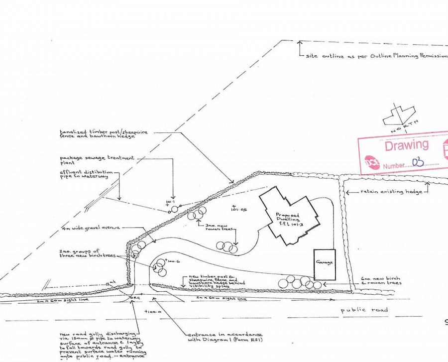
Circa 1.3 acre building site for sale
Plans passed for a detached, circa 4000 sq ft home with a double garage
Foundations are in for the garage allowing immediate development
Services beside site
Countryside location with panoramic views
Close to Village amenities in Maguiresbridge - Schools & shops
Easy access to the Main A4 Belfast Road - linking surrounding Towns
Description
An exceptional opportunity to acquire a prime building site spanning to circa 1.3 acres, perfectly positioned to take advantage of breathtaking panoramic views of the surrounding countryside, yet convenient to Maguriresbridge Village.
Approved plans are for a spacious four-bedroom home, extending to circa 4000 sq ft also including a detached double garage/workshop,
This site comes with water, electric and phone lines beside the site and the garage foundations already in place, providing a head start for your dream home saving time, money and effort in the building process.
Design Permissions:
Dwelling Height: Permission has been granted for the height of the dwelling to be one meter above a storey and a half, providing considerable head-height to the upper floor. This design offers the benefits of a two-storey building without fully committing to the second storey, allowing for flexible and spacious interior design options.
This building site represents a unique opportunity to create a bespoke family home in a desirable location. The existing plans and foundations, combined with the stunning views and essential utilities already in place, make this an ideal site for immediate development.
Planning ref - L/2011/0064/F
Get in touch now for further information.
Tel: 028 66 022200
Email: info@watterspropertysales.co.uk
For the exact location, copy the link below.
what3words /// astounded.harmless.difficult
Notice
Please note we have not tested any apparatus, fixtures, fittings, or services. Interested parties must undertake their own investigation into the working order of these items. All measurements are approximate and photographs provided for guidance only.
Utilities
Electric: Mains Supply
Gas: None
Water: Mains Supply
Sewerage: None
Broadband: None
Telephone: None
Other Items
Heating: Not Specified
Garden/Outside Space: No
Parking: No
Garage: No
An exceptional opportunity to acquire a prime building site spanning to circa 1.3 acres, perfectly positioned to take advantage of breathtaking panoramic views of the surrounding countryside, yet convenient to Maguriresbridge Village.
Approved plans are for a spacious four-bedroom home, extending to circa 4000 sq ft also including a detached double garage/workshop,
This site comes with water, electric and phone lines beside the site and the garage foundations already in place, providing a head start for your dream home saving time, money and effort in the building process.
Design Permissions:
Dwelling Height: Permission has been granted for the height of the dwelling to be one meter above a storey and a half, providing considerable head-height to the upper floor. This design offers the benefits of a two-storey building without fully committing to the second storey, allowing for flexible and spacious interior design options.
This building site represents a unique opportunity to create a bespoke family home in a desirable location. The existing plans and foundations, combined with the stunning views and essential utilities already in place, make this an ideal site for immediate development.
Planning ref - L/2011/0064/F
Get in touch now for further information.
Tel: 028 66 022200
Email: info@watterspropertysales.co.uk
For the exact location, copy the link below.
what3words /// astounded.harmless.difficult
Notice
Please note we have not tested any apparatus, fixtures, fittings, or services. Interested parties must undertake their own investigation into the working order of these items. All measurements are approximate and photographs provided for guidance only.
Utilities
Electric: Mains Supply
Gas: None
Water: Mains Supply
Sewerage: None
Broadband: None
Telephone: None
Other Items
Heating: Not Specified
Garden/Outside Space: No
Parking: No
Garage: No
Property Location
Mortgage Calculator
Contact Agent
Contact Watters Property Sales
Request More Information
Requesting Info about...
Building Site With Fpp Lebally Road, Maguiresbridge, Enniskillen, BT94 4LX
By registering your interest, you acknowledge our Privacy Policy
By registering your interest, you acknowledge our Privacy Policy