Contact Agent

Contact Watters Property Sales

Contact Watters Property Sales

Land

Building Site 185M South Of 85 Littlemount Road

Maguiresbridge, Enniskillen, BT94 4RT

price £49,000
  • Status Sale Agreed
  • Property Type Land
  • Heating Not Specified
  • Stamp Duty
    Higher amount applies when purchasing as buy to let or as an additional property
    £0 / £2,450*
  • Typical Mortgage
    Click price to use our mortgage calculator

Key Features & Description

Peaceful & Relaxed SettingClose proximity to Colebrooke RiverServices all at handCountryside locationFoundations dug outPlanning has no height restrictionsFull planning permission
Description

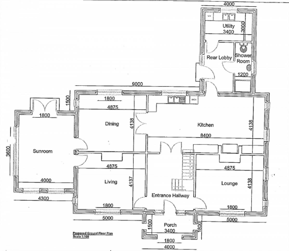
A unique opportunity to purchase a circa 0.6 acre building site in the town land of Littlemount with full planning permission to build a four bedroom home that has been architecturally designed to fit in with countryside surroundings and views onto Colebrook river.


Services


We are advised that electric, phone, water and drainage are available in the vicinity. A buyer is recommended to obtain confirmation from their surveyor or solicitor.


To arrange a viewing on site or for further information get in touch.


Tel: 02866 022200


Email: info@watterspropertysales.co.uk


Copy the link below for the exact location!


https://what3words.com/merely.cherished.salsa



Notice
Please note we have not tested any apparatus, fixtures, fittings, or services. Interested parties must undertake their own investigation into the working order of these items. All measurements are approximate and photographs provided for guidance only.

Utilities
Electric: Unknown
Gas: Unknown
Water: Unknown
Sewerage: Unknown
Broadband: Unknown
Telephone: Unknown

Other Items
Heating: Not Specified
Garden/Outside Space: No
Parking: No
Garage: No

Property Location

Show Map

Mortgage Calculator

Disclaimer: The following calculations act as a guide only, and are based on a typical repayment mortgage model. Financial decisions should not be made based on these calculations and accuracy is not guaranteed. Always seek professional advice before making any financial decisions.

Contact Agent

Contact Watters Property Sales

Contact Watters Property Sales

Request More Information
Requesting Info about...
Building Site 185M South Of 85 Littlemount Road, Maguiresbridge, Enniskillen, BT94 4RT Building Site 185M South Of 85 Littlemount Road, Maguiresbridge, Enniskillen, BT94 4RT

By registering your interest, you acknowledge our Privacy Policy