Contact Agent

Contact Watters Property Sales

Contact Watters Property Sales

3 Bed Semi-Detached House

12 Beechtree Lane

Tempo, Enniskillen, BT94 3HW

price £159,000
  • Status Sale Agreed
  • Property Type Semi-Detached
  • Bedrooms 3
  • Receptions 1
  • Bathrooms 2
  • Heating Not Specified
  • EPC Rating B83 / B84
  • Stamp Duty
    Higher amount applies when purchasing as buy to let or as an additional property
    £680 / £8,630*
  • Typical Mortgage
    Click price to use our mortgage calculator
EPC Rating

Key Features & Description

20kW Firebird condensing boiler150mm Kingspan Airbead pumped cavitiesBright and stylish interiorsTarmacked drivewayWalking distance of VillageAmple storageMaster bedroom with ensuiteCirca 1100 sq feetThree bedroomsNew build property
Description

Nestled in a quiet cul-de-sac on the edge of Tempo in Beechtree Lane is the last of two new build semi detached homes built in this development, with easy access to the local shops, services and schools.


This property is beautifully designed with bright and airy interiors combined with well-proportioned living.


Ground floor comprises of a spacious entrance hall benefiting from under the stairs storage, an open plan kitchen/dining area perfect for entertaining, a cosy living room featuring a wood burning stove (pipe work left for those who wish to connect to back boiler) and a downstairs WC.


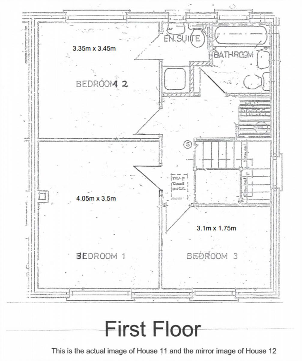
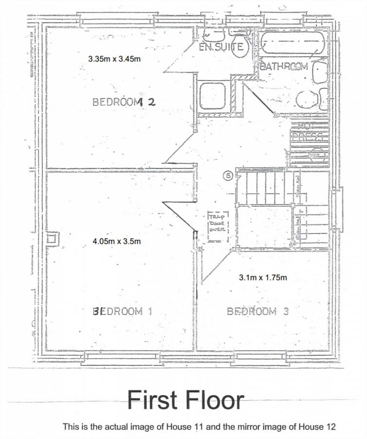
First floor offers the master bedroom with an en-suite fitted with an electric shower. There are a further two bedrooms and main family bathroom with bath and shower facilities. The property further benefits from oil fired central heating, triple glazed windows and is wired for an alarm system.


**Note internal pictures are of site 11 - the semi on the right, site 12 is soon to be completed to same spec**


Outside


The property has a tarmacked driveway with ample space for car parking, to the rear of the property is in lawn with a view of the grounds of Tempo Manor.


Your Next Move Thinking of selling, we can offer you a FREE VALUATION of your land or property.


Mortgage advice is also available from our in-house Mortgage Advisor, you can find out how much you can borrow within minutes instead of waiting weeks to go through your high street bank for a decision.


To arrange an onsite viewing or for further information contact our Enniskillen estate agent’s office.


Tel: 02866 022200


Email:info@watterspropertysales.co.uk


Dimensions


Entrance Hall - 14’5” x 5’1”


Living room – 11’3” x 13’3”


Kitchen/dining – 11’10” x 21’9”


WC – 4’8” x 4’2”


Hallway store – 6’4” x 3’1”


Master bedroom – 11’6” x 11’8” Ensuite – 5’1” x 7’2”


Bedroom two – 11’4” x 13’3”


Bedroom three – 5’8” x 10’10”


Landing – 11’2” x 6’9”


Bathroom – 7’8” x 7’1”




Notice
Please note we have not tested any apparatus, fixtures, fittings, or services. Interested parties must undertake their own investigation into the working order of these items. All measurements are approximate and photographs provided for guidance only.

Utilities
Electric: Unknown
Gas: Unknown
Water: Unknown
Sewerage: Unknown
Broadband: Unknown
Telephone: Unknown

Other Items
Heating: Not Specified
Garden/Outside Space: No
Parking: No
Garage: No

Property Location

Show Map

Mortgage Calculator

Disclaimer: The following calculations act as a guide only, and are based on a typical repayment mortgage model. Financial decisions should not be made based on these calculations and accuracy is not guaranteed. Always seek professional advice before making any financial decisions.

Contact Agent

Contact Watters Property Sales

Contact Watters Property Sales

Request More Information
Requesting Info about...
12 Beechtree Lane, Tempo, Enniskillen, BT94 3HW 12 Beechtree Lane, Tempo, Enniskillen, BT94 3HW

By registering your interest, you acknowledge our Privacy Policy