Contact Agent
Contact Watters Property Sales
Land
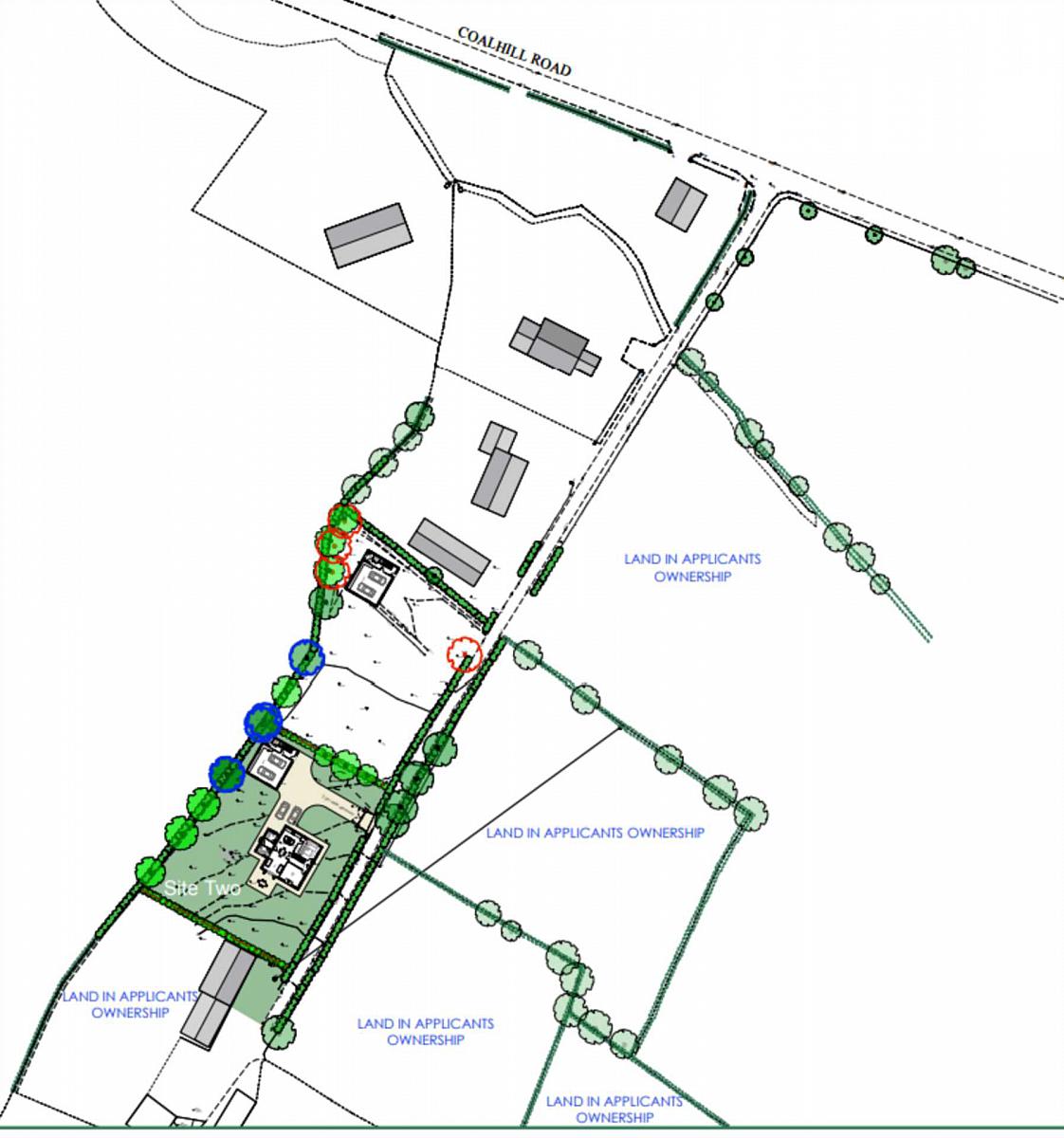
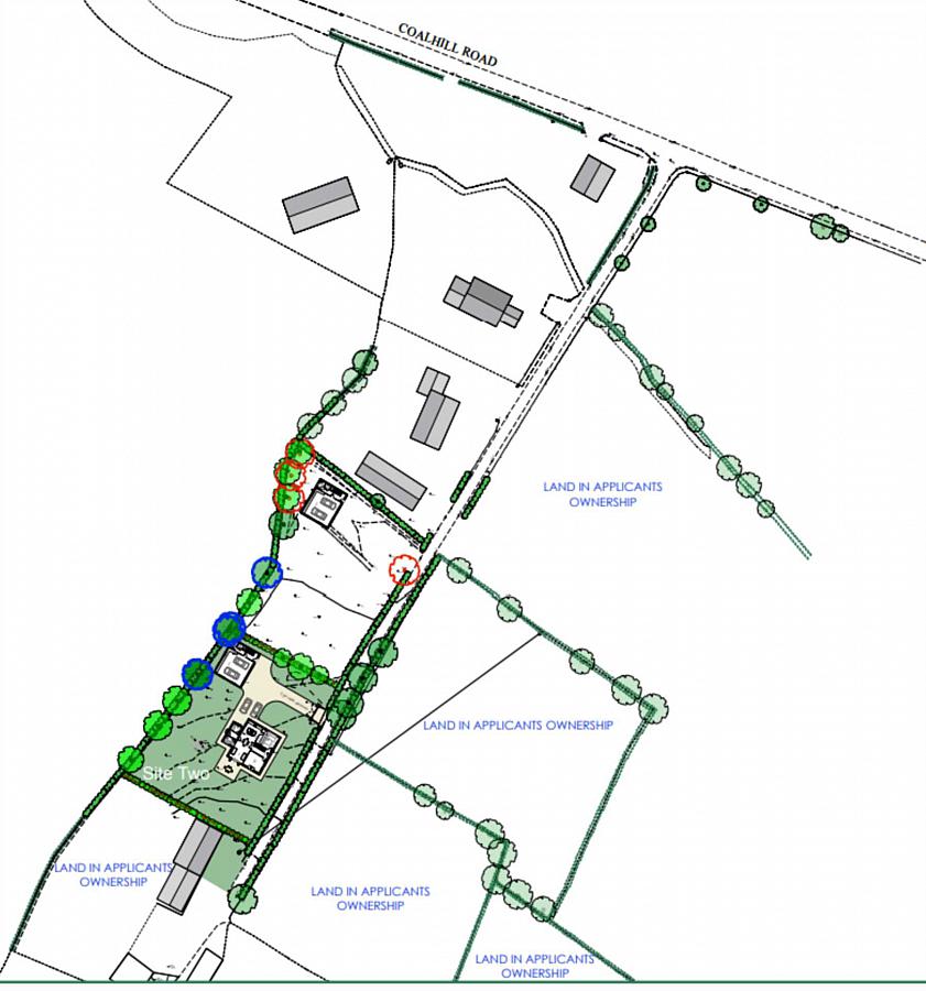
Building Site 2 Off The Coalhill Road Slushill
Lisnaskea, Enniskillen, BT92 0AF
offers over
£25,000
- Status Sale Agreed
- Property Type Land
- Heating Not Specified
Key Features & Description
Circa 0.4 acre eachOccupying a level siteServices close to sitePlanning approval granted
Description
For sale by Watters Property Sales via the iamsold Bidding Platform
Please note this property will be offered by online auction (unless sold prior). For auction date and time please visit iamsoldni.com. Vendors may decide to accept pre-auction bids so please register your interest with us to avoid disappointment.
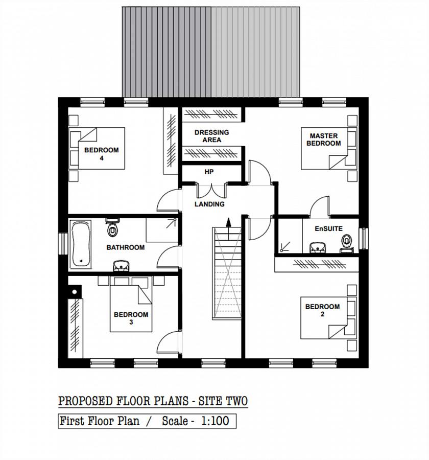
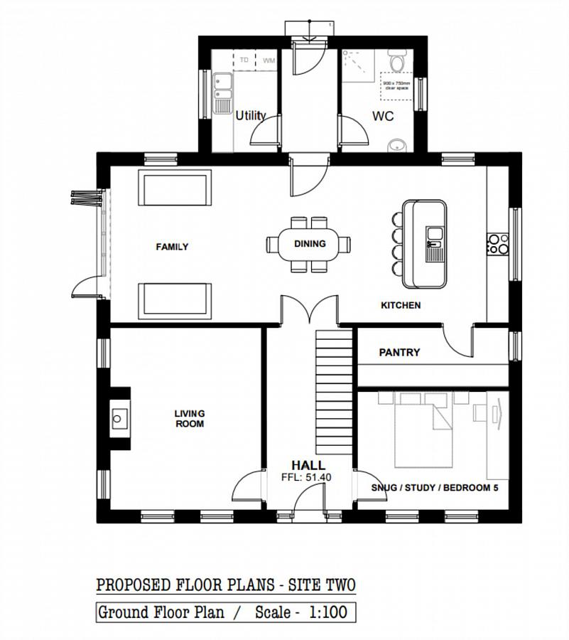
Circa 0.4 site for sale with full planning approval. Planning was granted under application number LA10/2020/1240/RM for the proposed erection of a two storey detached dwellings with detached domestic garage set on a circa 0.4 acre plot.
Services: We are advised that electric, phone, water and drainage are available in the vicinity.
A buyer is recommended to obtain confirmation from their surveyor or solicitor.
The approximate size of the houses External Measurement with the stairs void removed on the first floor are as follows:
Dwelling - 2,680 sq ft
Garage- 1453 sq ft
Features
Planning approval granted
Circa 0.4 acre
Services close to site
Occupying a level site
Tenure: Freehold
TO VIEW OR MAKE A BID Contact Watters Property Sales or iamsold, www.iamsoldni.com
Starting Bid and Reserve Price
*Please note this property is subject to an undisclosed reserve price which is generally no more than 10% in excess of the starting bid, both the starting bid and reserve price can be subject to change. Terms and conditions apply to the Unconditional Method of Auction, which is powered by IAM Sold.
Auctioneer's Comments
This property is for sale under Traditional Auction terms. Should you view, offer or bid on the property, your information will be shared with the Auctioneer, iamsold.
With this auction method, the buyer and seller must Exchange immediately, and Complete 28 days thereafter.
The buyer is required to make payment of a non-refundable Contract Deposit of 10% to a minimum of £6,000.00.
The buyer is also required to make a payment of a non-refundable, Buyer Administration Fee of 1.80% of the purchase price including VAT, subject to a minimum of £2,400.00 including VAT, for conducting the auction.
Buyers will be required to go through an identification verification process with iamsold and provide proof of how the purchase would be funded.
Terms and conditions apply to the traditional auction method and you are required to check the Buyer Information Pack for any special terms and conditions associated with this lot.
The property is subject to an undisclosed Reserve Price with both the Reserve Price and Starting Bid being subject to change.
Referral Arrangements
The Partner Agent and Auctioneer may recommend the services of third parties to you. Whilst these services are recommended as it is believed they will be of benefit; you are under no obligation to use any of these services and you should always consider your options before services are accepted.
Where services are accepted the Auctioneer or Partner Agent may receive payment for the recommendation and you will be informed of any referral arrangement and payment prior to any services being taken by you.
Notice
Please note we have not tested any apparatus, fixtures, fittings, or services. Interested parties must undertake their own investigation into the working order of these items. All measurements are approximate and photographs provided for guidance only.
Utilities
Electric: Mains Supply
Gas: None
Water: Mains Supply
Sewerage: None
Broadband: None
Telephone: None
Other Items
Heating: Not Specified
Garden/Outside Space: No
Parking: No
Garage: No
For sale by Watters Property Sales via the iamsold Bidding Platform
Please note this property will be offered by online auction (unless sold prior). For auction date and time please visit iamsoldni.com. Vendors may decide to accept pre-auction bids so please register your interest with us to avoid disappointment.
Circa 0.4 site for sale with full planning approval. Planning was granted under application number LA10/2020/1240/RM for the proposed erection of a two storey detached dwellings with detached domestic garage set on a circa 0.4 acre plot.
Services: We are advised that electric, phone, water and drainage are available in the vicinity.
A buyer is recommended to obtain confirmation from their surveyor or solicitor.
The approximate size of the houses External Measurement with the stairs void removed on the first floor are as follows:
Dwelling - 2,680 sq ft
Garage- 1453 sq ft
Features
Planning approval granted
Circa 0.4 acre
Services close to site
Occupying a level site
Tenure: Freehold
TO VIEW OR MAKE A BID Contact Watters Property Sales or iamsold, www.iamsoldni.com
Starting Bid and Reserve Price
*Please note this property is subject to an undisclosed reserve price which is generally no more than 10% in excess of the starting bid, both the starting bid and reserve price can be subject to change. Terms and conditions apply to the Unconditional Method of Auction, which is powered by IAM Sold.
Auctioneer's Comments
This property is for sale under Traditional Auction terms. Should you view, offer or bid on the property, your information will be shared with the Auctioneer, iamsold.
With this auction method, the buyer and seller must Exchange immediately, and Complete 28 days thereafter.
The buyer is required to make payment of a non-refundable Contract Deposit of 10% to a minimum of £6,000.00.
The buyer is also required to make a payment of a non-refundable, Buyer Administration Fee of 1.80% of the purchase price including VAT, subject to a minimum of £2,400.00 including VAT, for conducting the auction.
Buyers will be required to go through an identification verification process with iamsold and provide proof of how the purchase would be funded.
Terms and conditions apply to the traditional auction method and you are required to check the Buyer Information Pack for any special terms and conditions associated with this lot.
The property is subject to an undisclosed Reserve Price with both the Reserve Price and Starting Bid being subject to change.
Referral Arrangements
The Partner Agent and Auctioneer may recommend the services of third parties to you. Whilst these services are recommended as it is believed they will be of benefit; you are under no obligation to use any of these services and you should always consider your options before services are accepted.
Where services are accepted the Auctioneer or Partner Agent may receive payment for the recommendation and you will be informed of any referral arrangement and payment prior to any services being taken by you.
Notice
Please note we have not tested any apparatus, fixtures, fittings, or services. Interested parties must undertake their own investigation into the working order of these items. All measurements are approximate and photographs provided for guidance only.
Utilities
Electric: Mains Supply
Gas: None
Water: Mains Supply
Sewerage: None
Broadband: None
Telephone: None
Other Items
Heating: Not Specified
Garden/Outside Space: No
Parking: No
Garage: No
Property Location
Mortgage Calculator
Contact Agent
Contact Watters Property Sales
Request More Information
Requesting Info about...
Building Site 2 Off The Coalhill Road Slushill, Lisnaskea, Enniskillen, BT92 0AF
By registering your interest, you acknowledge our Privacy Policy
By registering your interest, you acknowledge our Privacy Policy