Contact Agent

Contact Watters Property Sales

Contact Watters Property Sales

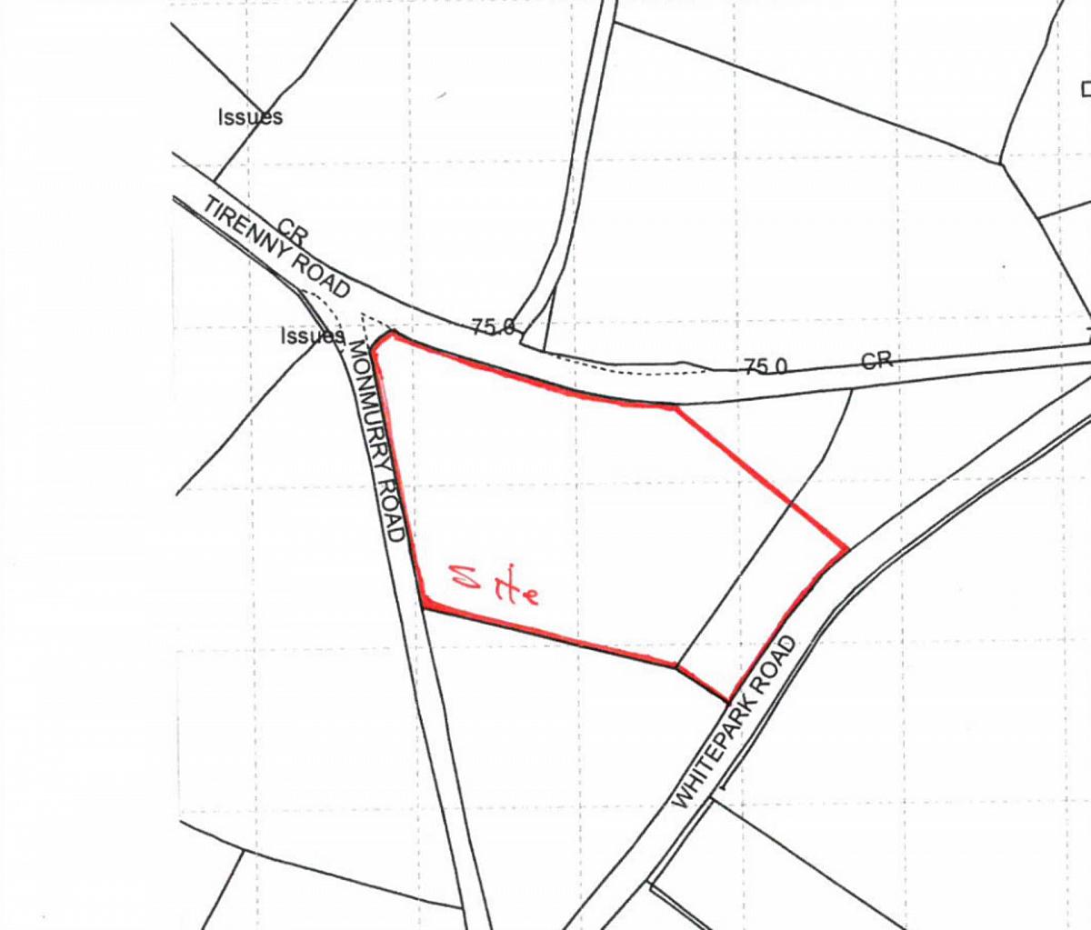
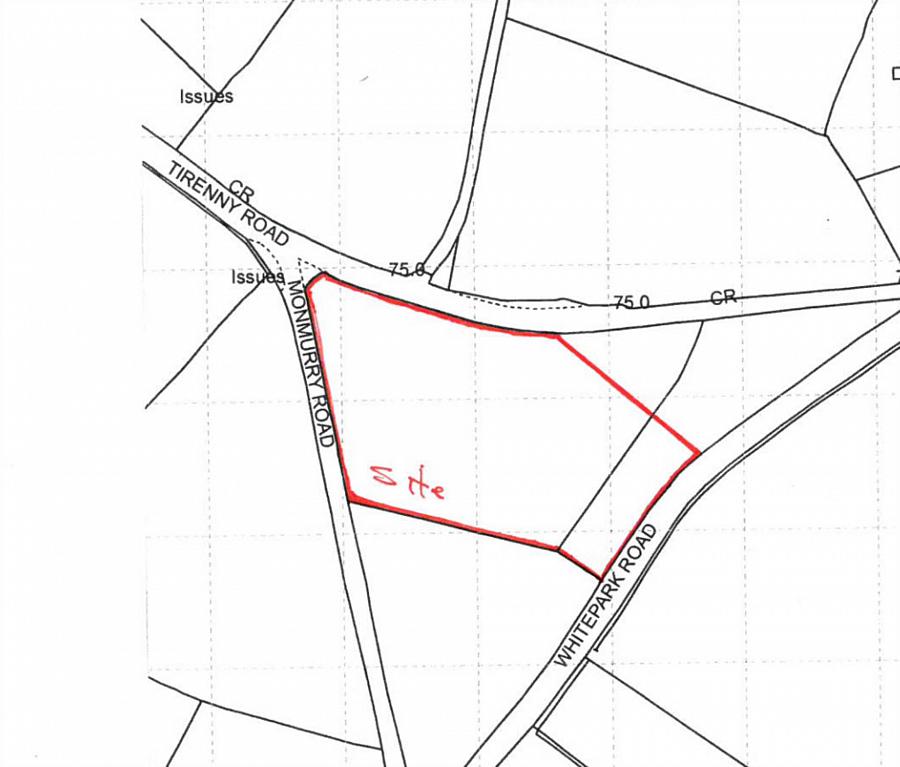
Land

Building Site At Tullynagowan Whitepark Road, Ashbrooke

Enniskillen, BT94 4AT

offers over £89,000
  • Status Sale Agreed
  • Property Type Land
  • Heating Not Specified
  • Stamp Duty
    Higher amount applies when purchasing as buy to let or as an additional property
    £0 / £4,450*
  • Typical Mortgage
    Click price to use our mortgage calculator

Key Features & Description

Idyllic rural settingCirca 2.7 acre plotDetached dwellingFull planning permissionIdyllic rural settingCirca 2.7 acre plotDetached dwellingFull planning permission
Description

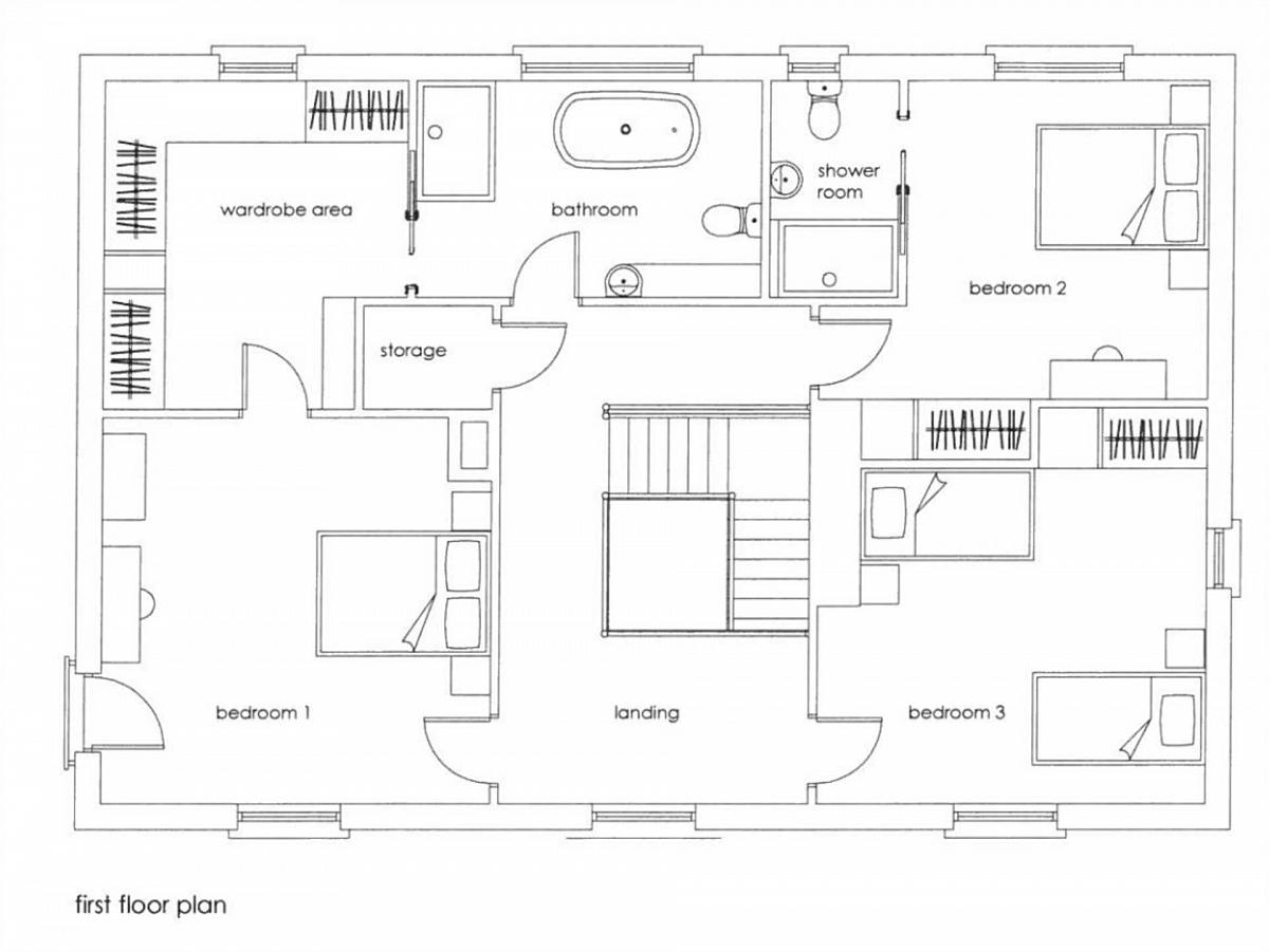
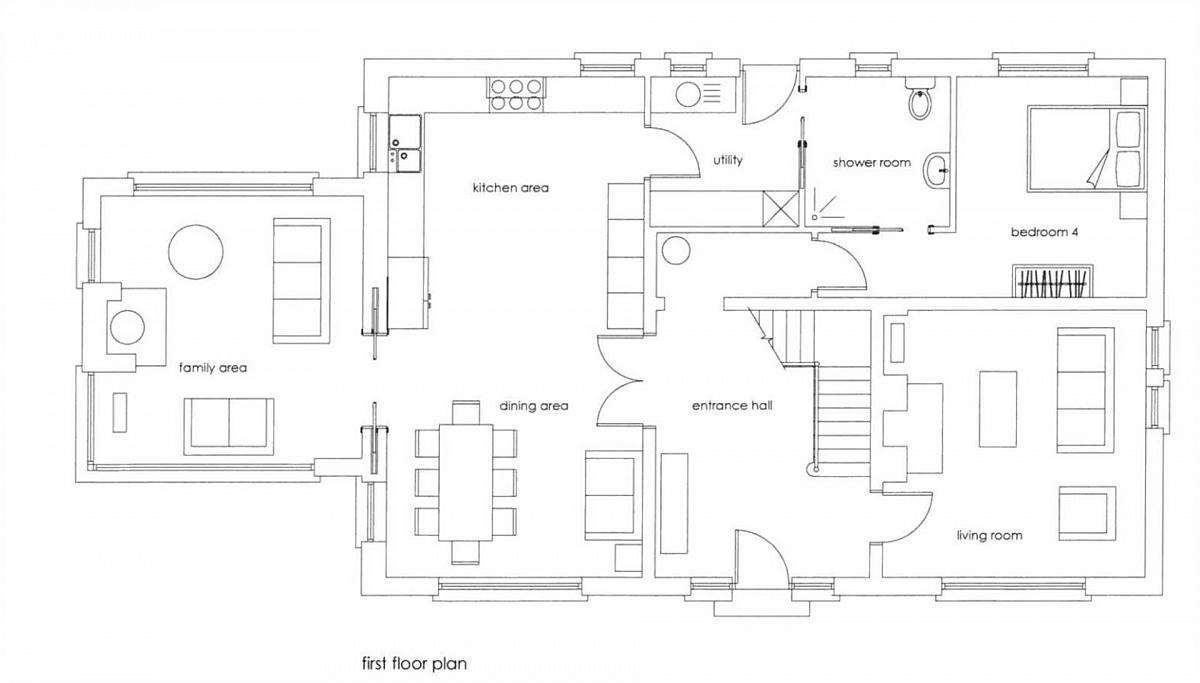
We are pleased to bring to the market this attractive building site circa 2.7 acres, with full planning permission for a detached dwelling and garage.


Application No: LA10/2019/1016/LDP


The trench foundations are in place to hold the planning allowing the buyer to start building straight away.


Note engineers report in attached PDF confirms the site foundations do not need piled.


An excellent opportunity to acquire a mature superior site in a much sought-after location, please contact our office for further details.


Services


We are advised that electric, phone, water and drainage are available in the vicinity. A buyer is recommended to obtain confirmation from their surveyor or solicitor.


Your Next Move


Thinking of selling, we can offer you a FREE VALUATION of your land or property. Mortgage advice is also available from our in-house Mortgage Advisor, you can find out how much you can borrow within minutes instead of waiting weeks to go through your high street bank for a decision.


To arrange an onsite viewing or for further information contact our Enniskillen estate agent’s office.


Tel: 02866 022200


Email: info@watterspropertysales.co.uk


For the exact location use this link.


https://what3words.com/scarcely.lunch.slant



Notice
Please note we have not tested any apparatus, fixtures, fittings, or services. Interested parties must undertake their own investigation into the working order of these items. All measurements are approximate and photographs provided for guidance only.

Utilities
Electric: Unknown
Gas: Unknown
Water: Unknown
Sewerage: Unknown
Broadband: Unknown
Telephone: Unknown

Other Items
Heating: Not Specified
Garden/Outside Space: No
Parking: No
Garage: No

Property Location

Show Map

Mortgage Calculator

Disclaimer: The following calculations act as a guide only, and are based on a typical repayment mortgage model. Financial decisions should not be made based on these calculations and accuracy is not guaranteed. Always seek professional advice before making any financial decisions.

Contact Agent

Contact Watters Property Sales

Contact Watters Property Sales

Request More Information
Requesting Info about...
Building Site At Tullynagowan Whitepark Road, Ashbrooke, Enniskillen, BT94 4AT Building Site At Tullynagowan Whitepark Road, Ashbrooke, Enniskillen, BT94 4AT

By registering your interest, you acknowledge our Privacy Policy