Contact Agent

Contact Watters Property Sales

Contact Watters Property Sales

Land

Development Land For 22 Sites Moorlough Road

Lisnaskea, Enniskillen, BT92 0DW

price £280,000
  • Status Sale Agreed
  • Property Type Land
  • Heating Not Specified
  • Stamp Duty
    Higher amount applies when purchasing as buy to let or as an additional property
    £4,000 / £18,000*
  • Typical Mortgage
    Click price to use our mortgage calculator

Key Features & Description

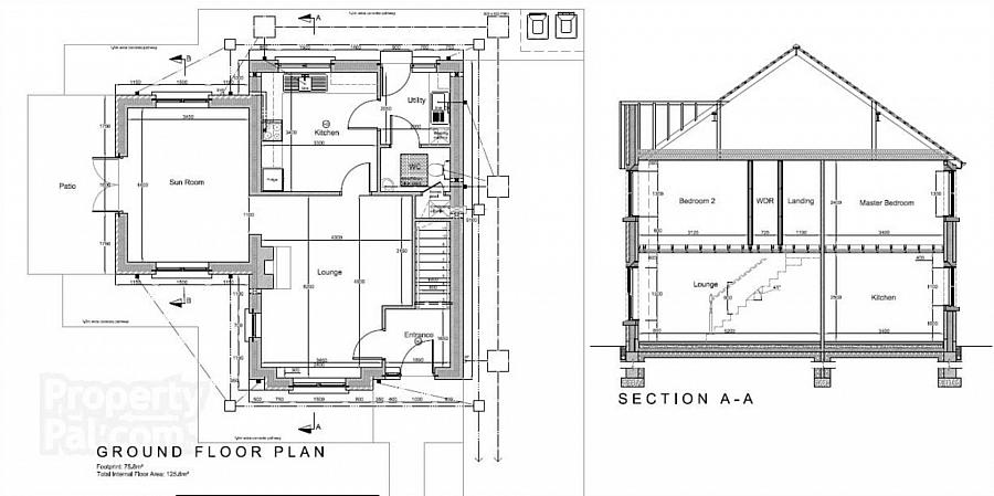
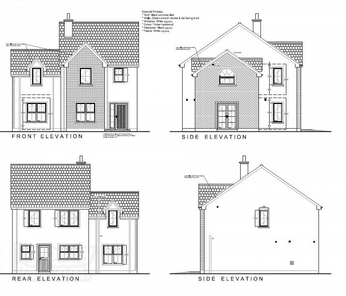
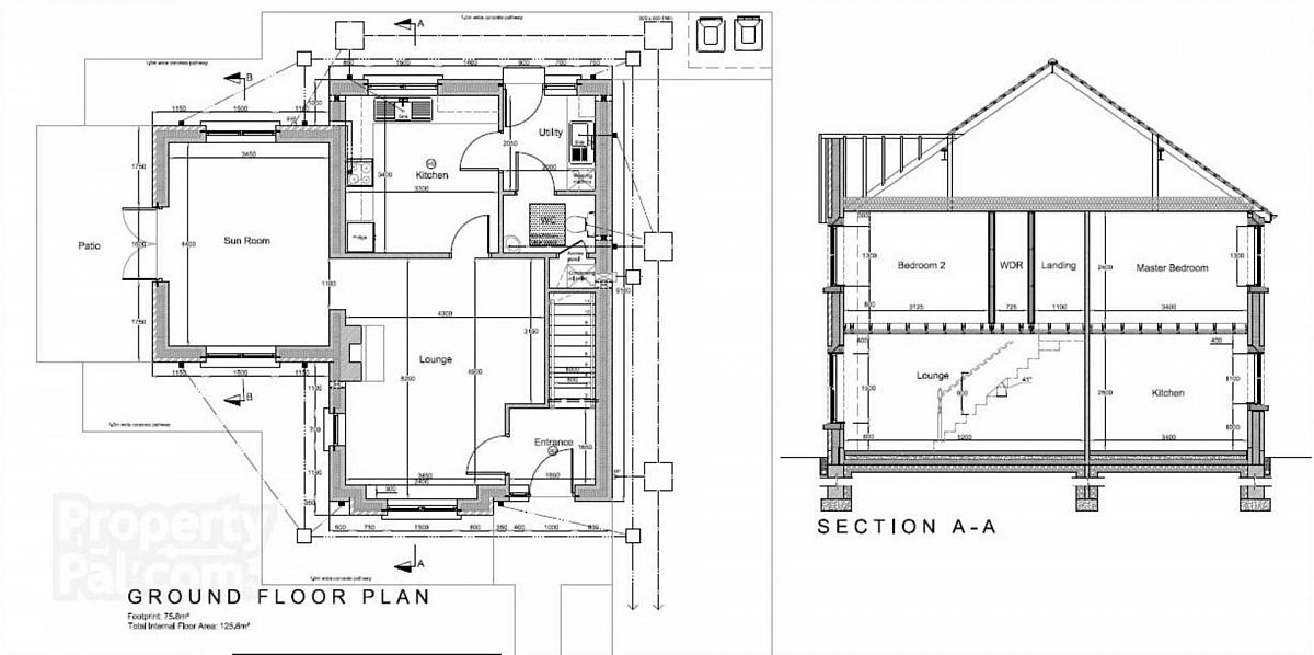
Services close to siteConcrete foundations in for first house to hold the planningReady to developAttractive house types with generous floor area
Description

The land comprises of one field extending to circa 2.2 acres with extensive road frontage.



Foundations are in place for one of the detached properties at the entrance of the development to hold the planning permission.



Full details and maps available on request.



For more information please contact our office.



Your Next Move



Thinking of selling, we can offer you a FREE VALUATION of your land or property.



Mortgage advice is also available from our in-house Mortgage Advisor, you can find out how much you can borrow within minutes instead of waiting weeks to go through your high street bank for a decision.



To arrange a viewing or for further information contact our Enniskillen estate agent’s office.



Tel: 02866 022200



Email: info@watterspropertysales.co.uk



Notice
Please note we have not tested any apparatus, fixtures, fittings, or services. Interested parties must undertake their own investigation into the working order of these items. All measurements are approximate and photographs provided for guidance only.

Utilities
Electric: Unknown
Gas: Unknown
Water: Unknown
Sewerage: Unknown
Broadband: Unknown
Telephone: Unknown

Other Items
Heating: Not Specified
Garden/Outside Space: No
Parking: No
Garage: No

Property Location

Show Map

Mortgage Calculator

Disclaimer: The following calculations act as a guide only, and are based on a typical repayment mortgage model. Financial decisions should not be made based on these calculations and accuracy is not guaranteed. Always seek professional advice before making any financial decisions.

Contact Agent

Contact Watters Property Sales

Contact Watters Property Sales

Request More Information
Requesting Info about...
Development Land For 22 Sites Moorlough Road, Lisnaskea, Enniskillen, BT92 0DW Development Land For 22 Sites Moorlough Road, Lisnaskea, Enniskillen, BT92 0DW

By registering your interest, you acknowledge our Privacy Policy