Contact Agent

Contact Lynn and Brewster

Contact Lynn and Brewster

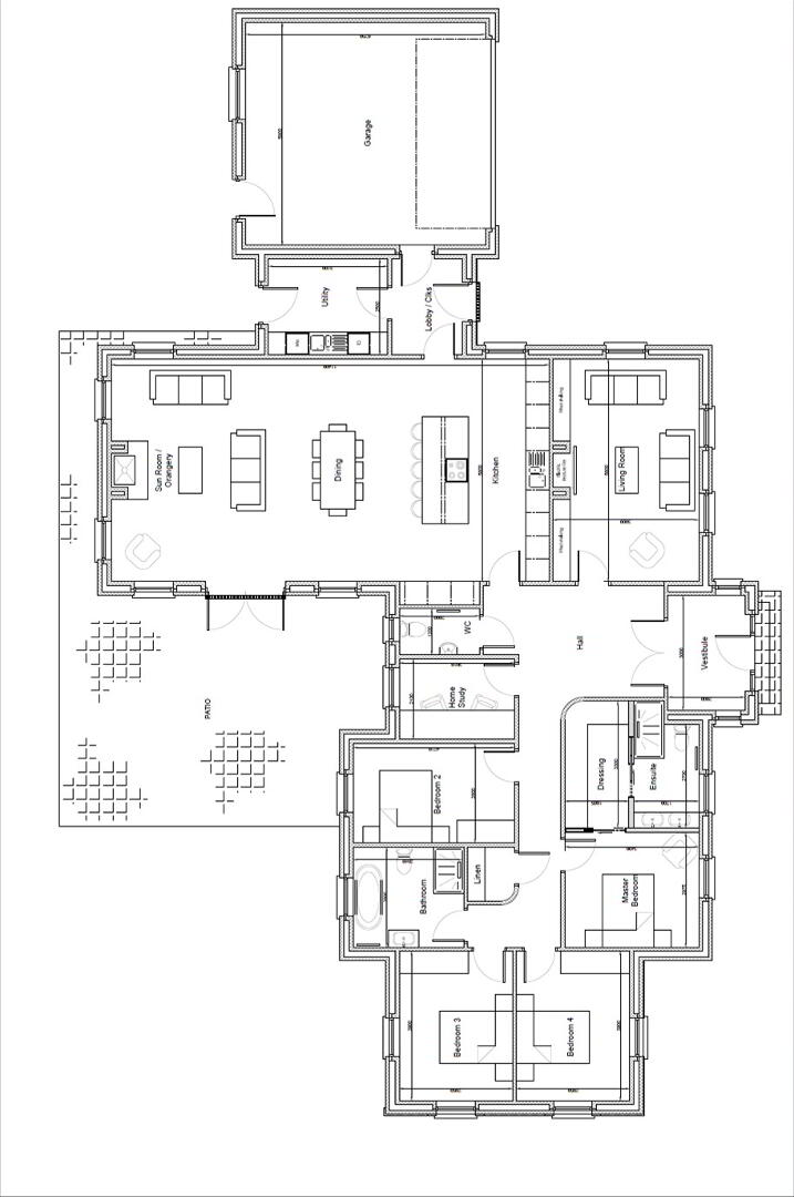
4 Bed Detached Bungalow

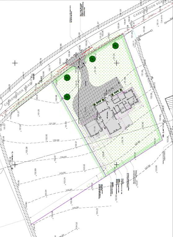
New Dwelling 70M South Of 33, Carrowdoon Road

Dunloy, Ballymoney, Ballymena

fixed price £425,000
  • Status For Sale
  • Property Type Detached Bungalow
  • Bedrooms 4
  • Receptions 2
  • Bathrooms 2
  • Heating Air Source Heat Pump
  • Stamp Duty
    Higher amount applies when purchasing as buy to let or as an additional property
    £11,250 / £32,500*
  • Typical Mortgage
    Click price to use our mortgage calculator

Description

Currently under construction and being developed by locally based DB Building Contracts Ltd, this stylish detached 4-bedroom dwelling is located within a generous site on the periphery of the village and will include an excellent layout extending to approximately 2,250 sq ft complimented with a quality and comprehensive choice of turnkey specification. In brief, this stunning home will feature an entrance vestibule, hallway, living room, a superb open plan kitchen/dining/living area with provision for an island unit, utility room, cloaks lobby, separate WC, family bathroom, an ensuite shower room and a walk in dressing room to the master bedroom.

In addition, the property will benefit from under floor heating, an air source heat pump, an integral garage and a pillared entrance with estate rail fencing and provision for garden lighting to the surrounding grounds.

The location is ideal, close to the local village amenities yet within easy reach of the Frosses Road connecting both the north coast and southerly destinations, approximately 7 miles to Ballymoney and about 13 miles to Ballymena.

 

SPECIFICATION

Internal

Internal painting throughout

Painted 6” skirting and 4” architraves

Choice of door (subject to specification and construction timescale)

Comprehensive electrical  specification including TV points to all bedrooms, and wired for burglar alarm

LED Down lighters to kitchen/dining area, living area, bathroom and ensuite shower room

Choice of electric fire from range to lounge

Log burning stove to sunroom

Provision left for island unit to kitchen (electric and plumbing)

Under floor heating

Choice of fitted kitchen from range to include soft touch closing doors & drawers, quartz work surface & upstand.  Range of fitted appliances to include gas or electric hob, overhead extractor, oven, microwave oven,   fridge/freezer & dishwasher

Choice of fitted utility from range to include work surface & upstand

Choice of floor tiling from range to vestibule, entrance hall, w/c, kitchen/dining/living area, utility and cloaks lobby, bathroom & ensuite

Choice of wall tiling from range to wc, ensuite and bathroom (floor to ceiling splashbacks, sinks and showers fully tiled)

Modern sanitary ware including 1200mm shower cubicle to ensuite and bathroom

Option of engineered wood floor, wood effect or floor tiling or carpet to lounge.

Choice of high wool content carpet with underlay from range to bedrooms and home study

Shelved linen cupboard/hot press

Hanging space to dressing area in bedrooms 1

Heating - Air source heat pump

 

External

Smooth painted rendered finish pillars

Driveway kerbed and finished in decorative stone

Surrounding gardens top soiled and sown out

Low level hedge to front elevation

Estate rail fencing to front boundary

1.8 High vertical fencing to side boundaries

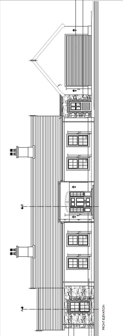
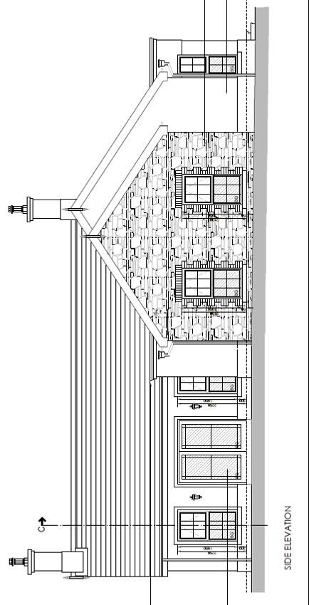
Smooth rendered painted finish in Chalk Hill/off white with stone effect cladding and brick detail

Seamless aluminium guttering in black

Double glazed windows with PVC frames finished in grey or white frames

Composite front and rear door (hardwood effect)

High level of Insulation

Global Homes warranty

Integral garage with roller door and hot water tap

Paved patio area to rear

Provision left for garden lighting, patio lighting and electric front gates

 

 

Land & Property Services Intellectual Property is protected by Crown Copyright and is reproduced with the permission of Land & Property

Services under delegated authority from the Controller of Her Majesty’s Stationery Office,

© Crown Copyright and database right (Licence No.2858 & 2015)

All maps, layouts, elevations and images are for identification purposes only and may not be exact

 

Property Location

Show Map

Mortgage Calculator

Disclaimer: The following calculations act as a guide only, and are based on a typical repayment mortgage model. Financial decisions should not be made based on these calculations and accuracy is not guaranteed. Always seek professional advice before making any financial decisions.

Contact Agent

Contact Lynn and Brewster

Contact Lynn and Brewster

Request More Information
Requesting Info about...
New Dwelling 70M South Of 33, Carrowdoon Road, Dunloy, Ballymoney, Ballymena New Dwelling 70M South Of 33, Carrowdoon Road, Dunloy, Ballymoney, Ballymena

By registering your interest, you acknowledge our Privacy Policy
Ask Holmes
Ask Holmes
Let's find your next home

Are you sure you want to reset the chat?

Checking API...