Contact Agent
Contact Watters Property Sales
Land
Two Building Sites Fpp Findrum Road
Ballygawley, Dungannon, BT70 2JL
Price on Application
- Status Sale Agreed
- Property Type Land
- Receptions 1
- Bathrooms 1
- Heating Not Specified
Key Features & Description
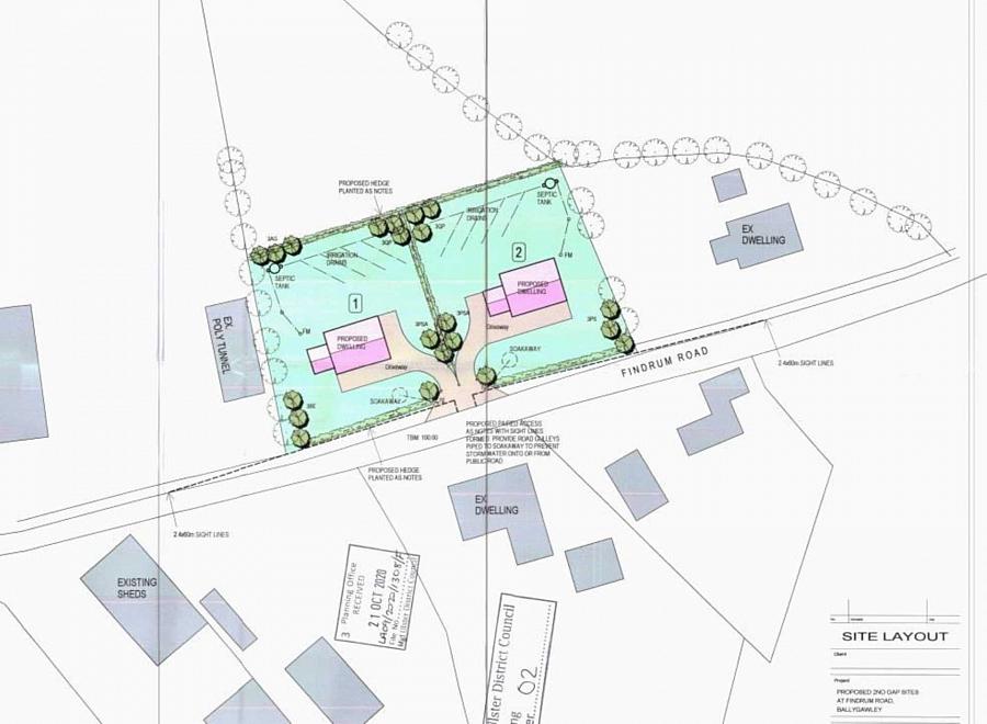
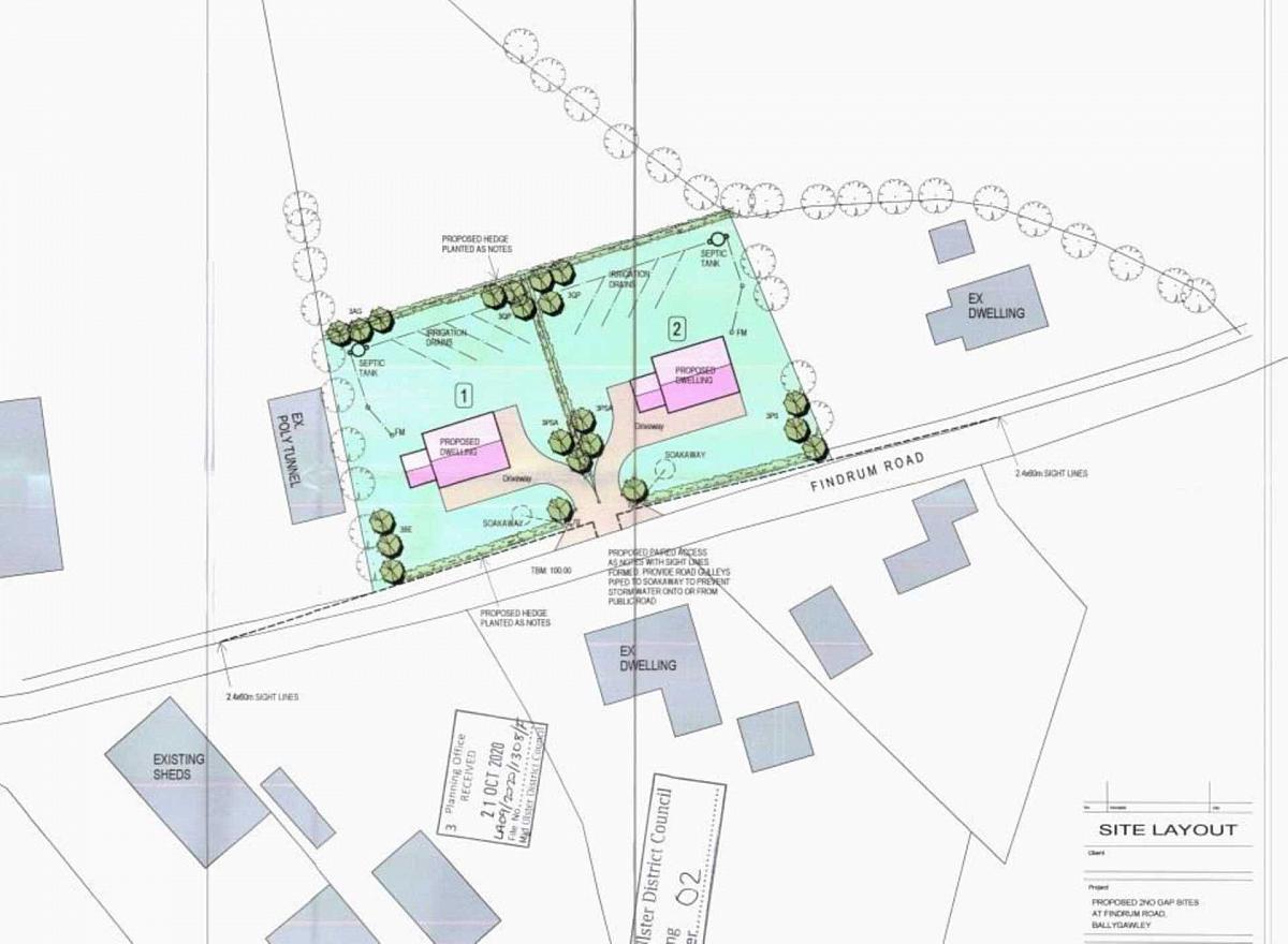
Two building sites for sale with planning permission granted on both
Approved planning for two designs (House type 1 & 2)
Countryside views
Situated between the Main A5 Omagh Road & A4 Belfast Road
Planning reference LA09/2020/1308/F
Ideal location for those who commute to surrounding areas
Approximately 50 minute drive along the M1 to Belfast
Description
An opportunity to acquire two building sites (both can be sold separately) with full planning permission to build a modern four bedroom detached home set in the most convenient location with close proximity to Ballygawley roundabout, ideal for access to the Main A5 Omagh or A4 Belfast Road.
Planning permission has been passed on two different plans, offering spacious and comfortable living accommodation split across two floors, ideal for modern family day life.
The associated planning application numbers can be viewed on Mid Ulster Council Planning Portal with the reference LA09/2020/1308/F
The land offered for sale is outlined in red on the attached images (images are for illustration/reference purposes only).
For further information contact our office.
Tel: 02866 022200
Email:info@watterspropertysales.co.uk
For the exact location copy the below words into www.what3words.com
what3words /// improving.hobbyists.toothpick
Notice
Please note we have not tested any apparatus, fixtures, fittings, or services. Interested parties must undertake their own investigation into the working order of these items. All measurements are approximate and photographs provided for guidance only.
Utilities
Electric: Mains Supply
Gas: None
Water: Mains Supply
Sewerage: None
Broadband: None
Telephone: None
Other Items
Heating: Not Specified
Garden/Outside Space: No
Parking: No
Garage: No
An opportunity to acquire two building sites (both can be sold separately) with full planning permission to build a modern four bedroom detached home set in the most convenient location with close proximity to Ballygawley roundabout, ideal for access to the Main A5 Omagh or A4 Belfast Road.
Planning permission has been passed on two different plans, offering spacious and comfortable living accommodation split across two floors, ideal for modern family day life.
The associated planning application numbers can be viewed on Mid Ulster Council Planning Portal with the reference LA09/2020/1308/F
The land offered for sale is outlined in red on the attached images (images are for illustration/reference purposes only).
For further information contact our office.
Tel: 02866 022200
Email:info@watterspropertysales.co.uk
For the exact location copy the below words into www.what3words.com
what3words /// improving.hobbyists.toothpick
Notice
Please note we have not tested any apparatus, fixtures, fittings, or services. Interested parties must undertake their own investigation into the working order of these items. All measurements are approximate and photographs provided for guidance only.
Utilities
Electric: Mains Supply
Gas: None
Water: Mains Supply
Sewerage: None
Broadband: None
Telephone: None
Other Items
Heating: Not Specified
Garden/Outside Space: No
Parking: No
Garage: No
Property Location
Contact Agent
Contact Watters Property Sales
Request More Information
Requesting Info about...
Two Building Sites Fpp Findrum Road, Ballygawley, Dungannon, BT70 2JL
By registering your interest, you acknowledge our Privacy Policy
By registering your interest, you acknowledge our Privacy Policy