Contact Agent

Contact Joyce Clarke

Contact Joyce Clarke

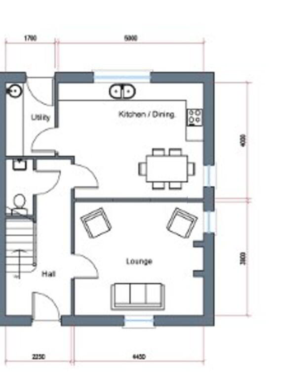
3 Bed Semi-Detached House

8, Brick, The Spires, Bush Road

Bush Road, Dungannon

offers over £230,000
  • Status For Sale
  • Property Type Semi-Detached
  • Bedrooms 3
  • Receptions 1
  • Bathrooms 3
  • Interior Area 1170 sq ft
  • Heating Gas
  • Stamp Duty
    Higher amount applies when purchasing as buy to let or as an additional property
    £2,100 / £13,600*
  • Typical Mortgage
    Click price to use our mortgage calculator

Description

The Spires – A Unique Collection of Luxury Homes on Bush Road, DungannonDeveloped by M & L Properties Ltd, The Spires offers an exclusive selection of stunning homes perfectly positioned on Bush Road. This exceptional development combines seclusion and privacy with an elevated site that enjoys panoramic views over the Dungannon skyline.

Ideally located, The Spires provides convenient access to a wide range of local amenities as well as leading primary and secondary schools—making it the perfect choice for growing families.

With a choice of beautifully designed large detached homes and semi-detached bungalows, each property at The Spires is finished to an exceptional luxury turnkey specification. Every detail has been carefully considered to deliver style, comfort, and modern convenience.

 

Turnkey Specification

General

10-year structural warrantyHigh-performance, lockable double-glazed PVC windowsHigh-performance front door with 5-point locking systemMains gas-fired central heating system with high-efficiency combi boilerMains-powered smoke, heat, and carbon monoxide detectors

 

Kitchen & Utility Room

Bespoke fitted kitchen with choice of luxury units, door furniture, and worktopsIntegrated appliances including hob, electric oven, extractor hood, fridge freezer, and dishwasherRecessed energy-efficient LED spotlights to ceilingsCeramic floor tiling in kitchen and dining areasUpstand provided in kitchen

 

Bathrooms, Ensuites & WCs

Contemporary white sanitaryware with chrome fittingsChrome towel radiators in bathroom and ensuiteRecessed energy-efficient LED spotlightsCeramic floor tiling

 

Internal Features

Painted interior finish to all walls, ceilings, and woodworkPanelled internal doors with quality door furnitureMoulded skirting and architrave throughoutCove cornice ceiling provided as standard to hall, living room and kitchenLaminate wooden flooring in lounge; carpeted stairs, landing, and bedroomsWood-burning stove with hearth in living roomComprehensive range of electrical sockets, switches, TV, and telephone points

 

External Features

Front and rear gardens levelled and lawns laidTarmac drivewayRear garden enclosed with vertical timber fencingA mix of brick and render finishes to complement the traditional designOutside water tapFeature lighting to front and rear doorsPaved pathways and patio areas

Property Location

Show Map

Mortgage Calculator

Disclaimer: The following calculations act as a guide only, and are based on a typical repayment mortgage model. Financial decisions should not be made based on these calculations and accuracy is not guaranteed. Always seek professional advice before making any financial decisions.

Contact Agent

Contact Joyce Clarke

Contact Joyce Clarke

Request More Information
Requesting Info about...
8, Brick, The Spires, Bush Road, Bush Road, Dungannon 8, Brick, The Spires, Bush Road, Bush Road, Dungannon

By registering your interest, you acknowledge our Privacy Policy