Contact Agent
Contact John Minnis Estate Agents (Holywood)
3 Bed Semi-Detached House
2 Coopers Mill Mews
Dundonald, BT16 1WS
price
£250,000
Key Features & Description
Three-bedroom semi-detached property on a desirable corner site
Located within the popular Coopers Mill development, Dundonald
Excellent proximity to local shops, schools, and everyday amenities
Conveniently close to transport links, including main road and public transport connections
Generous and fully enclosed rear garden, ideal for outdoor entertaining or children´s play
Surrounding lawns to the front enhance the corner plot position
Designated parking available for residents and visitors
Ground floor open plan kitchen and dining area, perfect for family living
Separate utility room providing additional storage and practical space
Lounge with dual aspect to front and side, featuring a central gas coal-effect fire
Three well-proportioned bedrooms on the first floor
Primary bedroom with en suite shower room
Additional family bathroom serving the remaining bedrooms
Well-maintained and thoughtfully laid-out accommodation throughout
Ideal for a range of buyers seeking a convenient and comfortable home
Description
2 Coopers Mill Mews is an attractive and well-maintained three-bedroom semi-detached home, occupying a desirable corner site within the ever-popular Coopers Mill development in Dundonald. The property is ideally positioned for ease of commuting, being just a stone´s throw from excellent transport links, local shops and everyday amenities, making it perfectly suited to modern family living.
Externally, the property benefits from a generous and fully enclosed rear garden, offering excellent privacy and an ideal space for outdoor dining, entertaining or children´s play. Surrounding lawns to the front further enhance the appeal of its corner position, while designated parking provides convenience for residents and visitors alike.
Internally, the accommodation is bright, spacious and thoughtfully laid out. The ground floor features an open plan kitchen and dining area, creating a sociable hub for family life, complemented by a separate utility room which adds valuable storage and functionality. The lounge enjoys dual aspect views to the front and side and is centred around a gas coal-effect fire, providing a warm and inviting space to relax.
On the first floor, there are three well-proportioned bedrooms, all offering excellent versatility for family living, home working or guest accommodation. The primary bedroom benefits from its own en suite shower room, while the remaining bedrooms are served by a well-appointed family bathroom.
Situated within a popular and well-established development, the property is within close proximity to a range of schools, shops, parks and leisure facilities, as well as excellent road and public transport networks to Belfast and beyond. This superb home will appeal to a broad range of purchasers, including first-time buyers, young families and those seeking a convenient yet comfortable residential location.
2 Coopers Mill Mews is an attractive and well-maintained three-bedroom semi-detached home, occupying a desirable corner site within the ever-popular Coopers Mill development in Dundonald. The property is ideally positioned for ease of commuting, being just a stone´s throw from excellent transport links, local shops and everyday amenities, making it perfectly suited to modern family living.
Externally, the property benefits from a generous and fully enclosed rear garden, offering excellent privacy and an ideal space for outdoor dining, entertaining or children´s play. Surrounding lawns to the front further enhance the appeal of its corner position, while designated parking provides convenience for residents and visitors alike.
Internally, the accommodation is bright, spacious and thoughtfully laid out. The ground floor features an open plan kitchen and dining area, creating a sociable hub for family life, complemented by a separate utility room which adds valuable storage and functionality. The lounge enjoys dual aspect views to the front and side and is centred around a gas coal-effect fire, providing a warm and inviting space to relax.
On the first floor, there are three well-proportioned bedrooms, all offering excellent versatility for family living, home working or guest accommodation. The primary bedroom benefits from its own en suite shower room, while the remaining bedrooms are served by a well-appointed family bathroom.
Situated within a popular and well-established development, the property is within close proximity to a range of schools, shops, parks and leisure facilities, as well as excellent road and public transport networks to Belfast and beyond. This superb home will appeal to a broad range of purchasers, including first-time buyers, young families and those seeking a convenient yet comfortable residential location.
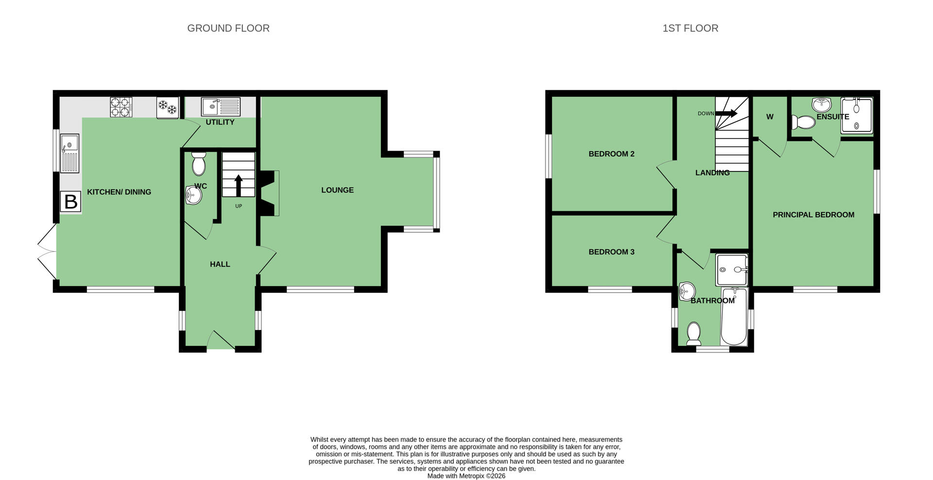
Rooms
ENTRANCE
Front Door
Hardwood front door, double glazed top light, through to reception hall.
GROUND FLOOR
Reception Hall
With tiled floor.
Lounge 17'2 X 15'8 (5.23m X 4.78m)
With outlook to front and side into square bay, with central gas coal effect fire, granite surround and hearth, timber frame and mantel.
Kitchen / Dining 17'2 X 11'1 (5.23m X 3.38m)
Fully fitted kitchen with range of high and low level units, concealed Ariston gas fired boiler, integrated dishwasher, laminate wood effect work surface, stainless steel sink and drainer, chrome mixer taps, outlook to rear, integrated oven, four ring gas hob, stainless steel splashback and stainless steel extractor fan, integrated fridge, integrated freezer, tiled floor, through to utility, double patio doors leading to garden from kitchen/dining.
Utility 17'2 X 15'8 (5.23m X 4.78m)
With extractor fan and built-in shelving, laminate work surface, range of low level units, space for washing machine and tumble dryer, stainless steel sink and drainer, chrome mixer taps, inset spotlights.
FIRST FLOOR
Landing
Access to roofspace.
Bedroom One 13'2 X 11'1 (4.01m X 3.38m)
Outlook to front and side, built-in robes and en suite shower room.
En Suite Shower Room 7'8 X 4'0 (2.34m X 1.22m)
White suite comprising of low flush WC, half pedestal wall hung wash hand basin, chrome mixer tap, walk-in thermostatically controlled shower, telephone handle attachment, tiled shower cubicle, glazed shower screen, tiled floor, inset low voltage spotlights and extractor fan.
Bedroom Three 11'1 X 6'8 (3.38m X 2.03m)
Outlook to front.
Bedroom Two 11'1 X 10'6 (3.38m X 3.20m)
Outlook to rear.
Bathroom 8'8 X 6'8 (2.64m X 2.03m)
White suite comprising of low flush WC, half pedestal wall hung wash hand basin, chrome mixer tap, panelled bath with mixer taps, telephone handle attachment, inset low voltage LED spotlights, extractor fan, tiled floor, partially tiled walls, walk-in thermostatically controlled shower, telephone handle attachment.
Roofspace
Partially floored.
OUTSIDE
Gardens and Parking
Parking to front. Fully enclosed garden with garden laid in lawns, garden sheds, raised planters, mature surrounding flowerbeds and patio laid in brick paviours. Additional surrounding gardens laid in lawns.
AML
As part of our obligations under the Money Laundering, Terrorist Financing and Transfer of Funds (Information on the Payer) Regulations 2017, all Estate Agents are required to verify the identity of purchasers involved in a property transaction.
To comply with these obligations, all purchasers will be required to complete Customer Due Diligence (AML) identity checks. These checks are carried out on our behalf by our trusted third-party provider, Thirdfort.
A charge will apply of £20 + VAT per purchaser.
To comply with these obligations, all purchasers will be required to complete Customer Due Diligence (AML) identity checks. These checks are carried out on our behalf by our trusted third-party provider, Thirdfort.
A charge will apply of £20 + VAT per purchaser.
A thriving suburban community on the edge of East Belfast, Dundonald offers convenience and a welcoming local feel. Home to great schools, parks, and the popular Dundonald Ice Bowl, there´s plenty for families to enjoy. Shops, cafés, and leisure facilities are all close by, giving the area a lively everyday atmosphere.
Excellent transport links make commuting to Belfast and beyond quick and easy. With affordable homes and a strong community spirit, Dundonald is a fantastic place to settle down.
Excellent transport links make commuting to Belfast and beyond quick and easy. With affordable homes and a strong community spirit, Dundonald is a fantastic place to settle down.
Broadband Speed Availability
Potential Speeds for 2 Coopers Mill Mews
Max Download
1800
Mbps
Max Upload
220
MbpsThe speeds indicated represent the maximum estimated fixed-line speeds as predicted by Ofcom. Please note that these are estimates, and actual service availability and speeds may differ.
Property Location
Mortgage Calculator
Contact Agent
Contact John Minnis Estate Agents (Holywood)
Request More Information
Requesting Info about...
2 Coopers Mill Mews, Dundonald, BT16 1WS
By registering your interest, you acknowledge our Privacy Policy
By registering your interest, you acknowledge our Privacy Policy