Contact Agent

Contact Templeton Robinson (Ballyhackamore)

Contact Templeton Robinson (Ballyhackamore)

3 Bed Semi-Detached House

10 Coopers Mill Gardens

Dundonald, BT16 1SF

offers over £229,950
  • Status For Sale
  • Property Type Semi-Detached
  • Bedrooms 3
  • Receptions 1
  • Heating GFCH
  • EPC Rating C77 / B87 -
  • Stamp Duty
    Higher amount applies when purchasing as buy to let or as an additional property
    £2,099 / £13,597*
  • Typical Mortgage
    Click price to use our mortgage calculator
EPC Rating

Key Features & Description

Beautiful, semi-detached home in popular residential development
Cul-de-sac location
Three well-proportioned bedrooms, principal with ensuite
Living room with feature fireplace
Modern kitchen with appliances, open to:
Dining area & double doors to rear
Downstairs W.C.
Main family bathroom on first floor
Driveway parking
GFCH / uPVC double glazing throughout
Enclosed rear garden with fantastic view across Castlereagh Hills
Walking distance to shops, parks and transport links to Belfast City Centre
Dundonald Village close by
Description
This well presented semi-detached modern home is located within a quiet cul-de-sac location in this development. Ideal for the first time buyer or downsizer seeking a home with nothing to do but move in.

Comprising stylish, contemporary bright and spacious accommodation throughout, there is a lounge, kitchen and dining area and w.c. on the ground floor.

Upstairs there are three double bedrooms, principal with ensuite and family bathroom.

Walking distance to shops, parks and also with a bus service all on your doorstep this property is sure to be popular on the open market. We advise to view at your earliest convenience.

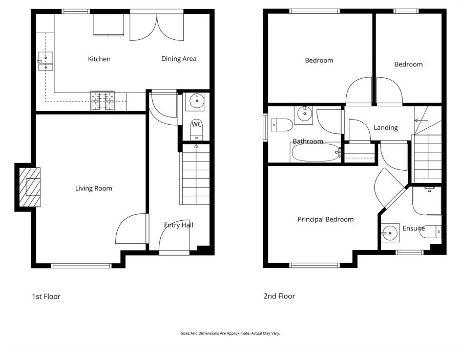
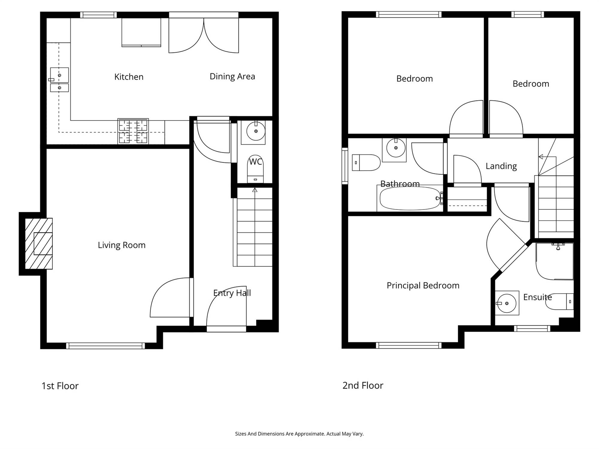
Rooms

Composite front door to...
ENTRANCE HALL: Tiled floor.
LIVING ROOM: 11' 8" X 15' 10" (3.56m X 4.83m) Wood effect flooring, feature fireplace.
KITCHEN / DINING: 18' 7" X 10' 4" (5.66m X 3.15m) Modern range of high and low level units, work surface, 1.5 stainless steel sink unit with mixer tap, underbench oven, 4 ring hob, extractor, under counter lighting, space for american style fridge/freezer, integrated dishwasher, integrated washing machine, tiled splashback, wood effect flooring, upvc double door to rear, spotlighting, open to dining...
DOWNSTAIRS W.C.: White bathroom suite comprising low flush WC, floating wash hand basin, tiled flooring.
LANDING: Access to roofspace.
BEDROOM (1): 14' 11" X 10' 4" (4.55m X 3.15m) Cornice ceiling, door to...
ENSUITE: White suite comprising dual flush WC, floating wash hand basin, shower cubicle, thermostatic shower, part tiled walls, tiled floor.
BEDROOM (2): 11' 1" X 9' 6" (3.38m X 2.90m)
BEDROOM (3): 7' 0" X 9' 6" (2.13m X 2.90m)
BATHROOM: White suite comprising dual flush WC, floating wash hand basin, panelled bath with mixer tap and glass screen, part tiled walls, tiled floor, wall-mounted mirror.
FRONT: Driveway parking, garden laid in lawn with mature shrubbery.
REAR: Garden laid in lawn, mature shrubbery, raised deck sitting area, views across Castlereagh Hills.

Broadband Speed Availability

Ultrafast

Potential Speeds for 10 Coopers Mill Gardens

Max Download
1800
Mbps
Max Upload
220
Mbps
The speeds indicated represent the maximum estimated fixed-line speeds as predicted by Ofcom. Please note that these are estimates, and actual service availability and speeds may differ.

Property Location

Show Map

Mortgage Calculator

Disclaimer: The following calculations act as a guide only, and are based on a typical repayment mortgage model. Financial decisions should not be made based on these calculations and accuracy is not guaranteed. Always seek professional advice before making any financial decisions.

Directions

Travelling along Coopers Mill Park from the Millmount end, turn left into Coopers Mill Drive, right into Coopers Mill Heights and then left again into Coopers Mill Gardens.

Contact Agent

Contact Templeton Robinson (Ballyhackamore)

Contact Templeton Robinson (Ballyhackamore)

Request More Information
Requesting Info about...
10 Coopers Mill Gardens, Dundonald, BT16 1SF 10 Coopers Mill Gardens, Dundonald, BT16 1SF

By registering your interest, you acknowledge our Privacy Policy
Ask Holmes
Ask Holmes
Let's find your next home

Are you sure you want to reset the chat?

Checking API...