Contact Agent

Contact Templeton Robinson (Ballyhackamore)

Contact Templeton Robinson (Ballyhackamore)

3 Bed Semi-Detached House

21 Grangewood Crescent

Dundonald, BT16 1GD

offers over £235,000
  • Status For Sale
  • Property Type Semi-Detached
  • Bedrooms 3
  • Receptions 2
  • Heating GFCH
  • EPC Rating C73 / C73
  • Stamp Duty
    Higher amount applies when purchasing as buy to let or as an additional property
    £2,200 / £13,950*
  • Typical Mortgage
    Click price to use our mortgage calculator
EPC Rating

Key Features & Description

Superb, semi-detached home in popular development
Three well-proportioned bedrooms
Living room with feature fireplace
Modern kitchen with appliances, open to:
Dining area and double doors to rear
Family bathroom on first floor
Detached garage / driveway parking
GFCH / double glazing throughout
Landscaped garden with sunny aspect
Convenient to transport links to Belfast, Bangor & Ards
Excellent amenities, parks and schools all close by
No onward chain
Description
Bright and spacious throughout, this superb semi-detached home occupies an ideal location within this sought after development. Excellent local amenities in Dundonald, Holywood and East Belfast are all within a short drive, the location is ideal for commuting and schools for all ages.

Offering excellent accommodation throughout, the property itself comprises a large lounge with feature fireplace, a good sized kitchen open plan to dining room. On the first floor there are three well-proportioned bedrooms as well as a separate family bathroom. Externally, there is off-street driveway parking and a good sized rear garden with sunny aspect, making it ideal for families.

Early viewing highly recommended.

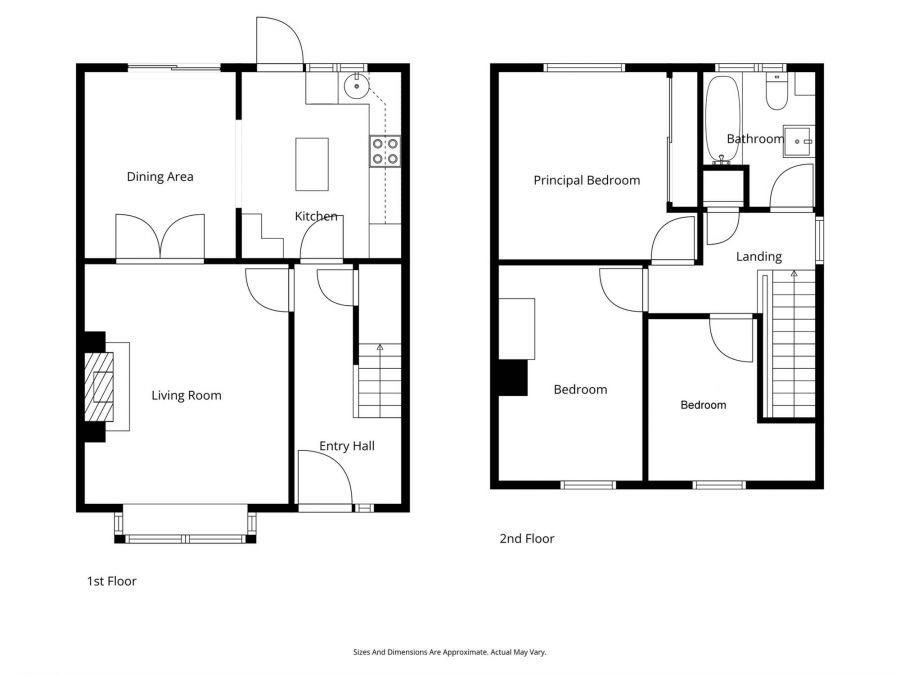
Rooms

uPVC front door to . . .
ENTRANCE HALL: Wood effect flooring. Understairs storage.
LIVING ROOM: 14' 8" X 12' 6" (4.46m X 3.80m) Wood effect flooring. Cornice ceiling. Feature fireplace with wooden surround and mantle.
KITCHEN: 11' 5" X 9' 9" (3.47m X 2.97m) Range of high and low level units, work surfaces. Stainless steel sink unit with mixer tap. Space for oven and hob. Integrated fridge freezer and dishwasher. Under unit lighting. Island unit. Tiled splashback. Spotlights. Wood effect flooring. uPVC door to rear. Open plan to . . .
DINING AREA: 11' 5" X 9' 3" (3.47m X 2.81m) Wood effect flooring. Sliding glazed doors. Cornice ceiling.
LANDING: Storage cupboard.
PRINCIPAL BEDROOM: 12' 1" X 11' 5" (3.69m X 3.49m) Wood effect flooring. Sliding double mirrored built-in wardrobe.
BEDROOM (2): 13' 2" X 8' 10" (4.01m X 2.68m) Wood effect flooring.
BEDROOM (3): 10' 2" X 9' 11" (3.11m X 3.02m) Wood effect flooring.
BATHROOM: White suite comprising low flush wc. Floating wash hand basin with mixer tap. Wall-mounted cabinet. Panelled bath with thermostatic shower and glass screen. Fully-tilled walls, tiled floor. Spotlights.
GARAGE: Up and over door. Power and light. Plumbed for washing machine, space for tumble dryer.
FRONT: Driveway parking. Garden laid in lawn.
REAR: Enclosed rear garden laid in lawn. Additional patio area. Mature shrubbery and flower beds. Outside light and tap.

Broadband Speed Availability

Ultrafast

Potential Speeds for 21 Grangewood Crescent

Max Download
1800
Mbps
Max Upload
220
Mbps
The speeds indicated represent the maximum estimated fixed-line speeds as predicted by Ofcom. Please note that these are estimates, and actual service availability and speeds may differ.

Property Location

Show Map

Mortgage Calculator

Disclaimer: The following calculations act as a guide only, and are based on a typical repayment mortgage model. Financial decisions should not be made based on these calculations and accuracy is not guaranteed. Always seek professional advice before making any financial decisions.

Directions

From the bottom of Ballyregan Road turn into Grangewood Road, continue along to the end, turn left into Grangewood Avenue and right again back onto Grangewood Road, continue along and 21 Grangewood Crescent on your left hand side.

Contact Agent

Contact Templeton Robinson (Ballyhackamore)

Contact Templeton Robinson (Ballyhackamore)

Request More Information
Requesting Info about...
21 Grangewood Crescent, Dundonald, BT16 1GD 21 Grangewood Crescent, Dundonald, BT16 1GD

By registering your interest, you acknowledge our Privacy Policy