Detached House
Sites Adjacent To 120 Drumbo Road
Drumbo, BT27 5TX
asking price
£249,950
- Status Sale Agreed
- Property Type Detached
-
Stamp Duty
Higher amount applies when purchasing as buy to let or as an additional property£2,499 / £14,997*
Key Features & Description
Site 1 - £249,950
Site 2 - £249,950
Two individual sites, one approx. 0.367, one approx. 0.368 of an acre.
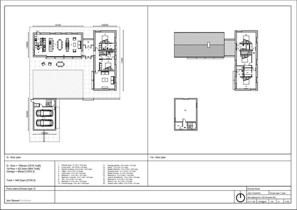
Full planning for two individually designed houses of approx. 3726 sq ft.
Drawings available in office.
Planning ref. LA05/20202/0963F
Semi-rural setting close to South Belfast
Description
Two superb sites of approx. 0.367 & 0.368 of an acre to be sold separately, set on a level greenfield site on the outskirts of Drumbo Village, within a semi-rural setting and conveniently placed close to south Belfast and Lisburn. A list of amenities are close by and include Malone and Dunmurry Golf Clubs, and Lagan Towpath. Full planning permission has been granted for two individually designed houses of approx. 3726 sq ft. Further drawings are available for inspection by prior appointment.
Two superb sites of approx. 0.367 & 0.368 of an acre to be sold separately, set on a level greenfield site on the outskirts of Drumbo Village, within a semi-rural setting and conveniently placed close to south Belfast and Lisburn. A list of amenities are close by and include Malone and Dunmurry Golf Clubs, and Lagan Towpath. Full planning permission has been granted for two individually designed houses of approx. 3726 sq ft. Further drawings are available for inspection by prior appointment.
Broadband Speed Availability
Potential Speeds for Sites Adjacent to 120 Drumbo Road
Max Download
1800
Mbps
Max Upload
1000
MbpsThe speeds indicated represent the maximum estimated fixed-line speeds as predicted by Ofcom. Please note that these are estimates, and actual service availability and speeds may differ.
Property Location
Mortgage Calculator
Directions
Travelling along Pinehill Road from Belfast, turn right on to Drumbo Road, site is located on the left hand side opposite Drumbo Presbyterian Church.
Contact Agent
Contact GOC Estate Agents
Request More Information
Requesting Info about...
Sites Adjacent To 120 Drumbo Road, Drumbo, BT27 5TX
By registering your interest, you acknowledge our Privacy Policy
By registering your interest, you acknowledge our Privacy Policy