3 Bed Townhouse
9 Drumbeg Cottages
Ballyskeagh Road, Drumbeg, BT17 9LY
offers over
£225,000
Key Features & Description
Modern Extended Townhouse in an Exclusive Cul-de-sac Development
Good sized Lounge with Attractive Fireplace & Open Plan to Dining Area
Open Plan Fitted Kitchen with Breakfast Bar
3 Bedrooms Including 2 with Ensuite Shower Rooms
Bathroom with White Suite / Separate Home Office/Study
Oil Central Heating / Triple Glazed Windows
Exceptionally Well Presented Throughout
Residents & Visitor Parking
Enclosed and Private Rear Garden and Sheltered Sitting Area
Superb Location, Comfortable Commuting Distance of Belfast & Lisburn in a Quiet Semi Rural Setting
Description
This superb, extended modern townhouse is ideally located within this highly regarded modern cul-de-sac development in this much sought after residential location just off the prestigious Upper Malone Road.
The accommodation briefly comprises an entrance hall, a superb lounge with dining area open plan to kitchen on the ground floor.
On the upper floors there are three bedrooms, two of which have access to ensuite facilities along with a family bathroom and a study/home office.
The property also benefits from oil fired central heating and triple glazed windows.
Externally the private paved rear garden sitting area overlooking open fields along with residents and visitor parking.
Situated within easy reach of leading schools, the Lagan Tow Path, Lady Dixon Park and local golf clubs, whilst convenient to the city centre and the M1 motorway, this property is in a prime location and can only be fully appreciated on internal inspection. Viewing is highly recommended.
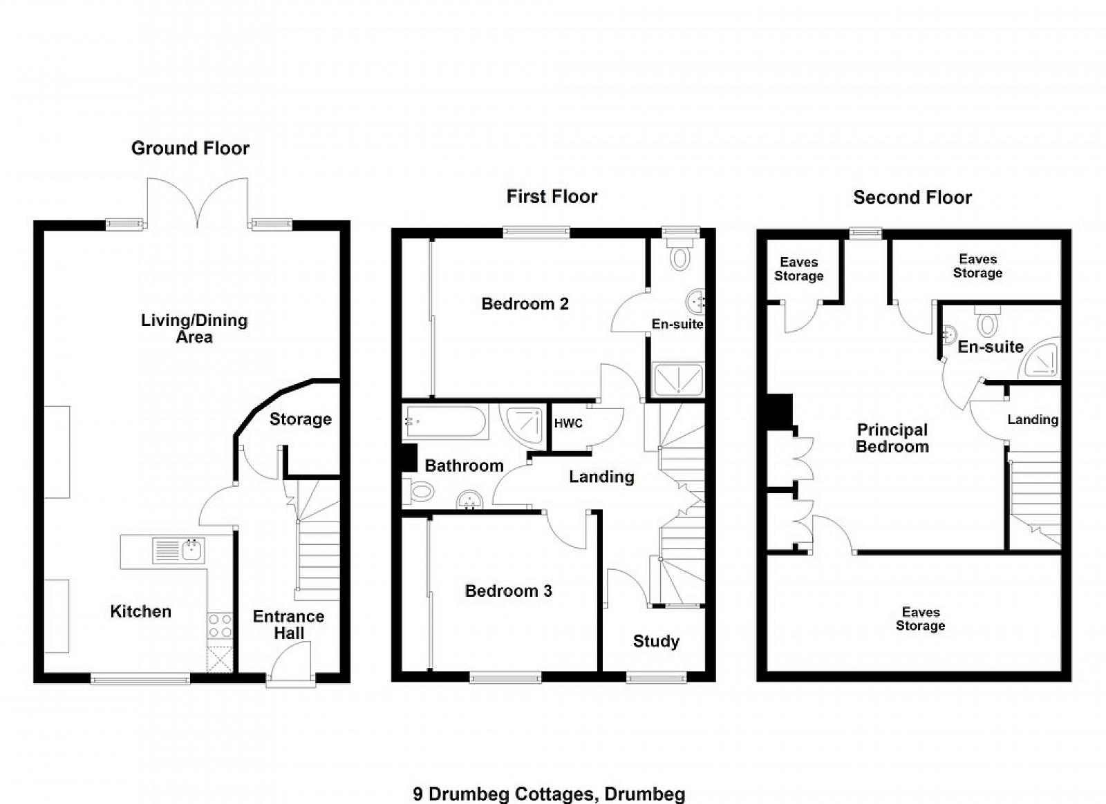
Front door to reception hall.
RECEPTION HALL Tiled floor with feature mosaic design, under stairs storage, cloaks area.
LOUNGE WITH DINING AREA 27' 11" x 18' 8" (8.51m x 5.69m) (overall to include the Kitchen) Wood flooring, attractive granite fireplace with raise granite hearth and gas coal effect fire, feature curved wall, uPVC double glazed doors to rear garden area.
OPEN PLAN TO KITCHEN Range of high and low level units, granite work surfaces with matching splashback, Franke 1.5 bowl stainless steel sink unit with granite drainer, four ring hob, Perspex splashback, extractor fan over, electric oven under, housing for fridge freezer, integrated dishwasher, integrated washing machine, concealed under unit lighting, tiled floor, low voltage spotlights, breakfast bar.
FIRST FLOOR LANDING Airing cupboard.
BEDROOM 12' 10" x 10' (3.91m x 3.05m) Wood flooring, wall to wall range of built in robes and storage.
ENSUITE SHOWER ROOM White suite comprising low flush WC, pedestal wash hand basin, fully tiled shower cubicle, part tiled walls, tiled floor.
BEDROOM 10' 5" x 9' 2" (3.18m x 2.79m) Laminate wood effect floor, wall to wall range of built in robes and storage.
STUDY / HOME OFFICE 6' 11" x 4' (2.11m x 1.22m) Laminate wood effect floor.
BATHROOM White suite comprising low flush WC, pedestal wash hand basin, panelled bath, fully tiled shower cubicle, fully tiled walls, laminate wood effect floor.
SECOND FLOOR LANDING
BEDROOM 10' 7" x 14' 11" (3.24m x 4.57m) (@ widest points) Wood flooring, storage in eaves, built in robes and storage, Velux window.
ENSUITE SHOWER ROOM White suite comprising low flush WC, half pedestal wash hand basin, fully tiled shower cubicle, fully tiled walls, tiled floor, chrome heated towel rail, Velux window.
OUTSIDE Residents and visitor car parking, enclosed and private paved rear garden with boundary fence and wall, overlooking open fields, oil tank, oil fired boiler.
This superb, extended modern townhouse is ideally located within this highly regarded modern cul-de-sac development in this much sought after residential location just off the prestigious Upper Malone Road.
The accommodation briefly comprises an entrance hall, a superb lounge with dining area open plan to kitchen on the ground floor.
On the upper floors there are three bedrooms, two of which have access to ensuite facilities along with a family bathroom and a study/home office.
The property also benefits from oil fired central heating and triple glazed windows.
Externally the private paved rear garden sitting area overlooking open fields along with residents and visitor parking.
Situated within easy reach of leading schools, the Lagan Tow Path, Lady Dixon Park and local golf clubs, whilst convenient to the city centre and the M1 motorway, this property is in a prime location and can only be fully appreciated on internal inspection. Viewing is highly recommended.
Front door to reception hall.
RECEPTION HALL Tiled floor with feature mosaic design, under stairs storage, cloaks area.
LOUNGE WITH DINING AREA 27' 11" x 18' 8" (8.51m x 5.69m) (overall to include the Kitchen) Wood flooring, attractive granite fireplace with raise granite hearth and gas coal effect fire, feature curved wall, uPVC double glazed doors to rear garden area.
OPEN PLAN TO KITCHEN Range of high and low level units, granite work surfaces with matching splashback, Franke 1.5 bowl stainless steel sink unit with granite drainer, four ring hob, Perspex splashback, extractor fan over, electric oven under, housing for fridge freezer, integrated dishwasher, integrated washing machine, concealed under unit lighting, tiled floor, low voltage spotlights, breakfast bar.
FIRST FLOOR LANDING Airing cupboard.
BEDROOM 12' 10" x 10' (3.91m x 3.05m) Wood flooring, wall to wall range of built in robes and storage.
ENSUITE SHOWER ROOM White suite comprising low flush WC, pedestal wash hand basin, fully tiled shower cubicle, part tiled walls, tiled floor.
BEDROOM 10' 5" x 9' 2" (3.18m x 2.79m) Laminate wood effect floor, wall to wall range of built in robes and storage.
STUDY / HOME OFFICE 6' 11" x 4' (2.11m x 1.22m) Laminate wood effect floor.
BATHROOM White suite comprising low flush WC, pedestal wash hand basin, panelled bath, fully tiled shower cubicle, fully tiled walls, laminate wood effect floor.
SECOND FLOOR LANDING
BEDROOM 10' 7" x 14' 11" (3.24m x 4.57m) (@ widest points) Wood flooring, storage in eaves, built in robes and storage, Velux window.
ENSUITE SHOWER ROOM White suite comprising low flush WC, half pedestal wash hand basin, fully tiled shower cubicle, fully tiled walls, tiled floor, chrome heated towel rail, Velux window.
OUTSIDE Residents and visitor car parking, enclosed and private paved rear garden with boundary fence and wall, overlooking open fields, oil tank, oil fired boiler.
Broadband Speed Availability
Potential Speeds for 9 Drumbeg Cottages
Max Download
1800
Mbps
Max Upload
300
MbpsThe speeds indicated represent the maximum estimated fixed-line speeds as predicted by Ofcom. Please note that these are estimates, and actual service availability and speeds may differ.
Property Location
Mortgage Calculator
Contact Agent
Contact Fetherstons (South Belfast)
Request More Information
Requesting Info about...
9 Drumbeg Cottages, Ballyskeagh Road, Drumbeg, BT17 9LY
By registering your interest, you acknowledge our Privacy Policy
By registering your interest, you acknowledge our Privacy Policy