House
7-9 Bridge Street
Dromore, BT25 1AN
guide price
£65,000
- Status For Sale
- Property Type House
- EPC Rating D92
-
Stamp Duty
Higher amount applies when purchasing as buy to let or as an additional property£0 / £3,250*
Key Features & Description
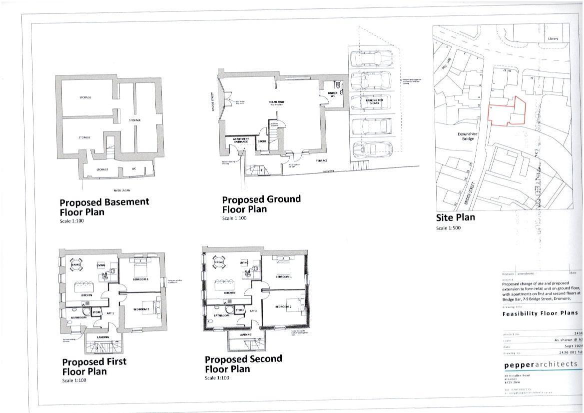
This former public house has potential to develop as a ground floor retail unit with first and second floor apartments above.
Its ideal riverside location would be suitable for a wine bar or cafe.
Historic charm from 1800
Prime development opportunity
Potential for retail and flats
Riverside views enhance appeal
Central Dromore location
Close to local amenities
Ideal for investors
Viewing highly recommended
Description
Nestled in the heart of Dromore, at 7 - 9 Bridge Street, this remarkable development property offers a unique opportunity for those looking to invest in a piece of history. Built in 1800, the property boasts a rich heritage and character that is hard to find in modern constructions.
The property current presents a blank canvas for imaginative developers and investors. The prime location on Bridge Street ensures excellent visibility and accessibility, making it an ideal site for a variety of potential projects. Whether you envision a charming boutique, a stylish café, or residential units, the possibilities are endless.
Dromore is a vibrant town with a strong community spirit, and this property is perfectly positioned to benefit from local amenities and transport links. The surrounding area is known for its picturesque scenery and welcoming atmosphere, making it an attractive destination for both residents and visitors alike.
This is a rare chance to acquire a property with historical significance in a thriving location. With the right vision and creativity, 7 - 9 Bridge Street could be transformed into a stunning development that pays homage to its storied past while embracing the future. Do not miss out on this exceptional opportunity to make your mark in Dromore.
Nestled in the heart of Dromore, at 7 - 9 Bridge Street, this remarkable development property offers a unique opportunity for those looking to invest in a piece of history. Built in 1800, the property boasts a rich heritage and character that is hard to find in modern constructions.
The property current presents a blank canvas for imaginative developers and investors. The prime location on Bridge Street ensures excellent visibility and accessibility, making it an ideal site for a variety of potential projects. Whether you envision a charming boutique, a stylish café, or residential units, the possibilities are endless.
Dromore is a vibrant town with a strong community spirit, and this property is perfectly positioned to benefit from local amenities and transport links. The surrounding area is known for its picturesque scenery and welcoming atmosphere, making it an attractive destination for both residents and visitors alike.
This is a rare chance to acquire a property with historical significance in a thriving location. With the right vision and creativity, 7 - 9 Bridge Street could be transformed into a stunning development that pays homage to its storied past while embracing the future. Do not miss out on this exceptional opportunity to make your mark in Dromore.
Property Location
Mortgage Calculator
Contact Agent
Contact Property Partners
Request More Information
Requesting Info about...
7-9 Bridge Street, Dromore, BT25 1AN
By registering your interest, you acknowledge our Privacy Policy
By registering your interest, you acknowledge our Privacy Policy