Contact Agent

Contact McLernon Estate Agents

Contact McLernon Estate Agents

3 Bed Detached Bungalow

18 St. Dympna's Road

Dromore, BT78 3JG

guide price £210,000
  • Status For Sale
  • Property Type Detached Bungalow
  • Bedrooms 3
  • Receptions 3
  • Bathrooms 2
  • Rates
    Rate information is for guidance only and may change as sources are updated.
    £851.49
  • Heating Oil
  • EPC Rating F36 / E51
  • Stamp Duty
    Higher amount applies when purchasing as buy to let or as an additional property
    £1,700 / £12,200*
  • Typical Mortgage
    Click price to use our mortgage calculator
EPC Rating

Property Financials

  • Guide Price £210,000
  • Rates £851.49

Key Features & Description

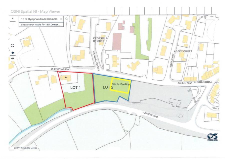
LOT 1: £160,000
DETACHED 3-BED BUNGALOW.
DETACHED GARAGE
LARGE MATURE GARDENS.
LOT 2: £50,000
RESIDENTIAL BUILDING SITE.
FULL PLANNING APPROVAL.
Description
LOT 1: The subject Detached Bungalow & Garage occupies an extensive mature site within easy walking distance of Dromore Village Centre and all amenities. Constructed in the 1950's by local firm McAleer & Teague, the property enjoys substantial frontage to St. Dympna's Road and is bordered at the rear by the Tummery Road. LOT 2: The Residential Building Site with Full Planning Approval is located on the village side of LOT 1 with access from St. Dympna's Road. Full details, maps etc. available on request.

*Property is sale agreed, site is still available*

Lots 1 & 2 are sold separately.
Guide Price of £210,000 is £160,000 for Bungalow and £50,000 for Building Site.

LOT 1:  Detached Bungalow.

Entrance Hall:  12'6" x 7'9" & 22'0" x 3'9".
Oak floor.

Sitting Room:  18'0" x 12'6".
Functional fireplace with hardwood surround.
French doors to Conservatory at rear.

Conservatory: 20'3" x 11'6".
Polycarbon roof. Tiled floor.

Kitchen: 12'9" x 7'9".
Shaker-style modern fitted storage units.
Laminate floor.

Bedroom 1:  12"9"  x 9'0".
Built-in wardrobe.

Bedroom 2:  12'9" x 9'6".
Built-in wardrobe.

Bedroom 3:  12'9" x 9'6".
Fitted double wardrobes.

Bathroom:  9'0" x 5'6".
White suite.  Tiled walls & floor.

Shower Room:  7'3" x 5'6".
Electric Shower. Tiled floor.

Utility Room:  5'6" x 3'6".
Plumbed for washing machine.

OUTSIDE:
Single Garage.
Lawns to front & side.
Extensive forested area to rear.
Integral Off-street dirveways/parking areas.

LOT 2:  Residential Building Site.
             
Full Planning Approval for 4/5 Bed Detached House.
             Detailed plans available.

Broadband Speed Availability

Ultrafast

Potential Speeds for 18 St. Dympna's Road

Max Download
1800
Mbps
Max Upload
300
Mbps
The speeds indicated represent the maximum estimated fixed-line speeds as predicted by Ofcom. Please note that these are estimates, and actual service availability and speeds may differ.

Property Location

Show Map

Mortgage Calculator

Disclaimer: The following calculations act as a guide only, and are based on a typical repayment mortgage model. Financial decisions should not be made based on these calculations and accuracy is not guaranteed. Always seek professional advice before making any financial decisions.

Contact Agent

Contact McLernon Estate Agents

Contact McLernon Estate Agents

Request More Information
Requesting Info about...
18 St. Dympnas Road, Dromore, BT78 3JG 18 St. Dympnas Road, Dromore, BT78 3JG

By registering your interest, you acknowledge our Privacy Policy
Ask Holmes
Ask Holmes
Let's find your next home

Are you sure you want to reset the chat?

Checking API...