4 Bed Detached House
8 Hunters Chase
Dromore, BT25 1GL
offers over
£375,000
Description
A truly magnificent Georgian style red brick property located within this exclusive cul de sac development just off the Ballymacormick Road. Built by the award-winning builders Porter & Company.
The property with views to the front over countryside, has been finished to an excellent standard and specification throughout its well proportioned accommodation. The patio doors from the Kitchen open onto a brick paved patio to the private rear garden.
Located just minutes from the A1 dual carriageway, the property enjoys a great location for those wishing to commute to as Hillsborough, Sprucefield, Belfast, Banbridge and Newry are all within a short drive away.
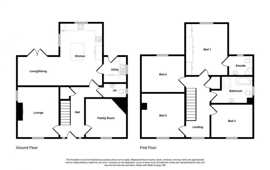
Accommodation comprises:- Reception Hall; Lounge; Family Room; Kitchen/Dining/Family; Utility Room.
First floor: Main Bedroom with Ensuite Shower Room; 3 further spacious Bedrooms; Bathroom.
Specification includes: Gas fired central heating; PVC double glazed windows (sliding sash to the front); Alarm system; Bison slab concrete first floors.
Outside: Tarmacadam driveway to side leading to cavity built Garage (5.6 x 3.1) with roller door; excellent range of high and low level units; single drainer stainless steel sink unit; space for tumble dryer, washing machine and freezer.
Fully enclosed rear garden laid to lawn. Paved patio area. Raised well stocked flowerbed with brick retaining wall. Corner Summerhouse. Light and tap. Outside Sockets.
The property with views to the front over countryside, has been finished to an excellent standard and specification throughout its well proportioned accommodation. The patio doors from the Kitchen open onto a brick paved patio to the private rear garden.
Located just minutes from the A1 dual carriageway, the property enjoys a great location for those wishing to commute to as Hillsborough, Sprucefield, Belfast, Banbridge and Newry are all within a short drive away.
Accommodation comprises:- Reception Hall; Lounge; Family Room; Kitchen/Dining/Family; Utility Room.
First floor: Main Bedroom with Ensuite Shower Room; 3 further spacious Bedrooms; Bathroom.
Specification includes: Gas fired central heating; PVC double glazed windows (sliding sash to the front); Alarm system; Bison slab concrete first floors.
Outside: Tarmacadam driveway to side leading to cavity built Garage (5.6 x 3.1) with roller door; excellent range of high and low level units; single drainer stainless steel sink unit; space for tumble dryer, washing machine and freezer.
Fully enclosed rear garden laid to lawn. Paved patio area. Raised well stocked flowerbed with brick retaining wall. Corner Summerhouse. Light and tap. Outside Sockets.
Rooms
RECEPTION HALL:
Hardwood front door with matching glazed side panel and fan light over. Understairs storage. Ceiling cornice.
CLOAKROOM:
Vanity wash hand basin and w.c. Tiled floor. Wired for wall lights.
LOUNGE: 14' 1" X 11' 6" (4.30m X 3.50m)
Feature fireplace with cast iron inset, granite hearth and marble surround. Cornice. Built-in bookcase.
FAMILY ROOM: 11' 6" X 10' 10" (3.50m X 3.30m)
Feature fireplace of stone effect inset, slate hearth and marble surround with multi-fuel stove. Cornice.
KITCHEN/DINING/LIVING AREA: 24' 3" X 17' 1" (7.40m X 5.20m)
Range of high and low level units with complimenting quartz worktops and upstands, 4 ring ceramic hob and built-in eye-level double oven with concealed extractor over. Inset stainless steel sink unit with Quooker mixer tap with boiling water function. Integrated dishwasher and tall fridge. Larder cupboard. Sink with hot tap. Island unit with breakfast bar, storage and plug sockets. PVC patio doors.
UTILITY ROOM: 7' 7" X 6' 7" (2.30m X 2.00m)
Range of high and low level grey units with complimenting worktop and upstands, single drainer stainless steel sink unit with mixer tap and drainer, plumbed for washing machine. Integrated tall freezer. Tiled floor. PVC half double glazed rear door.
LANDING:
Built-in hotpress. Access to roofspace via folding wooden ladder.
MASTER BEDROOM: 14' 5" X 9' 10" (4.40m X 3.00m)
Wall to wall bespoke range of built-in wardrobes with pelmet spotlighting.
ENSUITE SHOWER ROOM:
Fully tiled corner shower cubicle with drench and telephone shower attachments; vanity wash hand basin; and w.c. Part tiled walls. Tiled floor. Recessed spotlights. Extractor fan.
BEDROOM 2: 12' 6" X 11' 10" (3.80m X 3.60m)
Built-in bookcase.
BEDROOM 3: 11' 10" X 10' 2" (3.60m X 3.10m)
BEDROOM 4: 11' 6" X 9' 2" (3.50m X 2.80m)
BATHROOM:
White suite to include panelled bath with chrome mixer tap and telephone shower attachment; separate shower cubicle; wash hand basin with mixer tap; w.c. Part tiled walls. Recessed spotlights. Extractor fan. Tiled floor. Cornice.
Broadband Speed Availability
Potential Speeds for 8 Hunters Chase
Max Download
2000
Mbps
Max Upload
2000
MbpsThe speeds indicated represent the maximum estimated fixed-line speeds as predicted by Ofcom. Please note that these are estimates, and actual service availability and speeds may differ.
Property Location
Mortgage Calculator
Directions
From the Hillsborough direction on the A1 dual carriageway take the first entrance for Dromore, then first left into Ballymacormick Road then first left into Hunters Chase.
Contact Agent
Contact Dalzell Property (Lisburn)
Request More Information
Requesting Info about...