Contact Agent

Contact Simon Brien (East Belfast)

Contact Simon Brien (East Belfast)

3 Bed Detached Bungalow

24 Kinallen Road

Dromara, Dromore, BT25 2NW

price £365,000
  • Status Sale Agreed
  • Property Type Detached Bungalow
  • Bedrooms 3
  • Receptions 1
  • EPC Rating D55 / D64
  • Stamp Duty
    Higher amount applies when purchasing as buy to let or as an additional property
    £8,250 / £26,500*
  • Typical Mortgage
    Click price to use our mortgage calculator
EPC Rating

Key Features & Description

  • Fully refurbished and extended detached bungalow
  • Three Bedrooms
  • Lounge with multi fuel stove and built in back boiler
  • Bathroom in white suite
  • Oil Fired Central Heating
  • Triple Glazed Doors and Windows
  • Wash House and Log Store
  • Generous site extending to approximately 0.5 acres
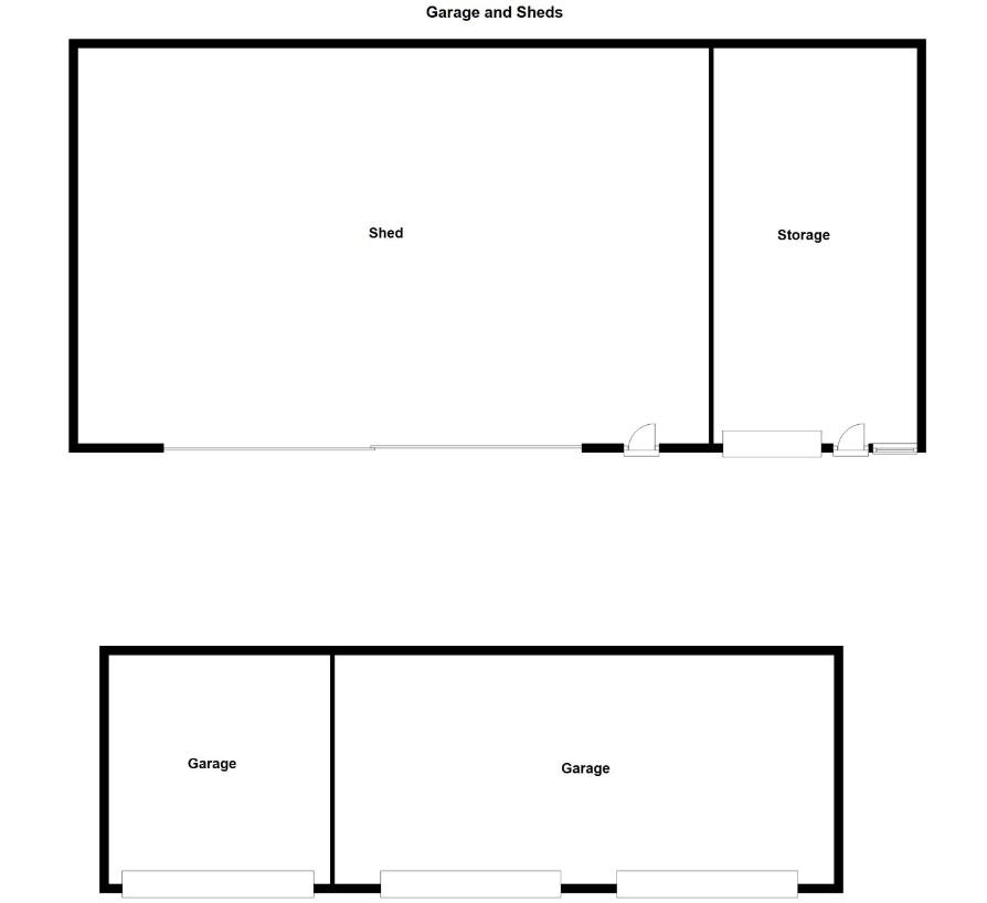
  • Shed
  • Triple Garage with three bays and Roller doors
  • Description
    This is a deceptively spacious detached bungalow occupying a generous site with well-tended gardens extending to approximately 0.5 acres.

    The location is also ideal to take advantage of the close proximity to the A1, Royal Hillsborough, Dromore, Dromara and Banbridge all of which are within a short drive.
    The M1 motorway provides further provincial connections including access to the International Airport, making this a central and accessible location.

    The property itself has been fully refurbished and extended to offer adaptable living space with accommodation comprising, entrance hall open to kitchen and dining area, living room, bathroom and three spacious bedrooms.

    Outside is a superb array of outbuildings suitable for a variety of uses and hobbies. The rear of the dwelling is a Triple Garage with three bays fitted with roller doors all with power and lighting. The large garden enjoys a long driveway running past the wash house and log store and shed.

    All in all a spacious home ready for immediate occupation with great potential for extension (subject to planning permission) in a highly regarded and easily accessible location. Viewing is highly recommended.

    Rooms

    Reception Hall Ceramic tiled floor, open to Kitchen/Dining.
    Kitchen with Dining Area 14'5" X 12'1" (4.40m X 3.68m) Fitted range of high and low level units, 4 ring ceramic hob and under oven, extractor hood over, fridge freezer, stainless steel single drainer with 1 1/2 bowl sink unit with mixer taps. Cosy Toes underfloor heating.
    Bathroom White suite comprising: Oval freestanding bath with mixer taps and shower fitting, low flush WC, pedestal wash hand basin, fully tiled shower cubicle with instant heat electric shower, towel radiator, Cosy Toes underfloor heating.
    Bedroom 1 15'0" X 11'4" (4.57m X 3.45m) With provision for study space, dual aspect.
    Bedroom 2 11'2" X 9'0" (3.40m X 2.74m) Dual aspect.
    Bedroom 3 10'3" X 8'1" (3.12m X 2.46m)
    Lounge 14'1" X 9'9" (4.30m X 2.97m) Multi fuel stove with built in back boiler.
    Garage 17'6" X 16'2" (5.33m X 4.93m) Electric and lighting. EV Charging point.
    Double Garage 37'0" X 16'7" (11.28m X 5.05m) Electric and lighting.
    Wash House 6'7" X 6'6" (2.00m X 1.98m) Plumbed for washing machine, log store.
    Shed 46'9" X 31'0" (14.25m X 9.45m) Twin opening doors.
    Electric and lighting.
    Store 30'0" X 15'1" (9.14m X 4.60m) Electric and lighting.

    Broadband Speed Availability

    Ultrafast

    Potential Speeds for 24 Kinallen Road

    Max Download
    1800
    Mbps
    Max Upload
    1000
    Mbps
    The speeds indicated represent the maximum estimated fixed-line speeds as predicted by Ofcom. Please note that these are estimates, and actual service availability and speeds may differ.

    Property Location

    Show Map

    Mortgage Calculator

    Disclaimer: The following calculations act as a guide only, and are based on a typical repayment mortgage model. Financial decisions should not be made based on these calculations and accuracy is not guaranteed. Always seek professional advice before making any financial decisions.

    Contact Agent

    Contact Simon Brien (East Belfast)

    Contact Simon Brien (East Belfast)

    Request More Information
    Requesting Info about...
    24 Kinallen Road, Dromara, Dromore, BT25 2NW 24 Kinallen Road, Dromara, Dromore, BT25 2NW

    By registering your interest, you acknowledge our Privacy Policy