Contact Agent

Contact Alexander Reid & Frazer

Contact Alexander Reid & Frazer

3 Bed Semi-Detached House

31 Saul Acres

Downpatrick, BT30 6FX

asking price £210,000
  • Status Sale Agreed
  • Property Type Semi-Detached
  • Bedrooms 3
  • Receptions 1
  • Heating Oil
  • EPC Rating B86 / B86
  • Stamp Duty
    Higher amount applies when purchasing as buy to let or as an additional property
    £1,700 / £12,200*
  • Typical Mortgage
    Click price to use our mortgage calculator
EPC Rating

Key Features & Description

Stunning semi-detached home at the entrance of the sought-after Saul Acres development
Modern and stylish interior design throughout - turnkey condition
Bright and spacious living areas with a contemporary layout
Beautifully maintained private garden, ideal for relaxing or entertaining
Lounge with wood burning stove fire
Modern kitchen with dining area
Ground floor wash room
Three bedrooms
Master with ensuite shower room
Prime location on Saul Road, within walking distance of local amenities
Easy access to the scenic Castle Ward estate and the Co. Down coastline
An ideal opportunity to acquire a quality home in this ever-popular area
Description

A Beautiful Semi-Detached Home in an Ever-Popular Development

Welcome to 31 Saul Acres, a beautifully presented semi-detached home offering modern living in one of Downpatrick"s most sought-after developments. Perfectly positioned at the entrance to Saul Acre View, this stunning property combines stylish interior design with an exceptionally well-maintained garden creating a wonderful place to call home.

Inside, you"ll find bright, contemporary living spaces with sleek finishes throughout, reflecting the very best of modern design. The home"s thoughtful layout provides comfort and functionality, ideal for both families and professionals alike.

Step outside and enjoy the lovely private garden, perfectly landscaped for relaxing or entertaining in the warmer months.

Located on the Saul Road, the property is just a short stroll from local amenities including the Spar shop, and only minutes from Downpatrick Golf Club. For those who love the outdoors, the scenic beauty of Castle Ward, the Co. Down coastline, and the popular Barn Restaurant and Bar are all within easy reach.

This is a rare opportunity to acquire a turnkey home in this desirable area beautifully presented, ideally located, and ready to move into.

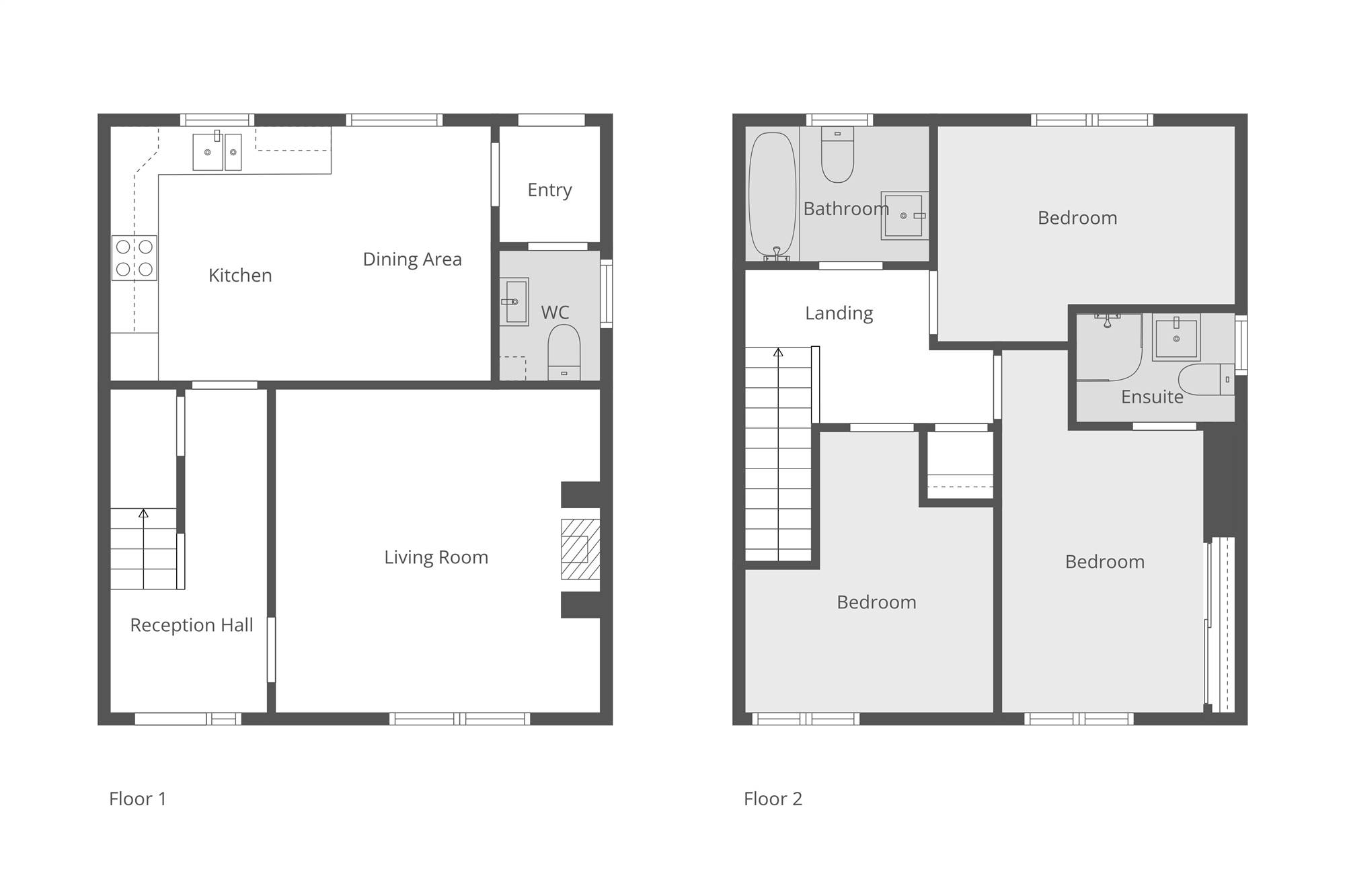
Rooms

HALLWAY: Tiled floor
LOUNGE: 13' 3" X 13' 3" (4.04m X 4.04m) Lounge iwth feature wood burning stove fire
KITCHEN DINING A gorgeous kitchen with dining space, tiled floor and integrated appliances.
WASHROOM Low level wc.
LANDING: Roof space access
MASTER BEDROOM WITH ENSUITE 14' 10" X 8' 3" (4.52m X 2.51m) With built in mirror wardrobes, nest control. Ensuite shower room
BEDROOM (2): 12' 2" X 8' 10" (3.71m X 2.69m)
BEDROOM (3): 11' 6" X 10' 2" (3.51m X 3.10m)
BATHROOM: Neatly presented bathroom with attractive tiling.
A mature site with tarmac driveway, front lawns with hedging. Rear enclosed gardens with paved patio. A spacious site. For details on the common grounds details explained on contract.

Broadband Speed Availability

Ultrafast

Potential Speeds for 31 Saul Acres

Max Download
1800
Mbps
Max Upload
220
Mbps
The speeds indicated represent the maximum estimated fixed-line speeds as predicted by Ofcom. Please note that these are estimates, and actual service availability and speeds may differ.

Property Location

Show Map

Mortgage Calculator

Disclaimer: The following calculations act as a guide only, and are based on a typical repayment mortgage model. Financial decisions should not be made based on these calculations and accuracy is not guaranteed. Always seek professional advice before making any financial decisions.

Directions

.

Contact Agent

Contact Alexander Reid & Frazer

Contact Alexander Reid & Frazer

Request More Information
Requesting Info about...
31 Saul Acres, Downpatrick, BT30 6FX 31 Saul Acres, Downpatrick, BT30 6FX

By registering your interest, you acknowledge our Privacy Policy