24 Rath Cuan Heights
Saul Road, Downpatrick, BT30 6XD

Key Features & Description
24 Rath Cuan Heights, Downpatrick - Elegant Four-Bedroom Detached Home
Situated in the prestigious Rath Cuan Heights development, 24 Rath Cuan Heights is an impressive four-bedroom detached residence, built just five years ago by the highly regarded MG Construction. Known for their quality craftsmanship and attention to detail, MG Construction has delivered a modern family home that perfectly balances comfort, style, and functionality.
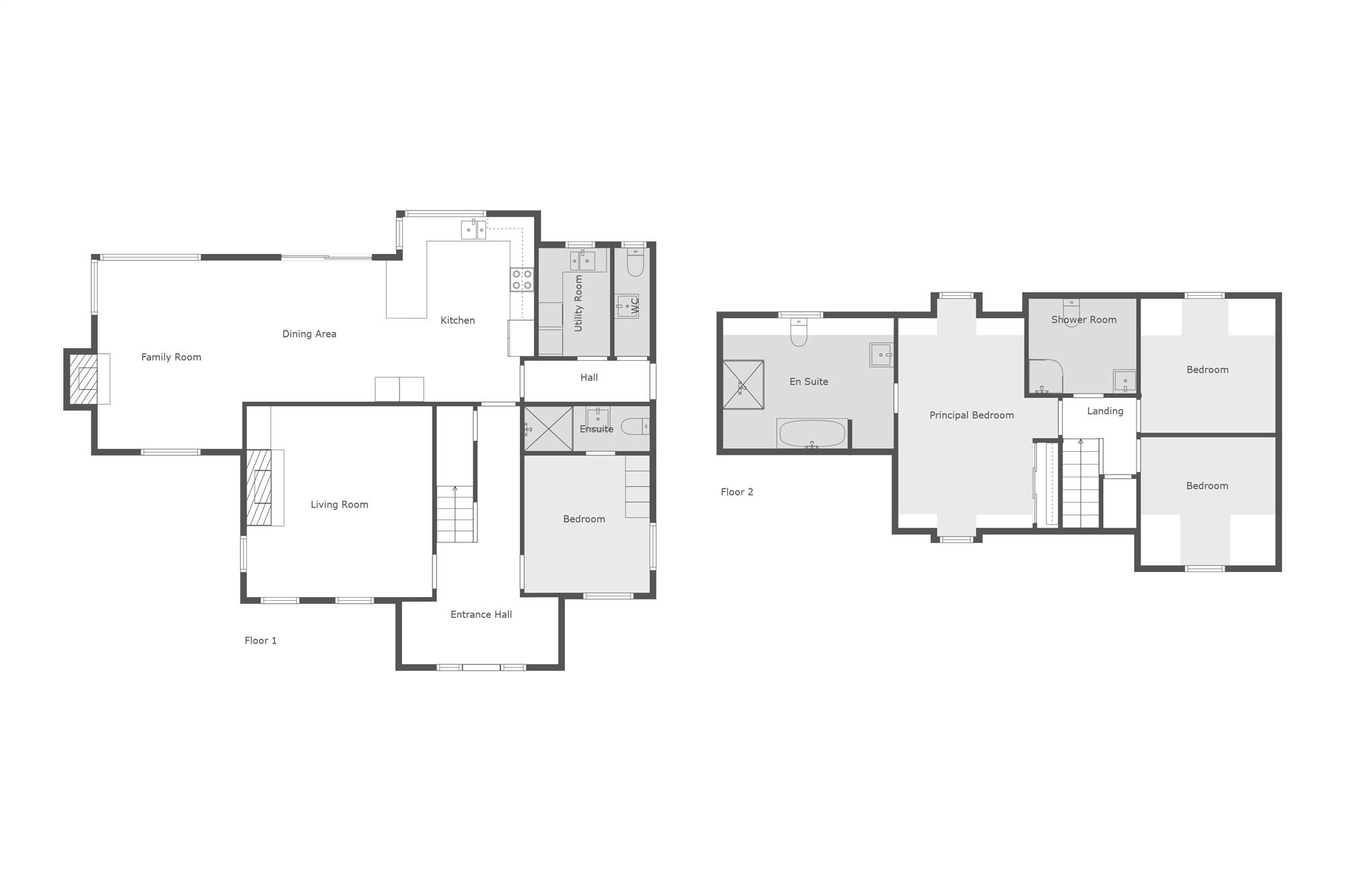
Upon entering the property, you are greeted by a bright and welcoming interior, thoughtfully designed to accommodate contemporary living. The ground floor features a spacious living room that flows effortlessly into an open-plan kitchen and dining area, ideal for both everyday family life and entertaining guests. A separate lounge has an entertainment wall and then guest bedroom (bedroom 4) with ensuite to ground floor. Separate utility room and wash room.
Upstairs, the home offers three further well-proportioned bedrooms, each flooded with natural light and finished to a high standard. The principal bedroom includes built in wardrobes and a spacious en-suite bathroom, while the remaining rooms share a stylish family shower room.
Externally, the property is set on a generous plot with a beautifully landscaped garden that provides a private and peaceful outdoor space, perfect for relaxing or hosting gatherings in the warmer months.
Located just minutes from the centre of Downpatrick, 24 Rath Cuan Heights benefits from easy access to a wide range of local amenities, excellent schools, and transport links. This is a rare opportunity to secure a modern, high-specification home in a well-established and desirable neighbourhood.
Rooms
Property Location

Mortgage Calculator
Directions
Contact Agent

Contact Alexander Reid & Frazer

By registering your interest, you acknowledge our Privacy Policy