Contact Agent

Contact Alexander Reid & Frazer

Contact Alexander Reid & Frazer

4 Bed Detached House

8 Malone Park

Downpatrick, BT30 6UB

offers invited in the region of £265,000
  • Status Sale Agreed
  • Property Type Detached
  • Bedrooms 4
  • Receptions 1
  • Interior Area 99
  • Heating Oil
  • EPC Rating D60 / D60
  • Stamp Duty
    Higher amount applies when purchasing as buy to let or as an additional property
    £3,250 / £16,500*
  • Typical Mortgage
    Click price to use our mortgage calculator
EPC Rating

Key Features & Description

Welcome to 8 Malone Park - A Stunning Family Home in a Prime Location
This recently modernized and extended residence offers the perfect blend of contemporary style and family-friendly functionality.
Spacious lounge with wood burning stove fire
Modern kitchen with dining
Four good size bedrooms
Shower rooms to first and ground floor
Garage
Impeccably kept gardens with excellent patios and entertaining space
Newly replaced windows and doors
Description

Welcome to 8 Malone Park - A Stunning Family Home in a Prime Location

This recently modernized and extended residence offers the perfect blend of contemporary style and family-friendly functionality. Featuring four spacious bedrooms, this home is ideal for families seeking both comfort and convenience.

The garage has been thoughtfully converted into a practical store and utility room, offering additional space for storage and organization. Immaculately maintained both inside and out, the property showcases pristine gardens that enhance its curb appeal.

Inside, you"ll find a generous lounge, perfect for relaxing and entertaining, along with a stylish kitchen and dedicated dining area that creates an inviting space for family meals and gatherings. With no work required, the home is beautifully presented and ready to move into.

Location, Location, Location!
Situated in a highly sought-after neighborhood, 8 Malone Park offers an enviable position for families. Excellent local schools and a variety of classes are within easy reach, making it an ideal location for family life.

With nothing left to do, this home is ready to welcome you - an exceptional choice for those looking for the perfect family home.

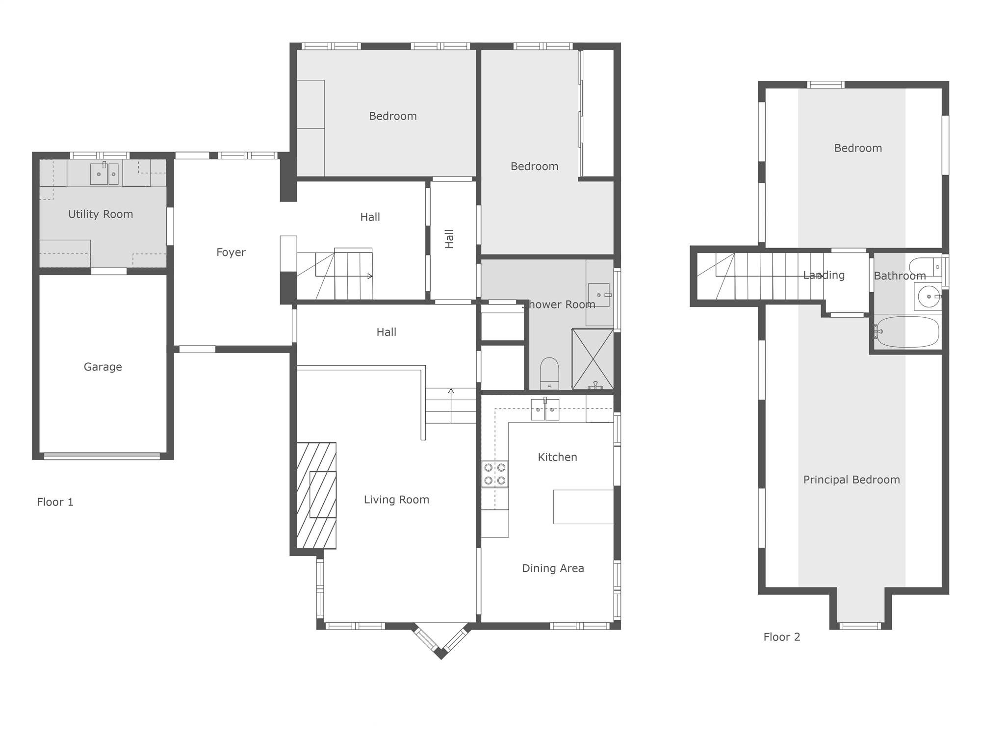
Rooms

HALLWAY: Bright and spacious hall with access to first floor. Newly fitted composite front door.
LOUNGE: 17' 7" X 13' 4" (5.35m X 4.05m) Generous lounge with wood burning stove fireplace, laminate style floor, corner feature windows and double doors to the kitchen
KITCHEN: 15' 2" X 8' 11" (4.61m X 2.72m) High specification kitchen with high and low units to comprise integrated gas hob with oven, integrated firdge/freezer, wood worktop, breakfast bar and dining space. High ceilings and lots of natural light and dining space
UTILITY ROOM: 9' 3" X 6' 12" (2.81m X 2.12m) Accessed from the garage the utility room is plumbed for washing machine, stainless steel sink.
BEDROOM (1): Built in wardrobes, laminate style floor and radiator
BEDROOM (2): 13' 4" X 9' 11" (4.07m X 3.03m) Built in wardrobe and radiator
SHOWER ROOM: Modern shower room with fitted units, corner shower, wash hand basin and low level WC
HALLWAY: Access to first floor
BEDROOM 3 18' 2" X 12' 4" (5.54m X 3.76m) Eaves storage and built in wards
BEDROOM 4 Radiator
SHOWER ROOM: Shower, low lwvel wc and wash hand basin
Neatly presented gardens surrounding the home to comprise tarmac driveway, rear enclosed gardens with decking area which has lighting and electric, further fitted seating area and patio. Enclosed fully and with fencing. A perfect place to spend the summer months. Oil tank, outside tap, sockets and lighting.
GARAGE: Excellent storage room and newly fitted garate door

Broadband Speed Availability

Ultrafast

Potential Speeds for 8 Malone Park

Max Download
1800
Mbps
Max Upload
1000
Mbps
The speeds indicated represent the maximum estimated fixed-line speeds as predicted by Ofcom. Please note that these are estimates, and actual service availability and speeds may differ.

Property Location

Show Map

Mortgage Calculator

Disclaimer: The following calculations act as a guide only, and are based on a typical repayment mortgage model. Financial decisions should not be made based on these calculations and accuracy is not guaranteed. Always seek professional advice before making any financial decisions.

Directions

.

Contact Agent

Contact Alexander Reid & Frazer

Contact Alexander Reid & Frazer

Request More Information
Requesting Info about...
8 Malone Park, Downpatrick, BT30 6UB 8 Malone Park, Downpatrick, BT30 6UB

By registering your interest, you acknowledge our Privacy Policy