Contact Agent

Contact Ulster Property Sales (UPS) Downpatrick

Contact Ulster Property Sales (UPS) Downpatrick

4 Bed Detached House

8B Old Belfast Road

Downpatrick, BT30 6SG

offers around £209,950
  • Status For Sale
  • Property Type Detached
  • Bedrooms 4
  • Receptions 1
  • Bathrooms 3
  • EPC Rating D65 / C70 -
  • Stamp Duty
    Higher amount applies when purchasing as buy to let or as an additional property
    £1,699 / £12,197*
  • Typical Mortgage
    Click price to use our mortgage calculator
EPC Rating

Key Features & Description

Detached House
Ground floor bedroom with ensuite
Open plan first floor lounge,kitchen and dining area
Master bedroom ensuite
Garage
Enclosed rear gardens
Views over Downpatrick Cricket club
Description
This superbly located property overlooks Downpatrick Cricket Club and is ideally positioned to enjoy a range of scenic walks of the Quoile River. Just minutes from the Belfast Road roundabout, it offers excellent convenience for commuting to Belfast.

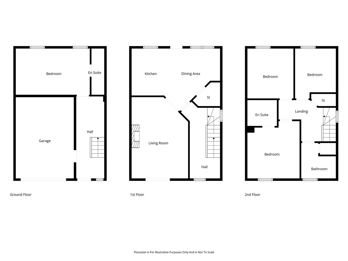
The ground floor features an integrated garage, access to the main house, and a generously sized double bedroom complete with ensuite perfect for guests or flexible living.

On the first floor, you´ll find a bright and spacious open-plan kitchen and dining area, a separate storage room, and a welcoming lounge with an open fire, ideal for cosy evenings with Juliet balcony.

The second floor comprises three well-proportioned bedrooms, including a master with ensuite, along with a family bathroom.

Rooms

Ground Floor Tiled flooring.
Integrated Garage Roller door. Power and light.
Double Bedroom 15'9" X 10'2" (4.80m X 3.10m) Wooden flooring.
Ensuite White low flush w.c, wash hand basin.
Stairs to First Floor
Lounge 17'11" X 12'6" (5.46m X 3.80m) Wooden flooring. Feature fireplace. Juliet balcony with Views over Downpatrick Cricket Club.
Kitchen / Dining 19'0" X 10'0" (5.80m X 3.05m) High and low level units with integrated dishwasher, fridge freezer and oven and hob. Stainless steel sink unit. Tiled at splashback. Wooden flooring. Door to rear garden,.
Storage cupboard
Stairs to Second Floor
Master bedroom with Ensuite 11'5" X 11'9" (3.47m X 3.57m) Views to front. Ensuite with pedestal wash hand basin, low flush w.c and shower cubicle with wall shower. Tiled floor. Panelled at splashback.
Hotpress
Bedroom 3 7'9" X 13'4" (2.37m X 4.07m)
Bedroom 4 8'7" X 9'7" (2.62m X 2.92m)
Family Bathroom 7'10" X 6'11" (2.40m X 2.10m) Panelled bath with hand shower, low flush w.c and wash hand basin. Tiled floor. Tiled at splashback.
Outside Paved patio area leading to gardens in lawn fully enclosed.

Broadband Speed Availability

Ultrafast

Potential Speeds for 8b Old Belfast Road

Max Download
1800
Mbps
Max Upload
300
Mbps
The speeds indicated represent the maximum estimated fixed-line speeds as predicted by Ofcom. Please note that these are estimates, and actual service availability and speeds may differ.

Property Location

Show Map

Mortgage Calculator

Disclaimer: The following calculations act as a guide only, and are based on a typical repayment mortgage model. Financial decisions should not be made based on these calculations and accuracy is not guaranteed. Always seek professional advice before making any financial decisions.

Contact Agent

Contact Ulster Property Sales (UPS) Downpatrick

Contact Ulster Property Sales (UPS) Downpatrick

Request More Information
Requesting Info about...
8B Old Belfast Road, Downpatrick, BT30 6SG 8B Old Belfast Road, Downpatrick, BT30 6SG

By registering your interest, you acknowledge our Privacy Policy
Ask Holmes
Ask Holmes
Let's find your next home

Are you sure you want to reset the chat?

Checking API...