Contact Agent

Contact Ulster Property Sales (UPS) Downpatrick

Contact Ulster Property Sales (UPS) Downpatrick

Site

30m south of, 13 Sheepland Road

Ardglass, Downpatrick, BT30 7SN

offers around £200,000
  • Status For Sale
  • Property Type Site
  • Stamp Duty
    Higher amount applies when purchasing as buy to let or as an additional property
    £1,500 / £11,500*
  • Typical Mortgage
    Click price to use our mortgage calculator

Description

An outstanding building site at Sheepland Road, Ardglass

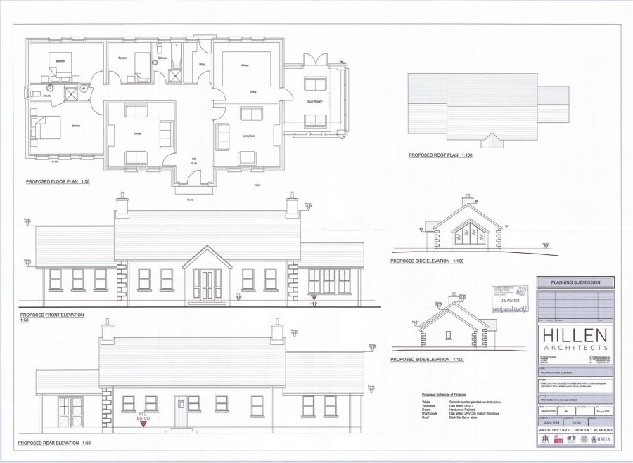
This very special building site of circa 0.5 acres enjoys uninterrupted Irish Sea views with the Isle of Mann framed on the horizon. Planning permission has been approved for a detached bungalow under reference LA07/2022/1347/F with specific conditions as per attached permission.

There are services adjacent to the site.

Broadband Speed Availability

Ultrafast

Potential Speeds for 13 Sheepland Road

Max Download
1800
Mbps
Max Upload
1000
Mbps
The speeds indicated represent the maximum estimated fixed-line speeds as predicted by Ofcom. Please note that these are estimates, and actual service availability and speeds may differ.

Property Location

Show Map

Mortgage Calculator

Disclaimer: The following calculations act as a guide only, and are based on a typical repayment mortgage model. Financial decisions should not be made based on these calculations and accuracy is not guaranteed. Always seek professional advice before making any financial decisions.

Contact Agent

Contact Ulster Property Sales (UPS) Downpatrick

Contact Ulster Property Sales (UPS) Downpatrick

Request More Information
Requesting Info about...
30m south of, 13 Sheepland Road, Ardglass, Downpatrick, BT30 7SN 30m south of, 13 Sheepland Road, Ardglass, Downpatrick, BT30 7SN

By registering your interest, you acknowledge our Privacy Policy
Ask Holmes
Ask Holmes
Let's find your next home

Are you sure you want to reset the chat?

Checking API...