Contact Agent
Contact Templeton Robinson (Lisburn Road)
2 Bed End Terrace
70 Blythe Street
Donegall Road, Belfast, BT12 5HW
offers over
£139,950
Key Features & Description
Excellent end terrace in a convenient location within close proximity to Belfast City Centre
Spacious living room
Fully fitted kitchen with dining area
Downstairs shower room
Two bright bedrooms
Modern bathroom suite
Gas heating; Double glazing throughout
Enclosed rear garden and ample on-street car parking
Perfect first-time buyer or investment opportunity
Description
An excellent end terrace house in a prime location conveniently positioned for those seeking ease of access to the city centre for both work and social life and within walking distance to Belfast City Hospital, Grand Central Station, Queens University and Blythefield Primary School.
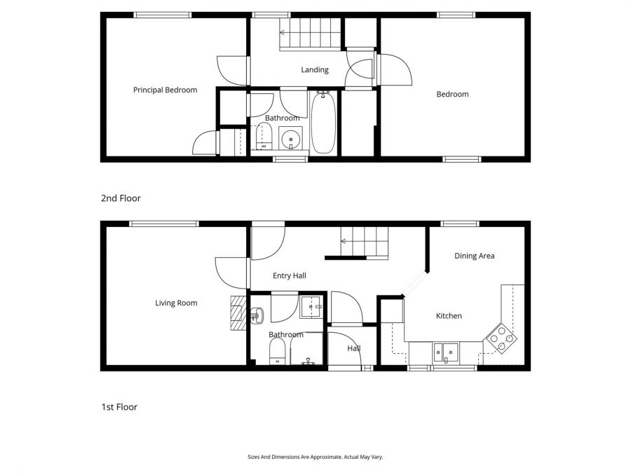
The property offers generous accommodation that well maintained throughout. Briefly comprising on the ground floor a spacious living room, fitted kitchen with dining area and downstairs shower room. On the first floor are two bright bedrooms and a contemporary bathroom suite.
In addition the property benefits from uPVC framed double glazed windows, gas fired central heating and enclosed rear garden. Offering that much more with its extremely convenient location and overall accommodation, this excellent home will have wide ranging appeal therefore early viewing is highly recommended.
An excellent end terrace house in a prime location conveniently positioned for those seeking ease of access to the city centre for both work and social life and within walking distance to Belfast City Hospital, Grand Central Station, Queens University and Blythefield Primary School.
The property offers generous accommodation that well maintained throughout. Briefly comprising on the ground floor a spacious living room, fitted kitchen with dining area and downstairs shower room. On the first floor are two bright bedrooms and a contemporary bathroom suite.
In addition the property benefits from uPVC framed double glazed windows, gas fired central heating and enclosed rear garden. Offering that much more with its extremely convenient location and overall accommodation, this excellent home will have wide ranging appeal therefore early viewing is highly recommended.
Rooms
HALLWAY:
uPVC front door, laminate wood strip flooring.
LIVING ROOM: 12' 1" X 11' 7" (3.68m X 3.53m)
Laminate wood strip flooring.
KITCHEN: 12' 5" X 12' 2" (3.78m X 3.71m)
Range of high and low level units, built-in ovens and extractor fan, sink with mixer tap, plumbed for dishwasher and washing machine, laminate work surfaces, ceramic tiled floor.
SHOWER ROOM:
Low flush wc, wash hand basin, bidet, walk-in corner shower cubicle, ceramic tiled floor, part tiled walls, wall hung vanity unit.
REAR HALLWAY:
Ceramic tiled floor, access to rear garden.
LANDING:
Carpeted, access to roofspace via Slingsby type ladder, two storage cupboards.
BATHROOM:
Low flush wc, wash hand basin, bath with overhead shower, boiler cupboard, vinyl flooring, mirrored vanity unit.
BEDROOM (1): 12' 2" X 12' 1" (3.71m X 3.68m)
Vinyl flooring.
BEDROOM (2): 12' 4" X 11' 10" (3.76m X 3.61m)
Vinyl flooring, storage cupboard.
Enclosed rear garden with paved patio.
Broadband Speed Availability
Potential Speeds for 70 Blythe Street
Max Download
1800
Mbps
Max Upload
220
MbpsThe speeds indicated represent the maximum estimated fixed-line speeds as predicted by Ofcom. Please note that these are estimates, and actual service availability and speeds may differ.
Property Location
Mortgage Calculator
Directions
From the Lisburn Road, turn left onto Sandy Row. Blythe Street is second turn on the left.
Contact Agent
Contact Templeton Robinson (Lisburn Road)
Request More Information
Requesting Info about...
70 Blythe Street, Donegall Road, Belfast, BT12 5HW
By registering your interest, you acknowledge our Privacy Policy
By registering your interest, you acknowledge our Privacy Policy