Contact Agent

Contact Templeton Robinson (Lisburn Road)

Contact Templeton Robinson (Lisburn Road)

2 Bed End Terrace

7 Bentham Drive

Donegall Road, Belfast, BT12 5NS

offers over £120,000
  • Status For Sale
  • Property Type End Terrace
  • Bedrooms 2
  • Receptions 1
  • Heating Gas
  • EPC Rating D68 / C70
  • Stamp Duty
    Higher amount applies when purchasing as buy to let or as an additional property
    £0 / £6,000*
  • Typical Mortgage
    Click price to use our mortgage calculator
EPC Rating

Key Features & Description

Spacious end terrace property in a popular and most convenient location, just off the Donegall Road
Spacious lounge
Bright kitchen with dining area
Two well proportioned bedrooms
White bathroom suite
Gas heating / Double glazing throughout
Enclosed rear and side yard
Excellent first-time buyer or investor opportunity, Early viewing highly recommended
Description
Spacious, end-terrace property in an extremley convenient location just off the Donegall Road. Within close proximity to Belfast City Centre, Royal and City Hospitals and a short distance to Queens University. The property comprises a bright living room, good sized kitchen with dining area, two well proportioned bedrooms and a white bathroom suite. Outside is an enclosed rear and side courtyard. Additional features include gas heating and double glazing throughout. Offering an excellent first-time buyer or investor opportunity, early viewing is highly recommended.

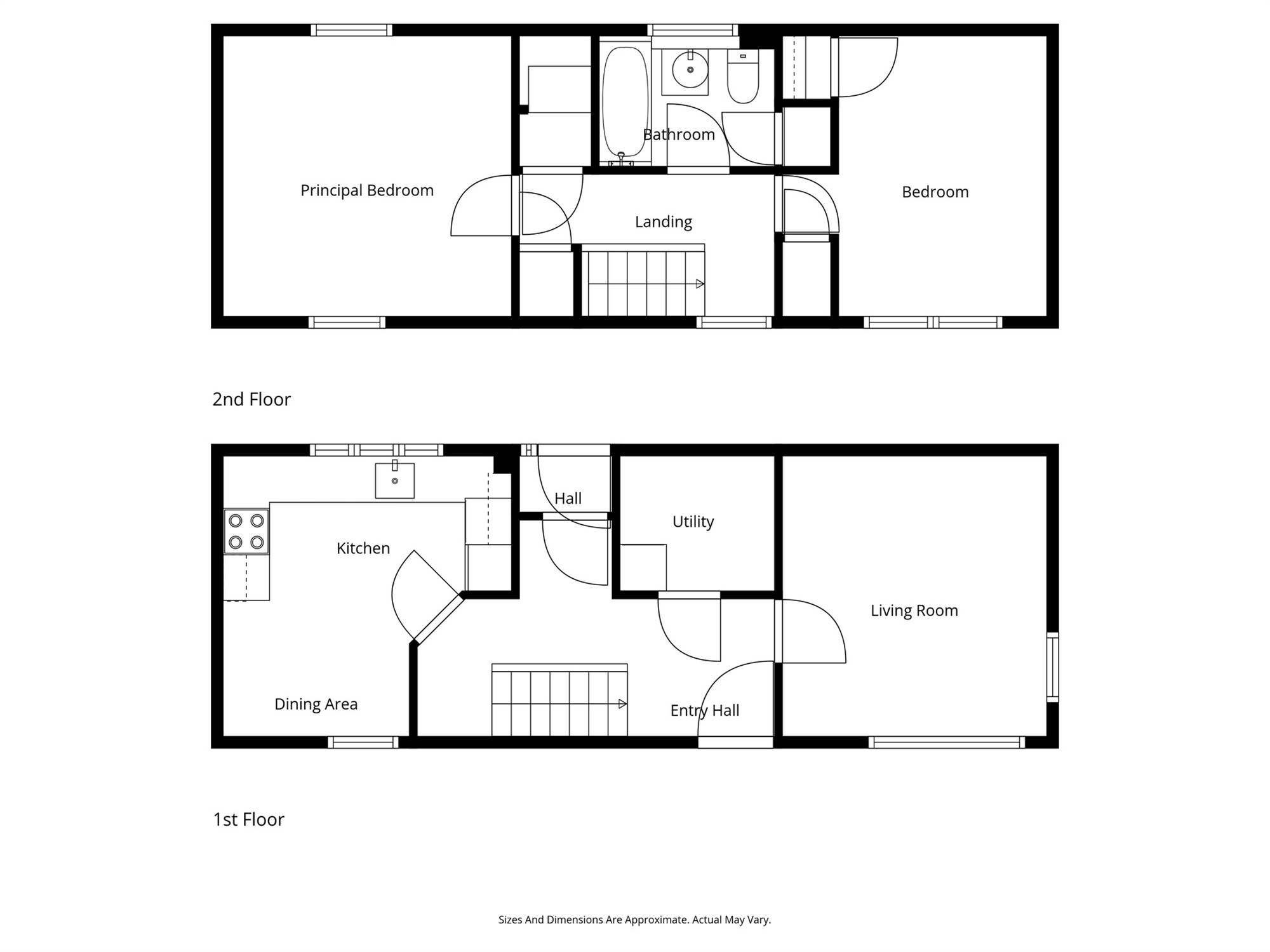
Rooms

HALLWAY: Upvc front foor, laminate wood strip flooring, storage cupboard.
LIVING ROOM: 12' 1" X 11' 6" (3.68m X 3.51m) Laminate wood strip flooring.
KITCHEN: 12' 7" X 12' 1" (3.84m X 3.68m) Range of high and low level units, stainless steel sink with mixer tap, plumbed for washing machine, laminate work surfaces, laminate wood strip flooring.
LANDING: Carpeted, 2 x storage cupboards.
BATHROOM: 7' 4" X 5' 8" (2.24m X 1.73m) Low flush WC, wash hand basin, bath with overhead shower, vinyl flooring, extractor fan, hotpress cupboard.
BEDROOM (1): 12' 5" X 12' 2" (3.78m X 3.71m) Carpeted.
BEDROOM (2): 12' 2" X 9' 0" (3.71m X 2.74m) Carpeted, built in wardrobes.
Enclosed rear yard with paved patio area, outside tap. Side garden.

Broadband Speed Availability

Ultrafast

Potential Speeds for 7 Bentham Drive

Max Download
1800
Mbps
Max Upload
220
Mbps
The speeds indicated represent the maximum estimated fixed-line speeds as predicted by Ofcom. Please note that these are estimates, and actual service availability and speeds may differ.

Property Location

Show Map

Mortgage Calculator

Disclaimer: The following calculations act as a guide only, and are based on a typical repayment mortgage model. Financial decisions should not be made based on these calculations and accuracy is not guaranteed. Always seek professional advice before making any financial decisions.

Directions

Driving on Donegall Road towards broadway, turn right into Eureka Drive to Felt Street. Turn right and Bentham Drive is the first on the left.

Contact Agent

Contact Templeton Robinson (Lisburn Road)

Contact Templeton Robinson (Lisburn Road)

Request More Information
Requesting Info about...
7 Bentham Drive, Donegall Road, Belfast, BT12 5NS 7 Bentham Drive, Donegall Road, Belfast, BT12 5NS

By registering your interest, you acknowledge our Privacy Policy