Contact Agent
Contact John Minnis Estate Agents (Donaghadee)
3 Bed Semi-Detached House
124 Killaughey Road
Donaghadee, BT21 0BQ
offers around
£169,950
Key Features & Description
Attractive Semi Detached Home with No Onward Chain
Convenient Location in Popular Coastal Town of Donaghadee
Property Requires Some Updating but Offers Huge Potential
Open Plan Living Room with Open Fire and Dining Area
Fitted Kitchen
Three Bedrooms, One of Which is on the Ground Floor
Bedroom Two with Walk-in Storage Area
Ground Floor Shower Room with Three Piece Suite
Oil Fired Central Heating
uPVC Double Glazed Windows, Guttering and Soffits
Well Presented Front Garden in Lawns
Driveway with Parking
Detached Garage
Rear Garden in Lawns with Southerly Aspect Making it Ideal for Children at Play, Outdoor Entertaining or Enjoying the Sun
Rear Garden Also Has Ample Room to Extend Subject to Necessary Approvals
In Close Proximity to Many Amenities Including Locally Owned Shops, Cafes and Restaurants and the Iconic Lighthouse and Harbour
Donaghadee Offers a Variety of Activities for the Sporting Enthusiast Such as Sea Swimming, Golf, Sailing, Cricket, Hockey, Rugby, Tennis, Football and Bowls
Demand Anticipated to be High and to a Wide Range of Prospective Purchasers Including First Time Buyers, Young Professionals, Families and Those Looking to Downsize
Early Viewing Essential
Description
Located in the extremely popular and picturesque coastal town of Donaghadee here is an ideal opportunity to purchase an attractive semi detached home with no onward chain. Whilst requiring some updating this will allow the lucky new owners to come in and put their own stamp on what will be a fantastic home.
The accommodation is flexible comprising good size living room with open fire and dining area, kitchen, bedroom and shower room on the ground floor. Upstairs there are two well proportioned bedrooms, one of which has a large walk-in storage area. Outside you have a well presented front garden in lawns, paved forecourt and fantastic rear garden in lawns with southerly aspect making it ideal for children at play, outdoor entertaining or enjoying the sun but also provides ample room to extend subject to necessary approvals. Other benefits include oil fired central heating, uPVC double glazed windows, guttering and soffits and detached garage.
This property is conveniently positioned with easy access to the thriving centre of Donaghadee and its amenities such as locally owned shops, cafes and restaurants and of course the iconic lighthouse and harbour. Donaghadee offers a variety of activities for the sporting enthusiast which include sea swimming, golf, sailing, cricket, hockey, rugby, football, tennis and bowls.
With all this fine property has to offer demand is anticipated to be high and to a wide range of prospective purchasers including first time buyers, young professionals, those looking to downsize and investors. A viewing is thoroughly recommended at your earliest opportunity so as to appreciate it in its entirety.
Located in the extremely popular and picturesque coastal town of Donaghadee here is an ideal opportunity to purchase an attractive semi detached home with no onward chain. Whilst requiring some updating this will allow the lucky new owners to come in and put their own stamp on what will be a fantastic home.
The accommodation is flexible comprising good size living room with open fire and dining area, kitchen, bedroom and shower room on the ground floor. Upstairs there are two well proportioned bedrooms, one of which has a large walk-in storage area. Outside you have a well presented front garden in lawns, paved forecourt and fantastic rear garden in lawns with southerly aspect making it ideal for children at play, outdoor entertaining or enjoying the sun but also provides ample room to extend subject to necessary approvals. Other benefits include oil fired central heating, uPVC double glazed windows, guttering and soffits and detached garage.
This property is conveniently positioned with easy access to the thriving centre of Donaghadee and its amenities such as locally owned shops, cafes and restaurants and of course the iconic lighthouse and harbour. Donaghadee offers a variety of activities for the sporting enthusiast which include sea swimming, golf, sailing, cricket, hockey, rugby, football, tennis and bowls.
With all this fine property has to offer demand is anticipated to be high and to a wide range of prospective purchasers including first time buyers, young professionals, those looking to downsize and investors. A viewing is thoroughly recommended at your earliest opportunity so as to appreciate it in its entirety.
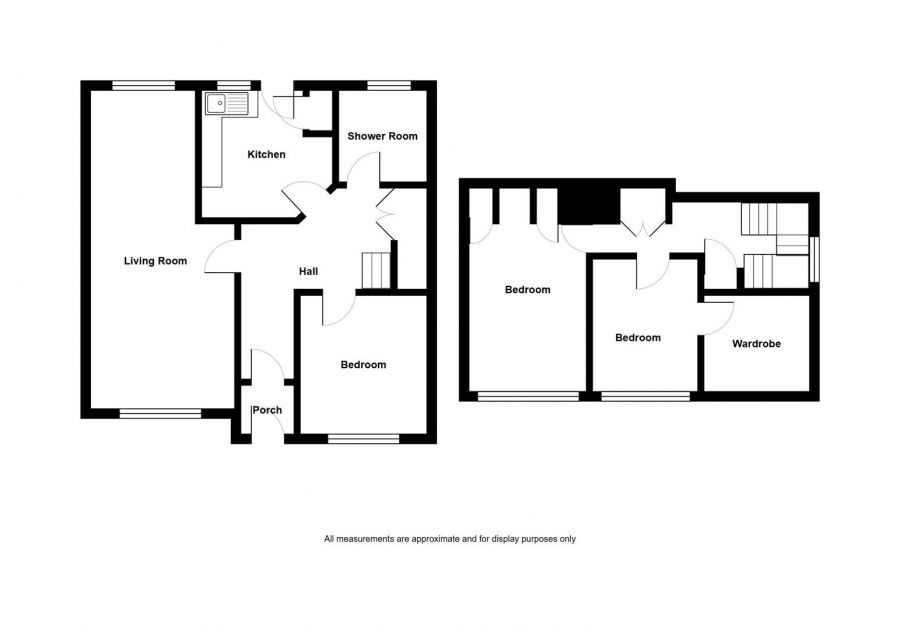
Rooms
uPVC double glazed front door with uPVC double glazed side panel to enclosed entrance porch.
ENCLOSED ENTRANCE PORCH:
Fully tiled floor, glazed internal door and side panel to reception hall.
ENTRANCE HALL:
Storage under stairs.
LIVING ROOM: 23' 7" X 9' 9" (7.19m X 2.97m)
at widest points narrowing to 7"10â
Brick fireplace, tiled hearth, open fire, dining area, service hatch to kitchen.
KITCHEN: 9' 10" X 9' 6" (3.00m X 2.90m)
at widest points
Range of high and low level units, granite effect work surfaces, single bowl single drainer stainless steel sink unit with mixer tap, space for cooker, plumbed for washing machine, space for fridge, larder, service hatch to dining area, part tiled walls, uPVC double glazed door to outside.
BEDROOM (3): 10' 0" X 9' 0" (3.05m X 2.74m)
SHOWER ROOM:
Three piece suite comprising built-in shower cubicle, pedestal wash hand basin, low flush WC, part tiled walls.
STAIRS TO FIRST FLOOR
LANDING:
Shelved hotpress with lagged copper cylinder, storage cupboard, access to roofspace.
BEDROOM (1): 13' 0" X 9' 0" (3.96m X 2.74m)
at widest points
BEDROOM (2): 9' 10" X 8' 0" (3.00m X 2.44m)
Good size storage cupboard.
Front garden in lawns with flowerbeds in plants and shrubs, paved patio forecourt, tarmac driveway with parking leading to detached garage.
DETACHED GARAGE: 20' 0" X 8' 10" (6.10m X 2.69m)
at widest points
Up and over door, power, light.
Fantastic rear garden in lawns with outside tap, oil fired boiler in boiler house, uPVC oil tank and southerly aspect making it ideal for children at play, outdoor entertaining or enjoying the sun, also provides ample room to extend subject to necessary approvals.
Broadband Speed Availability
Potential Speeds for 124 Killaughey Road
Max Download
1800
Mbps
Max Upload
220
MbpsThe speeds indicated represent the maximum estimated fixed-line speeds as predicted by Ofcom. Please note that these are estimates, and actual service availability and speeds may differ.
Property Location
Mortgage Calculator
Directions
Heading out of Donaghadee along Killaughey Road number 124 is on your left just before Rosepark.
Contact Agent
Contact John Minnis Estate Agents (Donaghadee)
Request More Information
Requesting Info about...
124 Killaughey Road, Donaghadee, BT21 0BQ
By registering your interest, you acknowledge our Privacy Policy
By registering your interest, you acknowledge our Privacy Policy