Contact Agent
Contact John Minnis Estate Agents (Donaghadee)
4 Bed Detached House
11 Barn Hill
Donaghadee, BT21 0QA
offers around
£425,000
Key Features & Description
Outstanding Detached Split Level Bungalow on Extensive Site Backing onto the Golf Course
Bright, Spacious and Flexible Accommodation Throughout
Large Lounge with Sea Glimpses
Separate Dining Room Overlooking the Delightful Rear Garden
Modern High Gloss Kitchen with Built-in Breakfast Table Overlooking the Delightful Rear Garden
Four Well Appointed Double Bedrooms
Master with Ensuite
Family Bathroom
Home Office / Utility Room with Access to Garden
Double Integral Garage with Remote Control Door
Garden Room with Separate Entrance
Tarmac Driveway Providing Generous Off-Street Parking for Several Cars, Boats or Caravans
Well Tended Mature Rear Garden Laid in Lawns with Southerly Aspect and Outlook to Golf Course
Popular and Highly Regarded Residential Location
Oil Fired Central Heating and uPVC Double Glazing
No Onward Chain
Early Viewing Strongly Recommended to Fully Appreciate all that is on Offer
Description
Ideally located, in the extremely popular and highly regarded residential area just off the prestigious Warren Road, this is an ideal opportunity to purchase an outstanding detached split level bungalow on an extensive site backing onto the golf course.
The accommodation is bright, spacious and flexible. On the ground level there is a large lounge with sea glimpses, separate dining room and modern kitchen with breakfast table overlooking the delightful rear garden. There are also four double bedrooms, master with en suite, and family bathroom. On the lower level there is a large utility room, integral garage with remote control door and home office / utility room and garden room with separate entrance. Outside does not disappoint either. The extensive site benefits from off-street parking for several cars, boat or caravans. The stunning rear garden is laid in lawns with mature flowerbeds and southerly aspect making this an ideal space for children at play, outdoor entertaining or enjoying the sun.
Conveniently positioned within walking distance of Donaghadee"s thriving town centre with its many amenities such as golf course, shops, cafes, restaurants, picturesque lighthouse and harbour easily accessible, as are Bangor and Groomsport. With all this superb home has to offer we expect demand to be high and to a wide range of prospective purchasers including the growing family or semi retired. Properties of this calibre rarely make it to the open market and as a result we expect demand to be high and recommend a viewing at your earliest opportunity.
Ideally located, in the extremely popular and highly regarded residential area just off the prestigious Warren Road, this is an ideal opportunity to purchase an outstanding detached split level bungalow on an extensive site backing onto the golf course.
The accommodation is bright, spacious and flexible. On the ground level there is a large lounge with sea glimpses, separate dining room and modern kitchen with breakfast table overlooking the delightful rear garden. There are also four double bedrooms, master with en suite, and family bathroom. On the lower level there is a large utility room, integral garage with remote control door and home office / utility room and garden room with separate entrance. Outside does not disappoint either. The extensive site benefits from off-street parking for several cars, boat or caravans. The stunning rear garden is laid in lawns with mature flowerbeds and southerly aspect making this an ideal space for children at play, outdoor entertaining or enjoying the sun.
Conveniently positioned within walking distance of Donaghadee"s thriving town centre with its many amenities such as golf course, shops, cafes, restaurants, picturesque lighthouse and harbour easily accessible, as are Bangor and Groomsport. With all this superb home has to offer we expect demand to be high and to a wide range of prospective purchasers including the growing family or semi retired. Properties of this calibre rarely make it to the open market and as a result we expect demand to be high and recommend a viewing at your earliest opportunity.
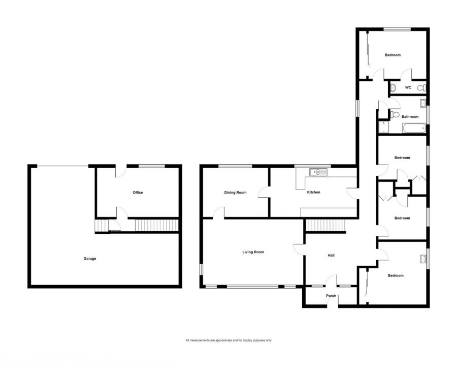
Rooms
uPVC double glazed front door.
RECEPTION PORCH
With ceramic tiled floor, inner door to spacious reception hall.
SPACIOUS RECEPTION HALL:
With cornice ceiling.
LIVING ROOM: 22' 11" X 14' 11" (6.98m X 4.55m)
With cornice ceiling, large picture windows, dual aspect and sea glimpses.
DINING ROOM: 14' 3" X 10' 6" (4.34m X 3.20m)
With large picture window.
KITCHEN: 18' 0" X 10' 1" (5.49m X 3.07m)
With breakfast table, excellent range of high and low level high gloss units with laminate work surfaces, space for cooker, space for fridge freezer and plumbed for dishwasher, built-in breakfast table with outlook to rear garden.
BEDROOM (1): 15' 6" X 13' 6" (4.72m X 4.11m)
With built-in wardrobe.
BEDROOM (2): 10' 2" X 9' 4" (3.10m X 2.84m)
With built-in wardrobe.
BEDROOM (3): 10' 4" X 9' 3" (3.15m X 2.82m)
With built-in wardrobe.
BEDROOM (4): 12' 5" X 10' 5" (3.78m X 3.18m)
With outlook to rear garden. Built in wardrobe.
EN SUITE
With low flush WC and pedestal wash hand basin.
BATHROOM:
UTILITY ROOM: 17' 9" X 10' 9" (5.41m X 3.28m)
Currently used as home office, with oil fired boiler, plumbed for washing machine, uPVC double glazed door to rear garden.
INTEGRAL GARAGE: 32' 8" X 25' 5" (9.96m X 7.75m)
L-shaped
With electric up and over door, oil tank, light and power.
GARDEN ROOM OR HOME OFFICE 14' 8" X 10' 3" (4.47m X 3.12m)
With separate entrance.
Tarmac driveway providing parking for several cars, boats or caravans, extensive mature rear garden laid in lawns with southerly aspect, flowerbeds in plants and shrubs, outlook to golf course.
Broadband Speed Availability
Potential Speeds for 11 Barn Hill
Max Download
1000
Mbps
Max Upload
100
MbpsThe speeds indicated represent the maximum estimated fixed-line speeds as predicted by Ofcom. Please note that these are estimates, and actual service availability and speeds may differ.
Property Location
Mortgage Calculator
Directions
Heading into Donaghadee, along the Warren Road, Barn Hill is the last turn on your right just before the golf course.
Contact Agent
Contact John Minnis Estate Agents (Donaghadee)
Request More Information
Requesting Info about...