Contact Agent
Contact John Minnis Estate Agents (Donaghadee)
4 Bed End Terrace
105 Millisle Road
Donaghadee, BT21 0LA
offers around
£394,950
Key Features & Description
Attractive Substantial End Terrace Property with Stunning Views Over Irish Sea and Beyond to Scotland
Versatile and Flexible Accommodation
Well Presented Throughout
Ground Floor Living Room with Stunning Views, Painted Floorboards, Attractive Fireplace, Cast Iron Wood Burning Stove, Bay Window with Built-in Seating and Dining Area
Fitted Kitchen with Range of Integrated Appliances
Separate Utility Area
Currently Used as Four Bedrooms with the Main Bedroom and Bedroom Two Having Stunning Sea Views
First Floor Main Bedroom Could Potentially Also be Used as a Drawing Room with its Attractive Fireplace
First Floor Bathroom with Four Piece Suite to Include Bath and Separate Shower
Ground Floor Shower Room
Phoenix Gas Heating
uPVC Double Glazed Windows
Magnificent Corner Site with Gardens in Lawns to Front, Side and Rear
Driveway and Parking Area to Rear with Space for Cars, Caravans, Boats, Horse Box, etc
Driveway and Rear Garden Can be Fully Enclosed and With its Excellent Degree of Privacy, Patio Areas and Westerly Aspect
Large Detached Garage with Electric Remote Roller Door
Garden Room with Light, Power, Sea Views and Shower Room
Garden Room Ideal as Potential Holiday Let, Summer House, Entertaining Space or Guest Accommodation
Sea Views Can Also be Enjoyed Externally
Planning Permission Approved for Single Storey Rear/Side Extension Contact the Office for Further Details
Fully Enclosed and Covered Courtyard with Light and Power
Many Amenities Close by Including The Commons, Tennis Courts, Shops, Cafes, Restaurants, Picturesque Lighthouse and Harbour
Easy Access into Donaghadee"s Thriving Town Centre Either Via Millisle Road or the Commons for Scenic Alternative
Variety of Activities for the Sporting Enthusiast Which Include Golf, Hockey, Cricket, Rugby, Hockey, Tennis, Football, Bowls and Sailing
Wide Ranging Appeal to a Host of Potential Purchasers
Early Viewing Essential
Description
Located in the extremely popular and picturesque coastal town of Donaghadee here is an ideal opportunity to purchase a substantial end terrace property with stunning views over the Irish Sea and beyond to Scotland. This property is extremely well presented throughout and with its versatile and flexible accommodation has a range of different layouts to suit the needs of the home owner.
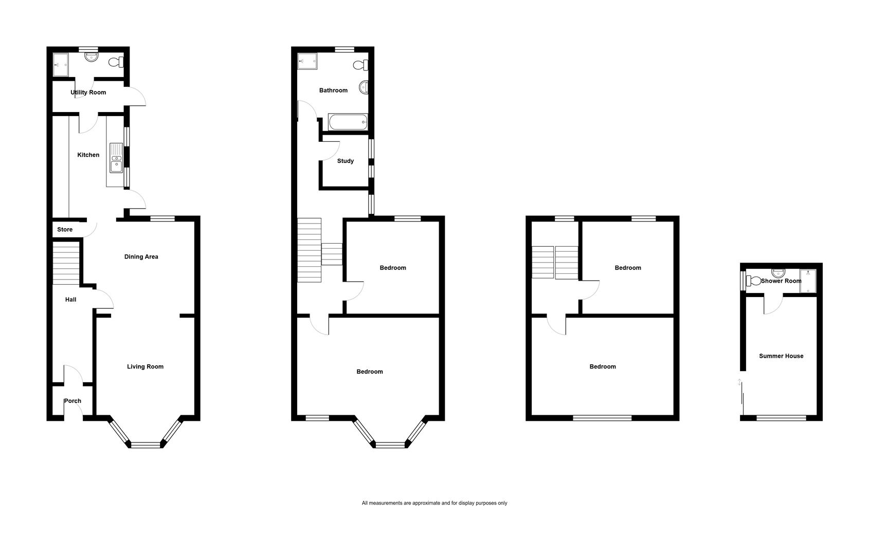
The ground floor comprises open plan living room with attractive fireplace, cast iron wood burning stove, painted floorboards and dining area, as well as kitchen with range of integrated appliances and a shower room with three piece suite. Upstairs evenly distributed over two further floors are what can be used as four bedrooms. One of the bedrooms, however, could be used as a magnificent drawing room with its attractive fireplace. There is also a bathroom, with four piece suite to include bath and separate shower, as well as an office. Breathtaking views can be enjoyed from the living room, bedroom one/drawing room and bedroom two.
Outside does not disappoint either with the property occupying a fantastic corner site with gardens in lawns to front, side and rear. A driveway and parking area to the rear of the property also provides space for cars, caravans, boats, horse box, etc, and can be fully enclosed along with the rear garden which has an excellent degree of privacy and westerly aspect making it ideal for children at play, outdoor entertaining or enjoying the sun. Other benefits include Phoenix Gas heating, double glazed windows, large garage with electric remote roller door, utility area and garden room with light, power and shower room, which could potentially be used as a holiday let, summer house, entertaining space or guest accommodation. There is also a fully enclosed and covered courtyard.
Conveniently positioned with ease of access into Donaghadee"s thriving town centre via either Millisle Road or a picturesque walk through the Commons, there are many amenities close by which include lighthouse, harbour, shops, cafes, restaurants and tennis courts. A viewing is thoroughly recommended at your earliest opportunity so as to appreciate its entirety. We expect demand to be high and to a wide range of prospective purchasers.
Located in the extremely popular and picturesque coastal town of Donaghadee here is an ideal opportunity to purchase a substantial end terrace property with stunning views over the Irish Sea and beyond to Scotland. This property is extremely well presented throughout and with its versatile and flexible accommodation has a range of different layouts to suit the needs of the home owner.
The ground floor comprises open plan living room with attractive fireplace, cast iron wood burning stove, painted floorboards and dining area, as well as kitchen with range of integrated appliances and a shower room with three piece suite. Upstairs evenly distributed over two further floors are what can be used as four bedrooms. One of the bedrooms, however, could be used as a magnificent drawing room with its attractive fireplace. There is also a bathroom, with four piece suite to include bath and separate shower, as well as an office. Breathtaking views can be enjoyed from the living room, bedroom one/drawing room and bedroom two.
Outside does not disappoint either with the property occupying a fantastic corner site with gardens in lawns to front, side and rear. A driveway and parking area to the rear of the property also provides space for cars, caravans, boats, horse box, etc, and can be fully enclosed along with the rear garden which has an excellent degree of privacy and westerly aspect making it ideal for children at play, outdoor entertaining or enjoying the sun. Other benefits include Phoenix Gas heating, double glazed windows, large garage with electric remote roller door, utility area and garden room with light, power and shower room, which could potentially be used as a holiday let, summer house, entertaining space or guest accommodation. There is also a fully enclosed and covered courtyard.
Conveniently positioned with ease of access into Donaghadee"s thriving town centre via either Millisle Road or a picturesque walk through the Commons, there are many amenities close by which include lighthouse, harbour, shops, cafes, restaurants and tennis courts. A viewing is thoroughly recommended at your earliest opportunity so as to appreciate its entirety. We expect demand to be high and to a wide range of prospective purchasers.
Rooms
Front door with glazed over panel to enclosed entrance porch.
ENCLOSED ENTRANCE PORCH:
Original fully tiled floor, cornice ceiling, internal door with glazed and etched inset, glazed side panels and over panel to reception hall.
RECEPTION HALL:
Painted wooden floorboards, cornice ceiling.
OPEN PLAN LIVING ROOM WITH DINING AREA: 24' 10" X 13' 8" (7.57m X 4.17m)
at widest points narrowing to 12"1â
Picturesque views of Irish Sea and beyond to Scotland, attractive fireplace surround with cast iron wood burning stove, slate hearth, picture rail, painted floorboards, bay window in living room with built-in seating, bay area with painted floorboards, storage under stairs.
KITCHEN: 13' 0" X 9' 1" (3.96m X 2.77m)
Range of high and low level Shaker style units, laminate work surfaces, one and a half bowl single drainer stainless steel sink unit with mixer tap, integrated five ring gas hob, stainless steel splashback, extractor fan above, integrated oven, integrated microwave, integrated dishwasher, integrated fridge freezer, fully tiled floor, uPVC double glazed door to courtyard.
REAR HALLWAY:
With utility area plumbed for washing machine, space for tumble dryer, storage cupboards, granite effect worktop, fully tiled floor, uPVC double glazed door to courtyard.
SHOWER ROOM:
Three piece white suite comprising built-in shower cubicle, floating wash hand basin with mixer tap, low flush WC, fully tiled floor, chrome heated towel rail, extractor fan.
STAIRS TO FIRST FLOOR RETURN:
Cornice ceiling.
BATHROOM:
Four piece suite comprising bath with mixer tap, separate built-in shower cubicle, pedestal wash hand basin, mixer tap, low flush WC, part tongue and groove walls, chrome heated towel rail, extractor fan.
OFFICE: 6' 8" X 5' 10" (2.03m X 1.78m)
into robes at widest points
Built-in wardrobe, access to roofspace providing ample storage.
FIRST FLOOR LANDING:
Cornice ceiling.
MAIN BEDROOM OR DRAWING ROOM: 17' 8" X 15' 5" (5.38m X 4.70m)
into bay at widest points
Stunning views of Irish Sea and beyond to Scotland, attractive fireplace with cast iron tiled inset, tiled hearth, picture rail, bay window.
BEDROOM (3): 11' 10" X 11' 0" (3.61m X 3.35m)
Ample space for a wardrobe and a double bed or two single beds. Picture rail.
STAIRS TO SECOND FLOOR:
LANDING:
Access to roofspace. The roofspace is fully boarded and provides excellent storage space.
BEDROOM (2): 17' 6" X 12' 8" (5.33m X 3.86m)
Stunning views over Irish Sea and beyond to Scotland.
BEDROOM (4): 11' 10" X 10' 11" (3.61m X 3.33m)
Ample space for a wardrobe and a double bed or two single beds.
Superb corner site with gardens in lawns to front, side and rear, driveway with parking to rear for cars, caravans, boats, horse box, etc, rear can be fully enclosed and also has vegetable boxes and excellent degree of privacy, large garage, garden room, paved patio areas and westerly aspect making it ideal for children at play, outdoor entertaining or enjoying the sun. There is also a covered courtyard which includes power points and provides the rear access to the house and can be accessed via the kitchen or the rear hallway as well as from the garden.
GARAGE: 22' 0" X 16' 1" (6.71m X 4.90m)
at widest points
Electric remote roller door, power, light and built-in shelving.
Fully enclosed and covered courtyard equipped with lighting and power points.
GARDEN ROOM: 19' 0" X 9' 0" (5.79m X 2.74m)
to include shower room
With light and power, storage cupboards, stainless steel sink unit with mixer tap, glass display cabinets, sea views, laminate wood effect floor.
Shower Room
With three piece suite comprising built-in shower cubicle, floating wash hand basin, mixer tap, tiled splashback, low flush WC, chrome heated towel rail, fully tiled floor, extractor fan.
Would be ideal as a potential holiday let, summer house, entertaining space or guest accommodation.
Broadband Speed Availability
Potential Speeds for 105 Millisle Road
Max Download
1800
Mbps
Max Upload
220
MbpsThe speeds indicated represent the maximum estimated fixed-line speeds as predicted by Ofcom. Please note that these are estimates, and actual service availability and speeds may differ.
Property Location
Mortgage Calculator
Directions
Heading out of Donaghadee. along Millisle Road, Number 105 is on the right hand side just opposite the Commons.
Contact Agent
Contact John Minnis Estate Agents (Donaghadee)
Request More Information
Requesting Info about...
105 Millisle Road, Donaghadee, BT21 0LA
By registering your interest, you acknowledge our Privacy Policy
By registering your interest, you acknowledge our Privacy Policy