Contact Agent
Contact John Minnis Estate Agents (Donaghadee)
5 Bed Detached House
82 Warren Road
Donaghadee, BT21 0PD
offers around
£799,950
Key Features & Description
Exceptional Detached Family Home Backing onto Donaghadee Golf Course
Views to Donaghadee Golf Course from the Rear of the Property
Views to Donaghadee Sound, Copeland Islands and the Irish Sea to the Front
Highly Regarded and Prestigious Location
Bright, Spacious and Versatile Accommodation with a Tremendous Flow of Natural Light
Drawing Room with Attractive Granite Fireplace
Open Fire, Ornate Cornice Ceiling and Double Glazed French Doors to Rear Garden
Dining Room with Solid Oak Floor
ouPVC Double Glazed French Doors to Rear Garden
Cosy Family Room with Cast Iron Fireplace, Open Fire and Solid Oak Floor
Large Open Plan Kitchen, with Granite Worktops and Rayburn Range, to Dining/Family Area with Feature Exposed Brick Wall and uPVC Double Glazed French Doors onto the Rear Garden
Separate Utility Room
Five Well Proportioned Bedrooms
Main Bedroom with Dressing/Sitting Area, Additional Dressing Room and En Suite Bathroom with Bath and Separate Shower
Family Bathroom with Bath and Separate Shower
Additional Downstairs WC
Oil Fired Central Heating
ouPVC Double Glazed Windows, Guttering and Soffits
Mature Front Garden in Lawns with Plants, Trees and Shrubs
Driveway in Loose Stones with Ample Parking f
Integral Garage
Outstanding Rear Garden with Lawns, Extensive Paved Patio Barbecue Areas, Summer House with Composite Decking, Additional Garden Store and Plants, Trees, Shrubs and Lawns
Description
Situated on the prestigious Warren Road in Donaghadee, this recently constructed red brick detached family home offers a rare opportunity within walking distance of the town´s thriving and picturesque centre. Backing onto the golf course and enjoying views towards Donaghadee Sound, the Copeland Islands and the Irish Sea from some rooms, the property combines an exceptional setting with bright, flexible accommodation designed to maximise light and space.
The ground floor includes a drawing room with ornate cornice ceiling, granite fireplace and French doors to the rear garden; a dining room with solid oak floor and garden access; a cosy family room with cast iron fireplace; and an impressive open plan kitchen with granite worktops, exposed brick wall and French doors to the garden. Upstairs features three well-proportioned bedrooms, including the main with dressing/sitting area, separate dressing room and en suite bathroom with bath and shower, plus a family bathroom with separate shower. The second floor provides two further bedrooms.
Externally, the home boasts a stone wall and pillars leading to a mature front garden in lawns with trees and shrubs. A loose stone driveway offers ample parking and leads to an integral garage. The large, fully enclosed rear garden enjoys a south-westerly aspect, extensive paved terraces, composite-decked summer house, and excellent privacy-perfect for children or outdoor entertaining.
Additional benefits include oil-fired central heating, uPVC double glazing, utility room, downstairs WC, and pressurised water system. The property is conveniently located near Donaghadee´s shops, cafés, restaurants, lighthouse and harbour, with local activities such as golf, sailing, swimming, rugby and tennis nearby. Properties of this quality are rarely available, and early viewing is strongly recommended.
Situated on the prestigious Warren Road in Donaghadee, this recently constructed red brick detached family home offers a rare opportunity within walking distance of the town´s thriving and picturesque centre. Backing onto the golf course and enjoying views towards Donaghadee Sound, the Copeland Islands and the Irish Sea from some rooms, the property combines an exceptional setting with bright, flexible accommodation designed to maximise light and space.
The ground floor includes a drawing room with ornate cornice ceiling, granite fireplace and French doors to the rear garden; a dining room with solid oak floor and garden access; a cosy family room with cast iron fireplace; and an impressive open plan kitchen with granite worktops, exposed brick wall and French doors to the garden. Upstairs features three well-proportioned bedrooms, including the main with dressing/sitting area, separate dressing room and en suite bathroom with bath and shower, plus a family bathroom with separate shower. The second floor provides two further bedrooms.
Externally, the home boasts a stone wall and pillars leading to a mature front garden in lawns with trees and shrubs. A loose stone driveway offers ample parking and leads to an integral garage. The large, fully enclosed rear garden enjoys a south-westerly aspect, extensive paved terraces, composite-decked summer house, and excellent privacy-perfect for children or outdoor entertaining.
Additional benefits include oil-fired central heating, uPVC double glazing, utility room, downstairs WC, and pressurised water system. The property is conveniently located near Donaghadee´s shops, cafés, restaurants, lighthouse and harbour, with local activities such as golf, sailing, swimming, rugby and tennis nearby. Properties of this quality are rarely available, and early viewing is strongly recommended.
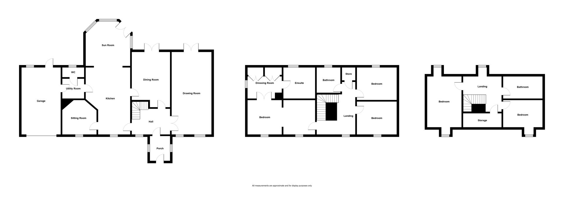
Rooms
GROUND FLOOR
Entrance
uPVC double glazed front door with uPVC double glazed side panels to enclosed entrance porch.
Enclosed Entrance Porch
Fully tiled floor, glazed internal door to reception hall.
Reception Hall
Solid oak wooden floor, ornate cornice ceiling.
Drawing Room 26´9" X 12´6" (7.92m X 3.66m)
French doors from reception hall with glazed and bevelled insets, attractive granite fireplace surround, cast iron inset, granite hearth, open fire, ornate cornice ceiling, aspect to rear overlooking the golf course, uPVC double glazed French doors to the rear garden.
Dining Room 14´ X 10´9" (4.27m X 3.05m)
Solid oak wooden floor, ornate cornice ceiling, aspect overlooking the golf course, uPVC double glazed French doors to the rear garden
Kitchen Open Plan to Casual Dining / Family Area 35´10" X 14´4" (10.67m X 4.27m)
at widest points Extensive range of high and low level units, granite work surfaces, Rayburn oil fired range, recess for fridge freezer, glass display cabinets, large island unit with granite worktop, integrated dishwasher, storage cupboards, one and a half bowl stainless steel sink unit with mixer tap, water filter tap and matching granite double drainer, integrated oven, integrated wine rack, fully tiled floor, part tiled walls, casual dining/family area with cornice ceiling, aspect overlooking the golf course, feature exposed brick walls, uPVC double glazed French doors to rear garden.
Family Room 11´ X 10´10" (3.35m X 3.05m)
at widest points Period feature cast iron fireplace with slate hearth and open fire, solid oak floor, cornice ceiling.
Utility Room
Range of high and low level storage cupboards, granite effect work surfaces, single bowl single drainer stainless steel sink unit with mixer tap, fully tiled floor, part tiled walls, door to integral garage.
Downstairs WC
Two piece white suite comprising low flush WC, pedestal wash hand basin, fully tiled floor.
Stairs to First Floor
FIRST FLOOR
Landing
Ornate cornice ceiling, walk-in shelved airing cupboard.
Bedroom One 11´ X 10´10" (3.35m X 3.05m)
Bedroom with ornate cornice ceiling, views to Donaghadee Sound, Copeland Islands and Irish Sea.
Sitting/Dressing Area 10´9" X 10´2" (3.05m X 3.05m)
at widest points With range of built-in wardrobes, shelving, cupboards and drawers, ornate cornice ceiling, views to Donaghadee Sound and Irish Sea, archway to bedroom
Additional Dressing Area
Additional Dressing Area With two double built-in wardrobes, ornate cornice ceiling, access to roofspace.
Ensuite Dressing Room
Five piece suite comprising panelled bath with mixer tap, telephone hand shower, separate built-in fully tiled shower cubicle, twin pedestal wash hand basins, low flush WC, views to Donaghadee Golf Course, fully tiled floor, fully tiled walls, heated towel rail.
Bedroom Two 12´5" X 10´3" (3.66m X 3.05m)
Views to Donaghadee Sound, Copeland Islands and the Irish Sea.
Bedroom Three 12´5" X 10´3" (3.66m X 3.05m)
Views to Donaghadee Golf Course.
Bathroom
Four piece suite comprising free standing claw foot roll top bath with mixer tap, telephone hand shower, separate built-in fully tiled shower cubicle, pedestal wash hand basin, high flush WC, views to Donaghadee Golf Course, fully tiled floor, fully tiled walls
Stairs to Second Floor
SECOND FLOOR
Landing
Views to Donaghadee Golf Course, walk-in storage area, access to roof space.
Bedroom Four 16´ X 10´2" (4.88m X 3.05m)
Views to Donaghadee Sound, Copeland Islands, Irish Sea and beyond to the front, views to Donaghadee Golf Course to the rear.
Bedroom Five 12´6" X 9´ (3.66m X 2.74m)
Views to Donaghadee Sound, Copeland Islands and Irish Sea.
OUTSIDE
Feature stone wall to the front with stone entrance pillars leading to driveway in loose stones with ample parking for cars, caravans, boats and horse boxes, etc, integral garage, well presented front gardens in lawns with flowerbeds in plants and shrubs, front garden also has some trees.
Integral Garage 21´2" X 12´5" (6.40m X 3.66m)
at widest points Roller door, power, light, Mega flow pressurised water system, plumbed for washing machine, space for tumble dryer, granite effect worktop, uPVC double glazed door to rear garden, access to roof space, oil fired boiler.
Rear Gardens
Outstanding fully enclosed rear garden backing onto Donaghadee Golf Course with gardens in lawns, trees, plants and shrubs, paved pathway with stones, extensive paved barbecue patio terrace and a paved pathway with loose stones leads to lower garden area with lawns and additional paved patio barbecue area, outside tap. Additional storage area, rear garden has excellent degree of privacy and south westerly aspect making it ideal for children at play, outdoor entertaining or enjoying the sun.
Summer House 14´3" X 14´2" (4.27m X 4.27m)
at widest points With light, power and composite decked terrace.
Garden Store 18´2" X 9´4" (5.49m X 2.74m)
at widest points With roller door, light and power.
Donaghadee is a picturesque coastal town on the North Down coastline, celebrated for its breathtaking sea views and nearby Copeland Islands
With charming streets filled with local shops, cafes, and outdoor activities like sailing, it offers a vibrant community spirit. Just a short drive from Belfast, Donaghadee has been voted as one of the best places to live, combining natural beauty with a welcoming atmosphere.
With charming streets filled with local shops, cafes, and outdoor activities like sailing, it offers a vibrant community spirit. Just a short drive from Belfast, Donaghadee has been voted as one of the best places to live, combining natural beauty with a welcoming atmosphere.
Broadband Speed Availability
Potential Speeds for 82 Warren Road
Max Download
1800
Mbps
Max Upload
220
MbpsThe speeds indicated represent the maximum estimated fixed-line speeds as predicted by Ofcom. Please note that these are estimates, and actual service availability and speeds may differ.
Property Location
Mortgage Calculator
Contact Agent
Contact John Minnis Estate Agents (Donaghadee)
Request More Information
Requesting Info about...
82 Warren Road, Donaghadee, BT21 0PD
By registering your interest, you acknowledge our Privacy Policy
By registering your interest, you acknowledge our Privacy Policy