Contact Agent
Contact John Minnis Estate Agents (Donaghadee)
3 Bed End Terrace
46 Ashfield Drive
Donaghadee, BT21 0AR
offers around
£125,000
Key Features & Description
Attractive Mid Town House Property
Located in a Popular Residential Development
Well Presented Throughout Leaving
Little Left to Do but Move in and Enjoy
Bespoke Open Plan Kitchen with Casual Dining Area
Three Well Proportioned Bedrooms
Bespoke Bathroom With Walk-In Shower, Toilet and Sink
Large Extended Landscaped Back Garden
Tarmacked Driveway For Two Cars
Gas Heating
Description
John Minnis Estate Agents is pleased to present 46 Ashfield Drive, a charming end terrace home situated in the desirable town of Donaghadee. This well-proportioned property offers comfortable living with a spacious sitting room featuring a cosy electric fire, creating a warm and inviting atmosphere. The downstairs kitchen provides a practical space for day-to-day living.
Upstairs, three double bedrooms- two with built-in storage- offer generous accommodation suited to families or those working from home. The property benefits from oil-fired central heating and uPVC double glazing throughout, ensuring warmth and efficiency year-round.
Outside, the large, fully enclosed front garden is a rare feature in this area, offering privacy and space for outdoor enjoyment. The rear garden is equally impressive, with a paved patio area perfect for relaxing or entertaining, alongside a generous lawn space.
Conveniently located close to Donaghadee´s vibrant town centre, residents can enjoy a variety of shops, cafés, and scenic coastal walks nearby. Excellent local amenities and transport links make this an ideal home for all stages of life.
46 Ashfield Drive combines comfort, space, and location in a highly sought-after setting. Early viewing is recommended to fully appreciate this delightful family home.
As part of our obligations under the Money Laundering, Terrorist Financing and Transfer of Funds (Information on the Payer) Regulations 2017, all Estate Agents are required to verify the identity of purchasers involved in a property transaction.
To comply with these obligations, all purchasers will be required to complete Customer Due Diligence (AML) identity checks. These checks are carried out on our behalf by our trusted third-party provider, Thirdfort.
A charge will apply of £20 + VAT per purchaser.
John Minnis Estate Agents is pleased to present 46 Ashfield Drive, a charming end terrace home situated in the desirable town of Donaghadee. This well-proportioned property offers comfortable living with a spacious sitting room featuring a cosy electric fire, creating a warm and inviting atmosphere. The downstairs kitchen provides a practical space for day-to-day living.
Upstairs, three double bedrooms- two with built-in storage- offer generous accommodation suited to families or those working from home. The property benefits from oil-fired central heating and uPVC double glazing throughout, ensuring warmth and efficiency year-round.
Outside, the large, fully enclosed front garden is a rare feature in this area, offering privacy and space for outdoor enjoyment. The rear garden is equally impressive, with a paved patio area perfect for relaxing or entertaining, alongside a generous lawn space.
Conveniently located close to Donaghadee´s vibrant town centre, residents can enjoy a variety of shops, cafés, and scenic coastal walks nearby. Excellent local amenities and transport links make this an ideal home for all stages of life.
46 Ashfield Drive combines comfort, space, and location in a highly sought-after setting. Early viewing is recommended to fully appreciate this delightful family home.
As part of our obligations under the Money Laundering, Terrorist Financing and Transfer of Funds (Information on the Payer) Regulations 2017, all Estate Agents are required to verify the identity of purchasers involved in a property transaction.
To comply with these obligations, all purchasers will be required to complete Customer Due Diligence (AML) identity checks. These checks are carried out on our behalf by our trusted third-party provider, Thirdfort.
A charge will apply of £20 + VAT per purchaser.
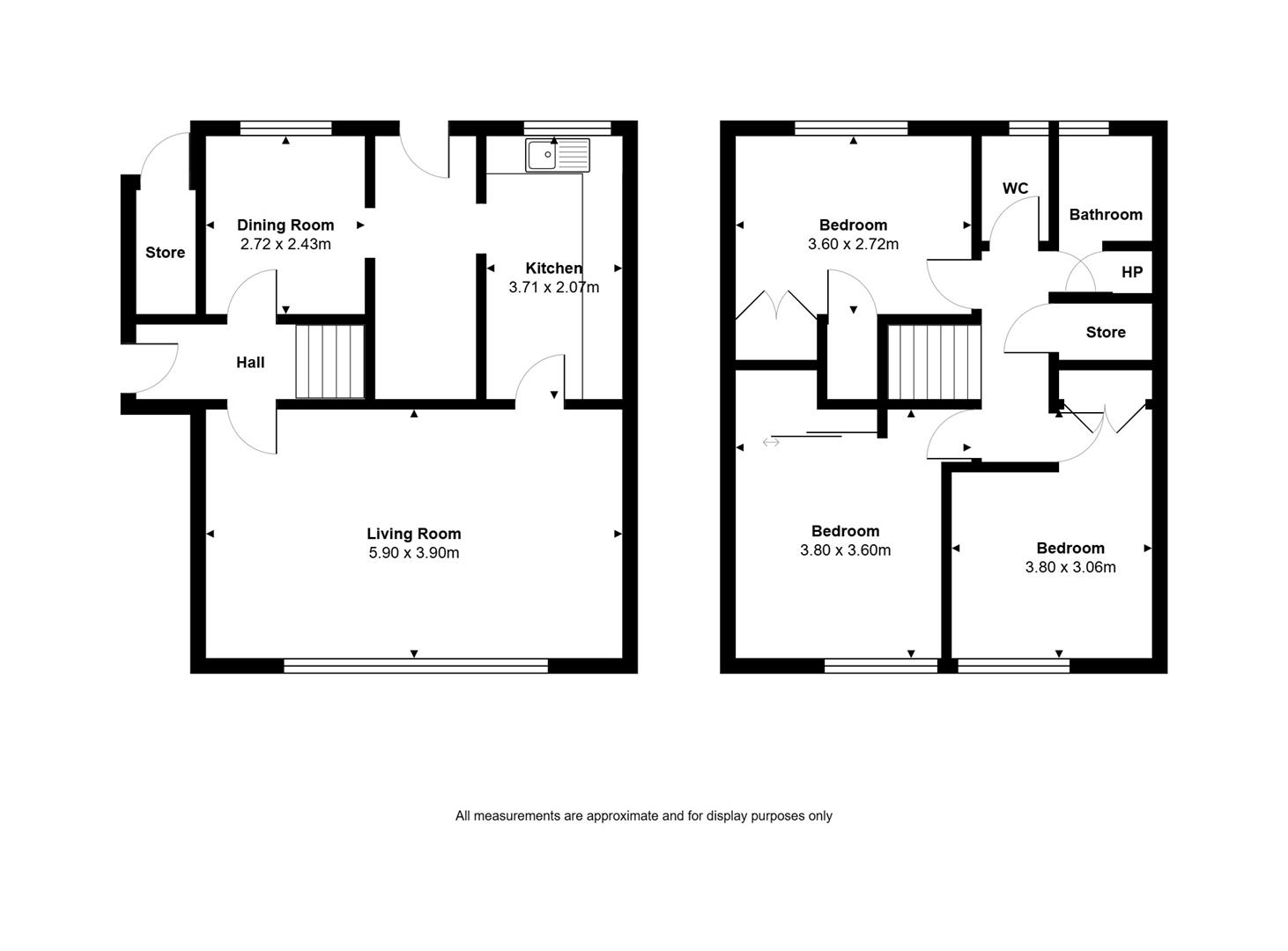
Rooms
Entrance
uPVC double glazed front door to reception hall.
Reception Hall
Laminate flooring with uPVC to rear garden.
Living Room 19'4" X 12'9" (5.90m X 3.90m)
Bright spacious room with carpet flooring and electric fire.
Kitchen 11'9" X 8'11" (3.60m X 2.72m)
Bespoke range of high and low level laminate units, laminate work surfaces, single drainer stainless steel sink unit, space for cooker range, tiled splash back, extractor fan above, space for fridge freezer.
Dining Room 8'11" X 7'11" (2.72m X 2.43m)
Laminate wooden flooring.
First Floor
Landing
Access to roof space.
Principle Bedroom 12'5" X 11'9" (3.80m X 3.60m)
Double room with built-in wardrobes.
Bedroom 2 12'5" X 10'0" (3.80m X 3.06m)
Double room with built-in wardrobes.
Bedroom 3 11'9" X 8'11" (3.60m X 2.72m)
Double room
Bathroom
White suite comprising: panelled bath, mixer tap and hand shower, wash hand basin with chrome mixer tap, fully tiled floor, fully tiled walls.
WC
Low flush WC.
Outside
Fully enclosed rear garden with an array of plants and shrubs. Additional garden shred.
Donaghadee is a picturesque coastal town on the North Down coastline, celebrated for its breath-taking sea views and nearby Copeland Islands.
With charming streets filled with local shops, cafes, and outdoor activities like sailing, it offers a vibrant community spirit. Just a short drive from Belfast, Donaghadee has been voted as one of the best places to live, combining natural beauty with a welcoming atmosphere.
With charming streets filled with local shops, cafes, and outdoor activities like sailing, it offers a vibrant community spirit. Just a short drive from Belfast, Donaghadee has been voted as one of the best places to live, combining natural beauty with a welcoming atmosphere.
Broadband Speed Availability
Potential Speeds for 46 Ashfield Drive
Max Download
1800
Mbps
Max Upload
220
MbpsThe speeds indicated represent the maximum estimated fixed-line speeds as predicted by Ofcom. Please note that these are estimates, and actual service availability and speeds may differ.
Property Location
Mortgage Calculator
Contact Agent
Contact John Minnis Estate Agents (Donaghadee)
Request More Information
Requesting Info about...
46 Ashfield Drive, Donaghadee, BT21 0AR
By registering your interest, you acknowledge our Privacy Policy
By registering your interest, you acknowledge our Privacy Policy